Kohteen esittely
Pitäjänmäen Strömbergin/Valimon alueella sijaitseva kerrostalo tarjoaa rauhallisen asumisympäristön, jossa yhdistyvät kaupungin mukavuudet ja luonnonläheisyys. Osassa asuntoja on oma sauna ja kaikista asunnoista löytyy parveke. Kohteen yhteisistä tiloista löytyvät talosauna, kerhohuone, pesula sekä kuivaushuone. Lisäksi lähikauppa sijaitsee alle 200 metrin päässä, joten päivittäiset ostokset hoituvat helposti.
Pitäjänmäki tarjoaa erinomaiset liikenneyhteydet ja kattavat palvelut, jotka tekevät arjesta sujuvaa ja mukavaa. Alueen poikki kulkeva pikaratikka (Raide-Jokeri) mahdollistaa liikkumisen Helsingin Itäkeskuksesta Espoon Keilanimeen asti. Lähin pikaratikkapysäkki sijaitsee vain muutaman minuutin kävelymatkan päässä talosta, ja aivan sen vieressä sijaitsevat bussipysäkit tarjoavat sujuvat yhteydet eri puolille pääkaupunkiseutua. Lisäksi Valimon sekä Pitäjänmäen juna-asemat sijaitsevat kätevästi lähietäisyydellä, tarjoten nopeat yhteydet sekä Helsingin keskustaan että Espoon suuntaan. Alue tarjoaa, myös erinomaiset mahdollisuudet pyöräilyyn. Kattava verkosto hyvin hoidettuja reittejä ja suunnitteilla oleva Pitäjänmäenbaana parantavat yhteyksiä entisestään sekä tekevät pyöräilystä sujuvampaa.
Kohteen läheisyydessä sijaitsevat päiväkoti Mestari, Strömbergin ala-aste sekä lukio The English School (High School), joka tarjoaa suomalaisen opetussuunnitelman mukaisen koulutuksen suomeksi ja englanniksi. Lapsiperheille kohde tarjoaa suojaisan sisäpihan ulkona leikkimiseen, lisäksi aivan naapurista löytyy Valiomestarin puisto, joka yhdistyy Strömbergin puistoon. Puistot mahdollistavat ulkona liikkumisen, mutta myös leikkipaikkoja perheen pienemmille. Talin siirtolapuutarha ja sitä ympäröivät laajat viheralueet ja metsät tarjoavat upeat puitteet kävelyyn, juoksuun ja luonnosta nauttimiseen. Alueella on hyvin merkittyjä ulkoilureittejä, ja Talin golfkenttä sekä frisbeegolf-rata tarjoavat monipuolisia harrastusmahdollisuuksia kaikenikäisille.
Miksi Asuntosäätiö?
Me uskomme, että onnellinen koti ja laadukas asuminen kuuluvat kaikille. Emme tavoittele voittoa, vaan käytämme kaikki vastikkeista ja vuokrista saadut tulot toimintamme kehittämiseen. Jo yli 33 000 suomalaista on valinnut Asuntosäätiön tarjoaman kodin. Tiesithän, että myös lemmikit ovat tervetulleita kaikkiin koteihimme!
Rakennuksen tiedot
- Asumismuoto Asokoti
- Keskimääräinen asumisoikeusmaksu / jm² 322,4€
- Hissit 3
- Talosauna 1
- Pyykkitupa Kyllä
- Kuivaushuone Kyllä
- Asuntoja 58
- Asuinrakennuksia 1
- Käyttövastike / kk / jm² 17,68€
- Valmistumisvuosi 1997
- Porrashuoneet 3
- Energialuokka F
- Lämmitysmuoto Kauko
- Autopaikat 46
- Askarteluhuone 1
- Laajakaista DNA Welho
- Antennijärjestelmä Kaapeli
- KaapeliTV DNA
- Kattomateriaali Huopa
- Lemmikit Sallittu
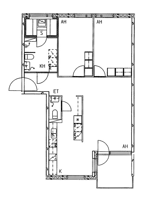
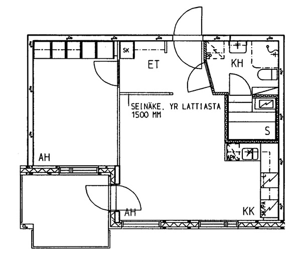
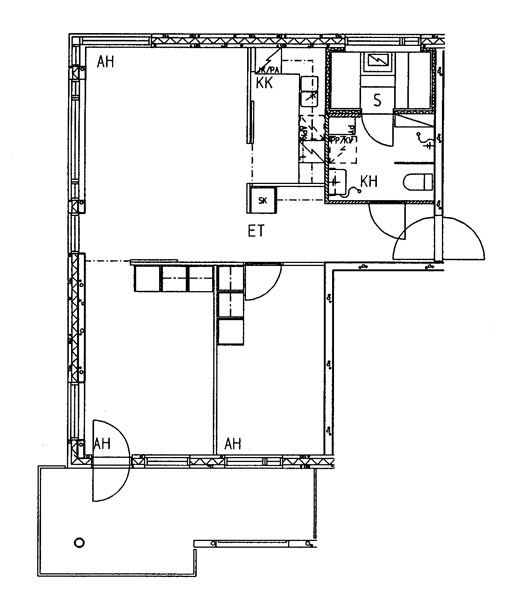
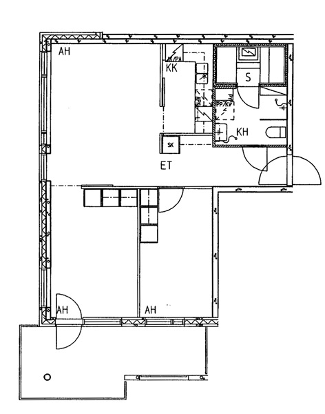
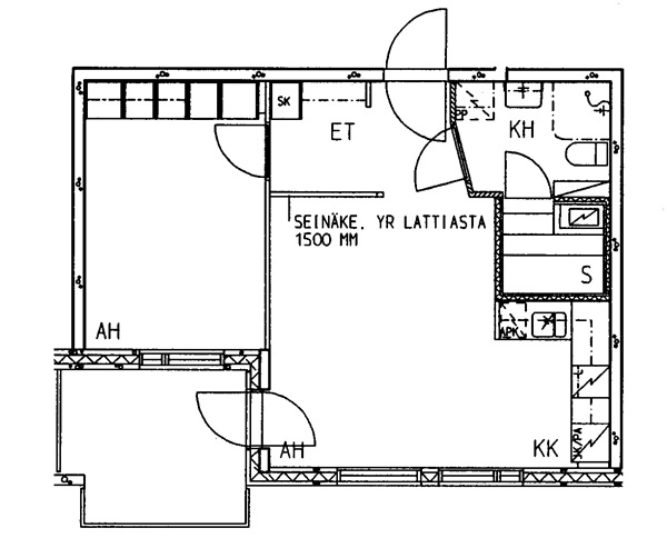
Huoneistot ja pohjakuvat: Takomotie 25, Kerrostalo, Piharakennus
Lisää hakemukselle kaikki haluamasi asuntotyypit. Mahdollisuutesi asunnon saamiseksi paranevat, kun voimme tarjota sinulle kaikkia valitsemasi asuntotyypin asuntoja, jotka mahdollisesti vapautuvat myöhemmin tästä kohteesta. Olet automaattisesti näiden asuntotyyppien hakuprosessissa.
Takomotie 25 C 50
1h+kk
, Kerrostalo
36 m2
3/7
Takomotie 25 C 50
1h+kk
, Kerrostalo
36 m2
Kerros 3/7
Takomotie 25 C 51
1h+kk
, Kerrostalo
36 m2
3/7
Takomotie 25 C 51
1h+kk
, Kerrostalo
36 m2
Kerros 3/7
Takomotie 25 C 47
1h+kk
, Kerrostalo
36 m2
2/7
Takomotie 25 C 47
1h+kk
, Kerrostalo
36 m2
Kerros 2/7
Takomotie 25 C 54
1h+kk
, Kerrostalo
36 m2
4/7
Takomotie 25 C 54
1h+kk
, Kerrostalo
36 m2
Kerros 4/7
Takomotie 25 C 46
1h+kk
, Kerrostalo
36 m2
2/7
Takomotie 25 C 46
1h+kk
, Kerrostalo
36 m2
Kerros 2/7
Takomotie 25 C 43
1h+kk
, Kerrostalo
38.5 m2
1/7
Takomotie 25 C 43
1h+kk
, Kerrostalo
38.5 m2
Kerros 1/7
Takomotie 25 C 42
1h+kk
, Kerrostalo
38.5 m2
1/7
Takomotie 25 C 42
1h+kk
, Kerrostalo
38.5 m2
Kerros 1/7
Takomotie 25 A 2
2h+kk+s
, Kerrostalo
44 m2
1/7
Takomotie 25 A 2
2h+kk+s
, Kerrostalo
44 m2
Kerros 1/7
Takomotie 25 B 33
2h+kk+s
, Kerrostalo
44 m2
5/7
Takomotie 25 B 33
2h+kk+s
, Kerrostalo
44 m2
Kerros 5/7
Takomotie 25 B 36
2h+kk+s
, Kerrostalo
44 m2
6/7
Takomotie 25 B 36
2h+kk+s
, Kerrostalo
44 m2
Kerros 6/7
Takomotie 25 B 27
2h+kk+s
, Kerrostalo
44 m2
3/7
Takomotie 25 B 27
2h+kk+s
, Kerrostalo
44 m2
Kerros 3/7
Takomotie 25 B 30
2h+kk+s
, Kerrostalo
44 m2
4/7
Takomotie 25 B 30
2h+kk+s
, Kerrostalo
44 m2
Kerros 4/7
Takomotie 25 A 14
2h+kk+s
, Kerrostalo
44 m2
5/7
Takomotie 25 A 14
2h+kk+s
, Kerrostalo
44 m2
Kerros 5/7
Takomotie 25 A 20
2h+kk+s
, Kerrostalo
44 m2
7/7
Takomotie 25 A 20
2h+kk+s
, Kerrostalo
44 m2
Kerros 7/7
Takomotie 25 B 39
2h+kk+s
, Kerrostalo
44 m2
7/7
Takomotie 25 B 39
2h+kk+s
, Kerrostalo
44 m2
Kerros 7/7
Takomotie 25 A 8
2h+kk+s
, Kerrostalo
44 m2
3/7
Takomotie 25 A 8
2h+kk+s
, Kerrostalo
44 m2
Kerros 3/7
Takomotie 25 B 24
2h+kk+s
, Kerrostalo
44 m2
2/7
Takomotie 25 B 24
2h+kk+s
, Kerrostalo
44 m2
Kerros 2/7
Takomotie 25 A 17
2h+kk+s
, Kerrostalo
44 m2
6/7
Takomotie 25 A 17
2h+kk+s
, Kerrostalo
44 m2
Kerros 6/7
Takomotie 25 A 11
2h+kk+s
, Kerrostalo
44 m2
4/7
Takomotie 25 A 11
2h+kk+s
, Kerrostalo
44 m2
Kerros 4/7
Takomotie 25 A 5
2h+kk+s
, Kerrostalo
44 m2
2/7
Takomotie 25 A 5
2h+kk+s
, Kerrostalo
44 m2
Kerros 2/7
Takomotie 25 B 37
3h+k+s
, Kerrostalo
75 m2
6/7
Takomotie 25 B 37
3h+k+s
, Kerrostalo
75 m2
Kerros 6/7
Takomotie 25 B 34
3h+k+s
, Kerrostalo
75 m2
5/7
Takomotie 25 B 34
3h+k+s
, Kerrostalo
75 m2
Kerros 5/7
Takomotie 25 B 40
3h+k+s
, Kerrostalo
75 m2
7/7
Takomotie 25 B 40
3h+k+s
, Kerrostalo
75 m2
Kerros 7/7
Takomotie 25 A 16
3h+k+s
, Kerrostalo
75 m2
6/7
Takomotie 25 A 16
3h+k+s
, Kerrostalo
75 m2
Kerros 6/7
Takomotie 25 A 19
3h+k+s
, Kerrostalo
75 m2
7/7
Takomotie 25 A 19
3h+k+s
, Kerrostalo
75 m2
Kerros 7/7
Takomotie 25 A 7
3h+k+s
, Kerrostalo
75 m2
3/7
Takomotie 25 A 7
3h+k+s
, Kerrostalo
75 m2
Kerros 3/7
Takomotie 25 A 10
3h+k+s
, Kerrostalo
75 m2
4/7
Takomotie 25 A 10
3h+k+s
, Kerrostalo
75 m2
Kerros 4/7
Takomotie 25 B 25
3h+k+s
, Kerrostalo
75 m2
2/7
Takomotie 25 B 25
3h+k+s
, Kerrostalo
75 m2
Kerros 2/7
Takomotie 25 A 4
3h+k+s
, Kerrostalo
75 m2
2/7
Takomotie 25 A 4
3h+k+s
, Kerrostalo
75 m2
Kerros 2/7
Takomotie 25 B 28
3h+k+s
, Kerrostalo
75 m2
3/7
Takomotie 25 B 28
3h+k+s
, Kerrostalo
75 m2
Kerros 3/7
Takomotie 25 A 1
3h+k+s
, Kerrostalo
75 m2
1/7
Takomotie 25 A 1
3h+k+s
, Kerrostalo
75 m2
Kerros 1/7
Takomotie 25 B 31
3h+k+s
, Kerrostalo
75 m2
4/7
Takomotie 25 B 31
3h+k+s
, Kerrostalo
75 m2
Kerros 4/7
Takomotie 25 B 32
3h+kk+s
, Kerrostalo
61 m2
5/7
Takomotie 25 B 32
3h+kk+s
, Kerrostalo
61 m2
Kerros 5/7
Takomotie 25 B 23
3h+kk+s
, Kerrostalo
61 m2
2/7
Takomotie 25 B 23
3h+kk+s
, Kerrostalo
61 m2
Kerros 2/7
Takomotie 25 B 29
3h+kk+s
, Kerrostalo
61 m2
4/7
Takomotie 25 B 29
3h+kk+s
, Kerrostalo
61 m2
Kerros 4/7
Takomotie 25 B 35
3h+kk+s
, Kerrostalo
61.5 m2
6/7
Takomotie 25 B 35
3h+kk+s
, Kerrostalo
61.5 m2
Kerros 6/7
Takomotie 25 B 38
3h+kk+s
, Kerrostalo
61.5 m2
7/7
Takomotie 25 B 38
3h+kk+s
, Kerrostalo
61.5 m2
Kerros 7/7
Takomotie 25 A 6
3h+kk+s
, Kerrostalo
65 m2
2/7
Takomotie 25 A 6
3h+kk+s
, Kerrostalo
65 m2
Kerros 2/7
Takomotie 25 A 3
3h+kk+s
, Kerrostalo
65 m2
1/7
Takomotie 25 A 3
3h+kk+s
, Kerrostalo
65 m2
Kerros 1/7
Takomotie 25 A 9
3h+kk+s
, Kerrostalo
65 m2
3/7
Takomotie 25 A 9
3h+kk+s
, Kerrostalo
65 m2
Kerros 3/7
Takomotie 25 A 12
3h+kk+s
, Kerrostalo
65 m2
4/7
Takomotie 25 A 12
3h+kk+s
, Kerrostalo
65 m2
Kerros 4/7
Takomotie 25 A 15
3h+kk+s
, Kerrostalo
65 m2
5/7
Takomotie 25 A 15
3h+kk+s
, Kerrostalo
65 m2
Kerros 5/7
Takomotie 25 A 21
3h+kk+s
, Kerrostalo
65 m2
7/7
Takomotie 25 A 21
3h+kk+s
, Kerrostalo
65 m2
Kerros 7/7
Takomotie 25 A 18
3h+kk+s
, Kerrostalo
65 m2
6/7
Takomotie 25 A 18
3h+kk+s
, Kerrostalo
65 m2
Kerros 6/7
Takomotie 25 C 53
4h+k+s
, Kerrostalo
87 m2
4/7
Takomotie 25 C 53
4h+k+s
, Kerrostalo
87 m2
Kerros 4/7
Takomotie 25 C 52
4h+k+s
, Kerrostalo
87 m2
3/7
Takomotie 25 C 52
4h+k+s
, Kerrostalo
87 m2
Kerros 3/7
Takomotie 25 C 45
4h+k+s
, Kerrostalo
87 m2
2/7
Takomotie 25 C 45
4h+k+s
, Kerrostalo
87 m2
Kerros 2/7
Takomotie 25 C 48
4h+k+s
, Kerrostalo
87 m2
2/7
Takomotie 25 C 48
4h+k+s
, Kerrostalo
87 m2
Kerros 2/7
Takomotie 25 C 41
4h+k+s
, Kerrostalo
87 m2
1/7
Takomotie 25 C 41
4h+k+s
, Kerrostalo
87 m2
Kerros 1/7
Takomotie 25 C 49
4h+k+s
, Kerrostalo
87 m2
3/7
Takomotie 25 C 49
4h+k+s
, Kerrostalo
87 m2
Kerros 3/7
Takomotie 25 C 57
5h+k+s
, Kerrostalo
107 m2
5/7
Takomotie 25 C 57
5h+k+s
, Kerrostalo
107 m2
Kerros 5/7
Takomotie 25 C 58
5h+k+s
, Kerrostalo
107 m2
5/7
Takomotie 25 C 58
5h+k+s
, Kerrostalo
107 m2
Kerros 5/7
Takomotie 25 B 22
5h+k+s
, Kerrostalo
108 m2
1/7
Takomotie 25 B 22
5h+k+s
, Kerrostalo
108 m2
Kerros 1/7


