Kohteen esittely
Ramsinniementie 5 on luhti- ja kerrostaloista muodostuva luonnonläheinen kohde Helsingin Vuosaaressa. Viihtyisään pihapiiriin sijoittuva kohde koostuu 7 asuinrakennuksesta, joiden asuntojen koot vaihtelevat kaksioista viiden huoneen asuntoihin, 43–123,5 m². Asukkailla on käytössään kuivaushuone sekä kerhotila. Kohteessa on kaukolämmitys.
Kohde sijaitsee Ramsinniemen ja Kallahdenniemen merellisten ulkoilureittien lähettyvillä. Kohteen kupeessa on myös niin läheinen Kallahden, kuin noin kilometrin päässä sijaitseva Aurinkolahden uimaranta. Rastilan metroasema ja sen läheltä löytyvät kaupat ovat niin ikään noin kilometrin päässä.
Miksi Asuntosäätiö?
Me uskomme, että onnellinen koti ja laadukas asuminen kuuluvat kaikille. Emme tavoittele voittoa, vaan käytämme kaikki vastikkeista ja vuokrista saadut tulot toimintamme kehittämiseen. Jo yli 33 000 suomalaista on valinnut Asuntosäätiön tarjoaman kodin. Tiesithän, että myös lemmikit ovat tervetulleita kaikkiin koteihimme!
Rakennuksen tiedot
- Asumismuoto Asokoti
- Keskimääräinen asumisoikeusmaksu / jm² 344,26€
- Hissit Ei
- Talosauna Ei
- Kuivaushuone Kyllä
- Asuntoja 34
- Asuinrakennuksia 7
- Käyttövastike / kk / jm² 13,51€
- Valmistumisvuosi 1996
- Porrashuoneet 3
- Energialuokka D, E
- Lämmitysmuoto Kauko
- Autopaikat 29
- Kerhohuone 1
- Laajakaista DNA Welho
- Antennijärjestelmä Kaapeli
- KaapeliTV DNA
- Kattomateriaali Pelti, huopa
- Runkomateriaali Betoni
- Lemmikit Sallittu
Huoneistot ja pohjakuvat: Ramsinniementie 5, Kerrostalo, Paritalo
Lisää hakemukselle kaikki haluamasi asuntotyypit. Mahdollisuutesi asunnon saamiseksi paranevat, kun voimme tarjota sinulle kaikkia valitsemasi asuntotyypin asuntoja, jotka mahdollisesti vapautuvat myöhemmin tästä kohteesta. Olet automaattisesti näiden asuntotyyppien hakuprosessissa.
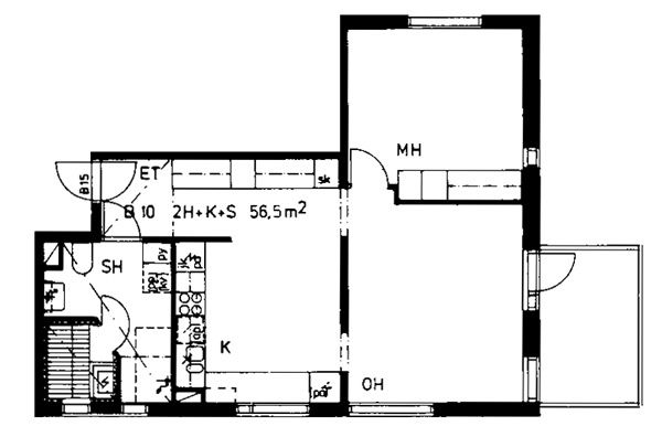
Ramsinniementie 5 B 10
2h+k+s
, Kerrostalo
56.5 m2
1/3
Ramsinniementie 5 B 10
2h+k+s
, Kerrostalo
56.5 m2
Kerros 1/3
Ramsinniementie 5 B 13
2h+k+s
, Kerrostalo
56.5 m2
Kerros 1/3
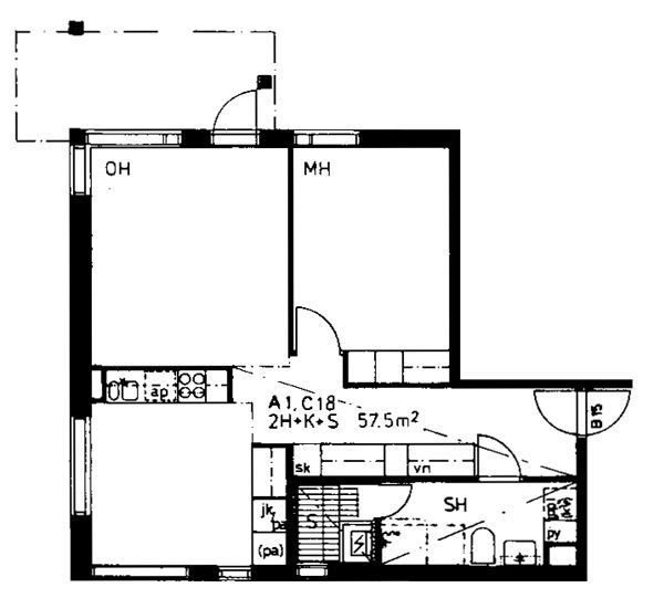
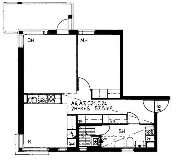
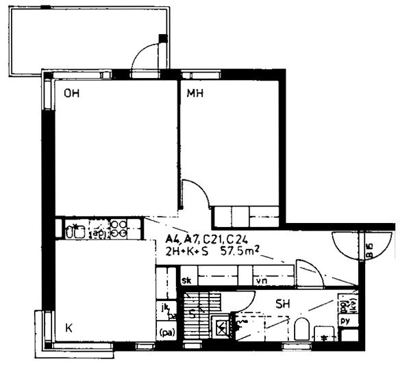
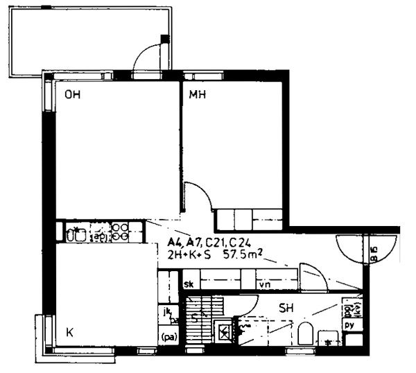
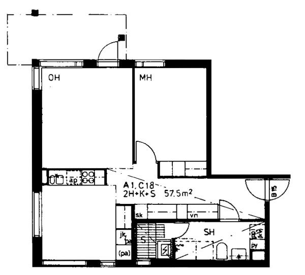
Ramsinniementie 5 A 7
2h+k+s
, Kerrostalo
57.5 m2
1/3
Ramsinniementie 5 A 7
2h+k+s
, Kerrostalo
57.5 m2
Kerros 1/3
Ramsinniementie 5 A 1
2h+k+s
, Kerrostalo
57.5 m2
1/3
Ramsinniementie 5 A 1
2h+k+s
, Kerrostalo
57.5 m2
Kerros 1/3
Ramsinniementie 5 A 4
2h+k+s
, Kerrostalo
57.5 m2
1/3
Ramsinniementie 5 A 4
2h+k+s
, Kerrostalo
57.5 m2
Kerros 1/3
Ramsinniementie 5 C 21
2h+k+s
, Kerrostalo
57.5 m2
1/3
Ramsinniementie 5 C 21
2h+k+s
, Kerrostalo
57.5 m2
Kerros 1/3
Ramsinniementie 5 C 24
2h+k+s
, Kerrostalo
57.5 m2
1/3
Ramsinniementie 5 C 24
2h+k+s
, Kerrostalo
57.5 m2
Kerros 1/3
Ramsinniementie 5 C 18
2h+k+s
, Kerrostalo
57.5 m2
1/3
Ramsinniementie 5 C 18
2h+k+s
, Kerrostalo
57.5 m2
Kerros 1/3
Ramsinniementie 5 A 5
2h+kk+s
, Kerrostalo
43 m2
1/3
Ramsinniementie 5 A 5
2h+kk+s
, Kerrostalo
43 m2
Kerros 1/3
Ramsinniementie 5 A 2
2h+kk+s
, Kerrostalo
43 m2
1/3
Ramsinniementie 5 A 2
2h+kk+s
, Kerrostalo
43 m2
Kerros 1/3
Ramsinniementie 5 A 8
2h+kk+s
, Kerrostalo
43 m2
1/3
Ramsinniementie 5 A 8
2h+kk+s
, Kerrostalo
43 m2
Kerros 1/3
Ramsinniementie 5 C 22
2h+kk+s
, Kerrostalo
43 m2
1/3
Ramsinniementie 5 C 22
2h+kk+s
, Kerrostalo
43 m2
Kerros 1/3
Ramsinniementie 5 C 25
2h+kk+s
, Kerrostalo
43 m2
1/3
Ramsinniementie 5 C 25
2h+kk+s
, Kerrostalo
43 m2
Kerros 1/3
Ramsinniementie 5 C 19
2h+kk+s
, Kerrostalo
43 m2
1/3
Ramsinniementie 5 C 19
2h+kk+s
, Kerrostalo
43 m2
Kerros 1/3
Ramsinniementie 5 B 11
2h+kk+s
, Kerrostalo
46 m2
1/3
Ramsinniementie 5 B 11
2h+kk+s
, Kerrostalo
46 m2
Kerros 1/3
Ramsinniementie 5 B 12
2h+kk+s
, Kerrostalo
46 m2
1/3
Ramsinniementie 5 B 12
2h+kk+s
, Kerrostalo
46 m2
Kerros 1/3
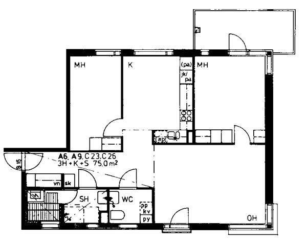
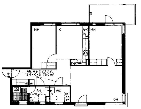
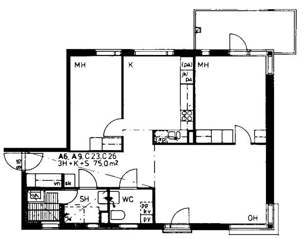
Ramsinniementie 5 A 9
3h+k+s
, Kerrostalo
75 m2
3/3
Ramsinniementie 5 A 9
3h+k+s
, Kerrostalo
75 m2
Kerros 3/3
Ramsinniementie 5 A 3
3h+k+s
, Kerrostalo
75 m2
1/3
Ramsinniementie 5 A 3
3h+k+s
, Kerrostalo
75 m2
Kerros 1/3
Ramsinniementie 5 A 6
3h+k+s
, Kerrostalo
75 m2
2/3
Ramsinniementie 5 A 6
3h+k+s
, Kerrostalo
75 m2
Kerros 2/3
Ramsinniementie 5 C 26
3h+k+s
, Kerrostalo
75 m2
3/3
Ramsinniementie 5 C 26
3h+k+s
, Kerrostalo
75 m2
Kerros 3/3
Ramsinniementie 5 C 23
3h+k+s
, Kerrostalo
75 m2
1/3
Ramsinniementie 5 C 23
3h+k+s
, Kerrostalo
75 m2
Kerros 1/3
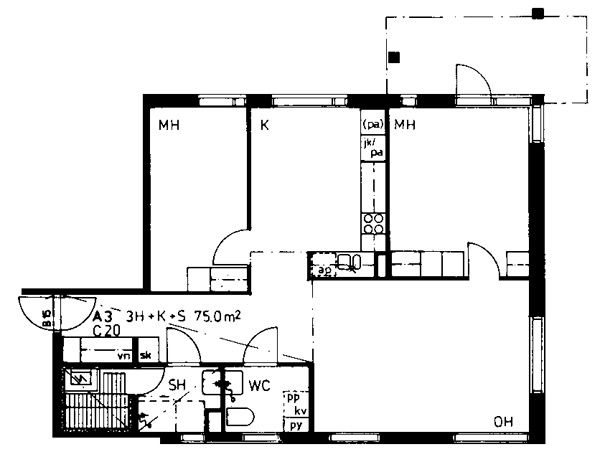
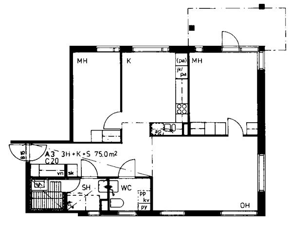
Ramsinniementie 5 C 20
3h+k+s
, Kerrostalo
75 m2
1/3
Ramsinniementie 5 C 20
3h+k+s
, Kerrostalo
75 m2
Kerros 1/3
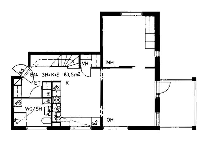
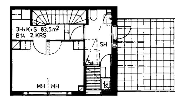
Ramsinniementie 5 B 14
3h+k+s
, Kerrostalo
83.5 m2
1/3
Ramsinniementie 5 B 14
3h+k+s
, Kerrostalo
83.5 m2
Kerros 1/3
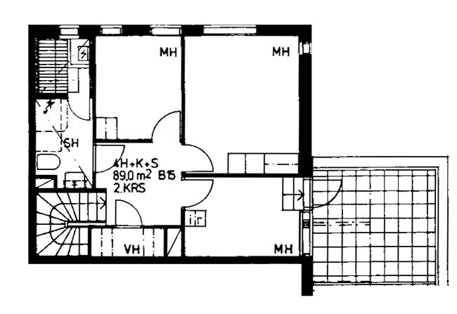
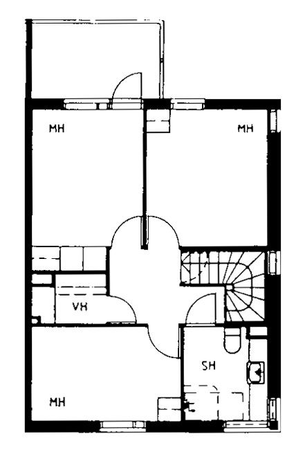
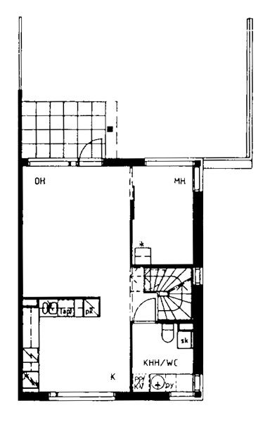
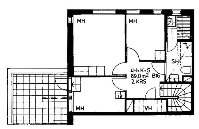
Ramsinniementie 5 B 16
4h+k+s
, Kerrostalo
89 m2
1/3
Ramsinniementie 5 B 16
4h+k+s
, Kerrostalo
89 m2
Kerros 1/3
Ramsinniementie 5 B 15
4h+k+s
, Kerrostalo
89 m2
1/3
Ramsinniementie 5 B 15
4h+k+s
, Kerrostalo
89 m2
Kerros 1/3
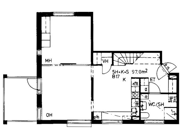
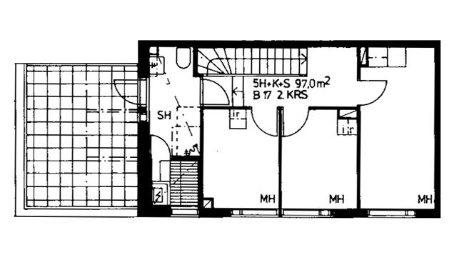
Ramsinniementie 5 B 17
5h+k+s
, Kerrostalo
97 m2
1/3
Ramsinniementie 5 B 17
5h+k+s
, Kerrostalo
97 m2
Kerros 1/3
Ramsinniementie 5 D 28
5h+k+s
, Paritalo
123.5 m2
1/3
Ramsinniementie 5 D 28
5h+k+s
, Paritalo
123.5 m2
Kerros 1/3
Ramsinniementie 5 D 27
5h+k+s
, Paritalo
123.5 m2
1-3/3
Ramsinniementie 5 D 27
5h+k+s
, Paritalo
123.5 m2
Kerros 1-3/3
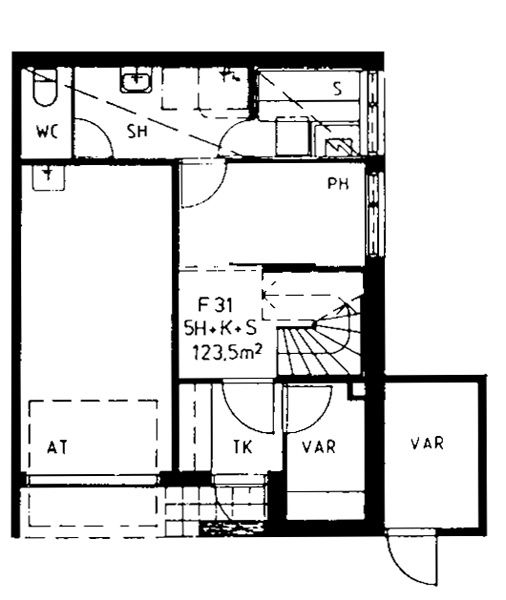
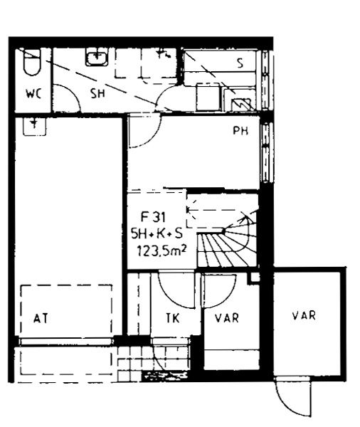
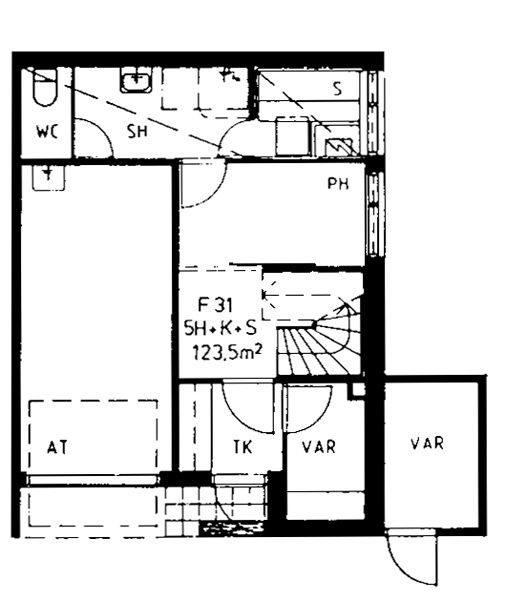
Ramsinniementie 5 F 31
5h+k+s
, Paritalo
123.5 m2
1/3
Ramsinniementie 5 F 31
5h+k+s
, Paritalo
123.5 m2
Kerros 1/3
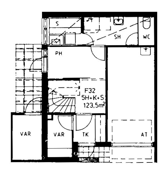
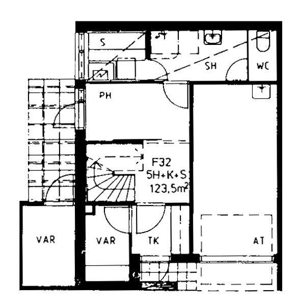
Ramsinniementie 5 F 32
5h+k+s
, Paritalo
123.5 m2
1/3
Ramsinniementie 5 F 32
5h+k+s
, Paritalo
123.5 m2
Kerros 1/3
Ramsinniementie 5 G 33
5h+k+s
, Paritalo
123.5 m2
1/3
Ramsinniementie 5 G 33
5h+k+s
, Paritalo
123.5 m2
Kerros 1/3
Ramsinniementie 5 G 34
5h+k+s
, Paritalo
123.5 m2
1/3
Ramsinniementie 5 G 34
5h+k+s
, Paritalo
123.5 m2
Kerros 1/3
Ramsinniementie 5 E 29
5h+k+s
, Paritalo
123.5 m2
1/3
Ramsinniementie 5 E 29
5h+k+s
, Paritalo
123.5 m2
Kerros 1/3
Ramsinniementie 5 E 30
5h+k+s
, Paritalo
123.5 m2
1/3
Ramsinniementie 5 E 30
5h+k+s
, Paritalo
123.5 m2
Kerros 1/3
