Kohteen esittely
Wolter Ramsayn katu 9 on Hennalan kaupunginosassa, kuusikerroksinen hissillinen talo, jossa on 45 huoneistoa yksiöstä kolmioon, 32 – 66 m2. Osa huoneistoista on saunallisia. Huoneistoissa on lasitetut parvekkeet, astianpesukoneet ja keraamiset liedet. Talo on savuton.
Hennala sijaitsee vain kaksi kilometriä Lahden keskustasta. Hennalasta on erinomaiset yhteydet keskustaan ja uuteen matkakeskukseen. Junamatka Lahdesta Helsinkiin taittuu alle tunnissa. Alueella ovat kauppa ja koulu sekä Salpausselän ulkoilumaastot lähes vieressä.
Yhtenäisenä kokonaisuutena Hennala on nuoressa Lahdessa rakennuskannaltaan ainutlaatuinen alue. Vanhan kasarmialueen naapuriksi Hennalan länsi- ja eteläosaan rakennetaan alueen ilmeeseen sopivia uudisrakennuksia, jotka edustavat tulevaisuuden kaupunkiasumista. Hennalan varuskunta-alue on luokiteltu valtakunnallisesti arvokkaasti rakennetuksi kulttuuriympäristöksi ja suurin osa vanhoista rakennuksista tullaan suojelemaan asemakaavassa. Tervetuloa Hennalaan!
Miksi Asuntosäätiö?
Me uskomme, että onnellinen koti ja laadukas asuminen kuuluvat kaikille. Emme tavoittele voittoa, vaan käytämme kaikki vastikkeista ja vuokrista saadut tulot toimintamme kehittämiseen. Jo yli 33 000 suomalaista on valinnut Asuntosäätiön tarjoaman kodin. Tiesithän, että myös lemmikit ovat tervetulleita kaikkiin koteihimme!
Rakennuksen tiedot
- Asumismuoto Asokoti
- Keskimääräinen asumisoikeusmaksu / jm² 540,64€
- Hissit 1
- Talosauna Ei
- Kuivaushuone Kyllä
- Asuntoja 45
- Asuinrakennuksia 1
- Käyttövastike / kk / jm² 12,87€
- Valmistumisvuosi 2019
- Porrashuoneet 1
- Energialuokka C
- Lämmitysmuoto Kauko
- Autopaikat 33
- Laajakaista DNA Welho
- Antennijärjestelmä Kaapeli
- Kattomateriaali Huopa
- Runkomateriaali Betoni
- Lemmikit Sallittu
Huoneistot ja pohjakuvat: Wolter Ramsayn katu 9, Kerrostalo
Lisää hakemukselle kaikki haluamasi asuntotyypit. Mahdollisuutesi asunnon saamiseksi paranevat, kun voimme tarjota sinulle kaikkia valitsemasi asuntotyypin asuntoja, jotka mahdollisesti vapautuvat myöhemmin tästä kohteesta. Olet automaattisesti näiden asuntotyyppien hakuprosessissa.
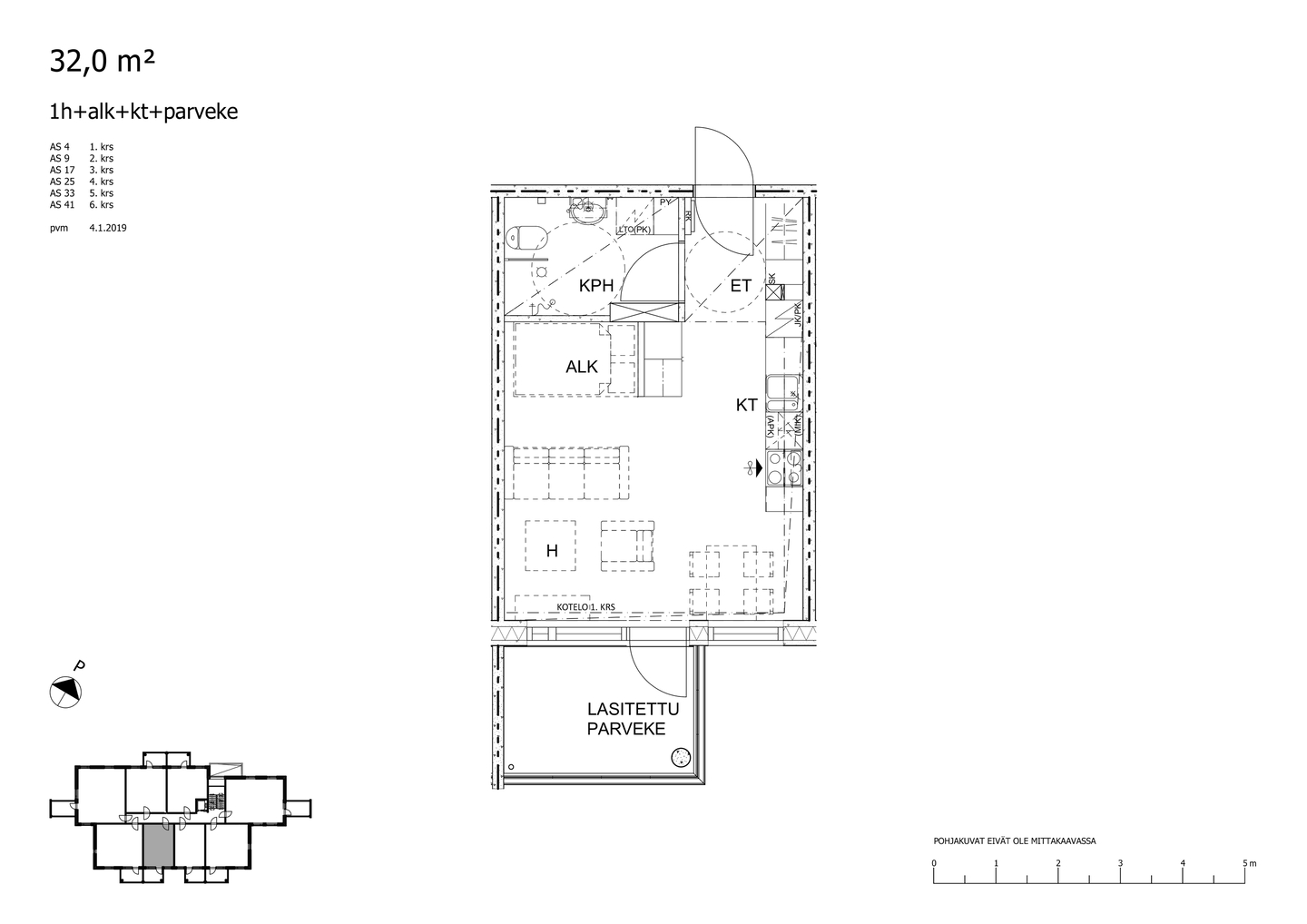
Wolter Ramsayn katu 9 A 16
1h+kt
, Kerrostalo
32 m2
3/6
Wolter Ramsayn katu 9 A 16
1h+kt
, Kerrostalo
32 m2
Kerros 3/6
Wolter Ramsayn katu 9 A 32
1h+kt
, Kerrostalo
32 m2
5/6
Wolter Ramsayn katu 9 A 32
1h+kt
, Kerrostalo
32 m2
Kerros 5/6
Wolter Ramsayn katu 9 A 33
1h+kt
, Kerrostalo
32 m2
5/6
Wolter Ramsayn katu 9 A 33
1h+kt
, Kerrostalo
32 m2
Kerros 5/6
Wolter Ramsayn katu 9 A 9
1h+kt
, Kerrostalo
32 m2
2/6
Wolter Ramsayn katu 9 A 9
1h+kt
, Kerrostalo
32 m2
Kerros 2/6
Wolter Ramsayn katu 9 A 24
1h+kt
, Kerrostalo
32 m2
4/6
Wolter Ramsayn katu 9 A 24
1h+kt
, Kerrostalo
32 m2
Kerros 4/6
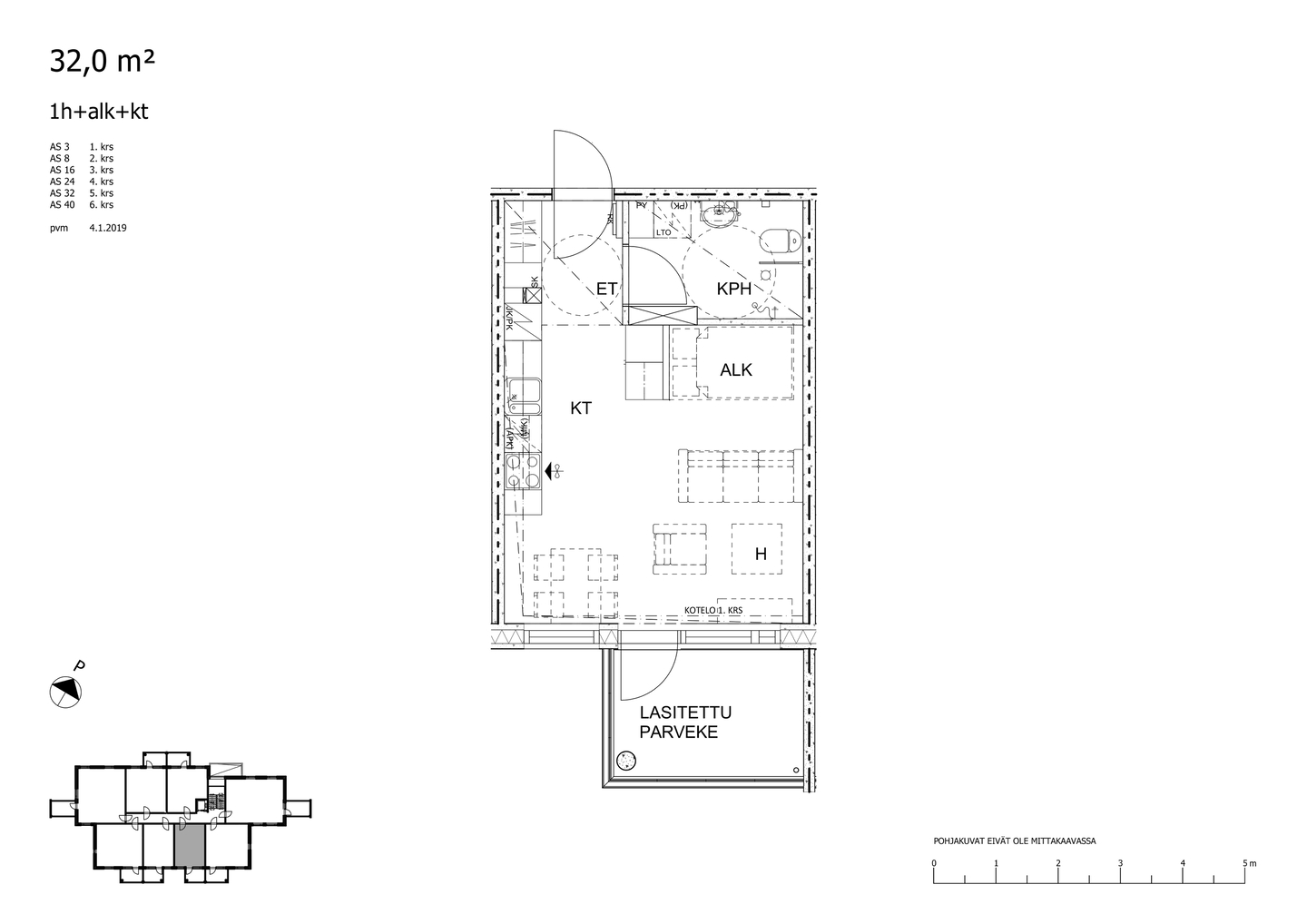
Wolter Ramsayn katu 9 A 3
1h+kt
, Kerrostalo
32 m2
1/6
Wolter Ramsayn katu 9 A 3
1h+kt
, Kerrostalo
32 m2
Kerros 1/6
Wolter Ramsayn katu 9 A 25
1h+kt
, Kerrostalo
32 m2
4/6
Wolter Ramsayn katu 9 A 25
1h+kt
, Kerrostalo
32 m2
Kerros 4/6
Wolter Ramsayn katu 9 A 17
1h+kt
, Kerrostalo
32 m2
3/6
Wolter Ramsayn katu 9 A 17
1h+kt
, Kerrostalo
32 m2
Kerros 3/6
Wolter Ramsayn katu 9 A 8
1h+kt
, Kerrostalo
32 m2
2/6
Wolter Ramsayn katu 9 A 8
1h+kt
, Kerrostalo
32 m2
Kerros 2/6
Wolter Ramsayn katu 9 A 40
1h+kt
, Kerrostalo
32 m2
6/6
Wolter Ramsayn katu 9 A 40
1h+kt
, Kerrostalo
32 m2
Kerros 6/6
Wolter Ramsayn katu 9 A 4
1h+kt
, Kerrostalo
32 m2
1/6
Wolter Ramsayn katu 9 A 4
1h+kt
, Kerrostalo
32 m2
Kerros 1/6
Wolter Ramsayn katu 9 A 41
1h+kt
, Kerrostalo
32 m2
6/6
Wolter Ramsayn katu 9 A 41
1h+kt
, Kerrostalo
32 m2
Kerros 6/6
Wolter Ramsayn katu 9 A 13
2h+kt
, Kerrostalo
41 m2
2/6
Wolter Ramsayn katu 9 A 13
2h+kt
, Kerrostalo
41 m2
Kerros 2/6
Wolter Ramsayn katu 9 A 29
2h+kt
, Kerrostalo
41 m2
4/6
Wolter Ramsayn katu 9 A 29
2h+kt
, Kerrostalo
41 m2
Kerros 4/6
Wolter Ramsayn katu 9 A 21
2h+kt
, Kerrostalo
41 m2
3/6
Wolter Ramsayn katu 9 A 21
2h+kt
, Kerrostalo
41 m2
Kerros 3/6
Wolter Ramsayn katu 9 A 45
2h+kt
, Kerrostalo
41 m2
6/6
Wolter Ramsayn katu 9 A 45
2h+kt
, Kerrostalo
41 m2
Kerros 6/6
Wolter Ramsayn katu 9 A 37
2h+kt
, Kerrostalo
41 m2
5/6
Wolter Ramsayn katu 9 A 37
2h+kt
, Kerrostalo
41 m2
Kerros 5/6
Wolter Ramsayn katu 9 A 28
2h+kt
, Kerrostalo
45 m2
4/6
Wolter Ramsayn katu 9 A 28
2h+kt
, Kerrostalo
45 m2
Kerros 4/6
Wolter Ramsayn katu 9 A 44
2h+kt
, Kerrostalo
45 m2
6/6
Wolter Ramsayn katu 9 A 44
2h+kt
, Kerrostalo
45 m2
Kerros 6/6
Wolter Ramsayn katu 9 A 12
2h+kt
, Kerrostalo
45 m2
2/6
Wolter Ramsayn katu 9 A 12
2h+kt
, Kerrostalo
45 m2
Kerros 2/6
Wolter Ramsayn katu 9 A 20
2h+kt
, Kerrostalo
45 m2
3/6
Wolter Ramsayn katu 9 A 20
2h+kt
, Kerrostalo
45 m2
Kerros 3/6
Wolter Ramsayn katu 9 A 36
2h+kt
, Kerrostalo
45 m2
5/6
Wolter Ramsayn katu 9 A 36
2h+kt
, Kerrostalo
45 m2
Kerros 5/6
Wolter Ramsayn katu 9 A 23
2h+kt
, Kerrostalo
46 m2
4/6
Wolter Ramsayn katu 9 A 23
2h+kt
, Kerrostalo
46 m2
Kerros 4/6
Wolter Ramsayn katu 9 A 7
2h+kt
, Kerrostalo
46 m2
2/6
Wolter Ramsayn katu 9 A 7
2h+kt
, Kerrostalo
46 m2
Kerros 2/6
Wolter Ramsayn katu 9 A 15
2h+kt
, Kerrostalo
46 m2
3/6
Wolter Ramsayn katu 9 A 15
2h+kt
, Kerrostalo
46 m2
Kerros 3/6
Wolter Ramsayn katu 9 A 31
2h+kt
, Kerrostalo
46 m2
5/6
Wolter Ramsayn katu 9 A 31
2h+kt
, Kerrostalo
46 m2
Kerros 5/6
Wolter Ramsayn katu 9 A 39
2h+kt
, Kerrostalo
46 m2
6/6
Wolter Ramsayn katu 9 A 39
2h+kt
, Kerrostalo
46 m2
Kerros 6/6
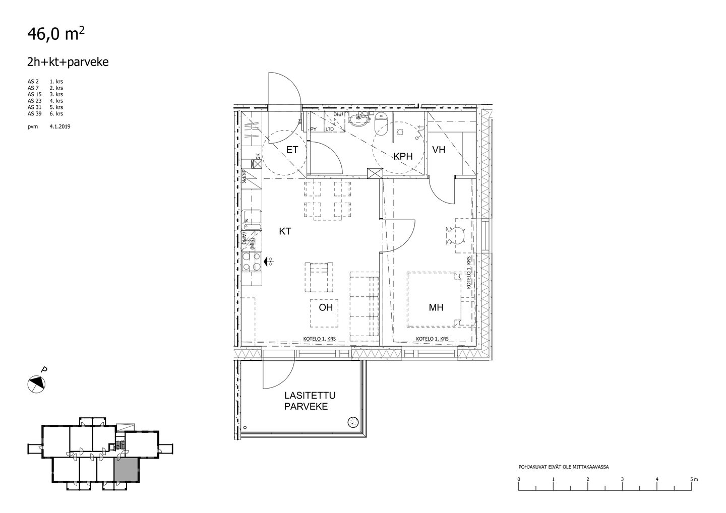
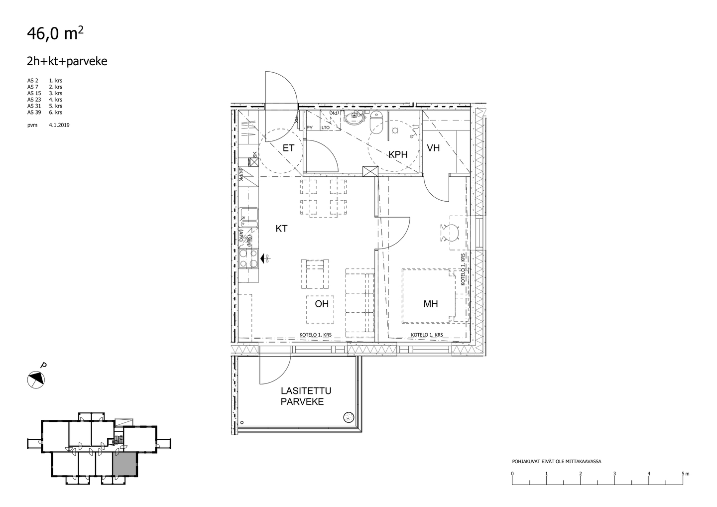
Wolter Ramsayn katu 9 A 2
2h+kt
, Kerrostalo
46 m2
1/6
Wolter Ramsayn katu 9 A 2
2h+kt
, Kerrostalo
46 m2
Kerros 1/6
Wolter Ramsayn katu 9 A 26
2h+kt+s
, Kerrostalo
50 m2
4/6
Wolter Ramsayn katu 9 A 26
2h+kt+s
, Kerrostalo
50 m2
Kerros 4/6
Wolter Ramsayn katu 9 A 34
2h+kt+s
, Kerrostalo
50 m2
5/6
Wolter Ramsayn katu 9 A 34
2h+kt+s
, Kerrostalo
50 m2
Kerros 5/6
Wolter Ramsayn katu 9 A 18
2h+kt+s
, Kerrostalo
50 m2
3/6
Wolter Ramsayn katu 9 A 18
2h+kt+s
, Kerrostalo
50 m2
Kerros 3/6
Wolter Ramsayn katu 9 A 10
2h+kt+s
, Kerrostalo
50 m2
2/6
Wolter Ramsayn katu 9 A 10
2h+kt+s
, Kerrostalo
50 m2
Kerros 2/6
Wolter Ramsayn katu 9 A 42
2h+kt+s
, Kerrostalo
50 m2
6/6
Wolter Ramsayn katu 9 A 42
2h+kt+s
, Kerrostalo
50 m2
Kerros 6/6
Wolter Ramsayn katu 9 A 5
2h+kt+s
, Kerrostalo
50 m2
1/6
Wolter Ramsayn katu 9 A 5
2h+kt+s
, Kerrostalo
50 m2
Kerros 1/6
Wolter Ramsayn katu 9 A 1
2h+kt+s
, Kerrostalo
51 m2
1/6
Wolter Ramsayn katu 9 A 1
2h+kt+s
, Kerrostalo
51 m2
Kerros 1/6
Wolter Ramsayn katu 9 A 38
3h+kt+s
, Kerrostalo
65 m2
6/6
Wolter Ramsayn katu 9 A 38
3h+kt+s
, Kerrostalo
65 m2
Kerros 6/6
Wolter Ramsayn katu 9 A 22
3h+kt+s
, Kerrostalo
65 m2
4/6
Wolter Ramsayn katu 9 A 22
3h+kt+s
, Kerrostalo
65 m2
Kerros 4/6
Wolter Ramsayn katu 9 A 6
3h+kt+s
, Kerrostalo
65 m2
2/6
Wolter Ramsayn katu 9 A 6
3h+kt+s
, Kerrostalo
65 m2
Kerros 2/6
Wolter Ramsayn katu 9 A 14
3h+kt+s
, Kerrostalo
65 m2
3/6
Wolter Ramsayn katu 9 A 14
3h+kt+s
, Kerrostalo
65 m2
Kerros 3/6
Wolter Ramsayn katu 9 A 30
3h+kt+s
, Kerrostalo
65 m2
5/6
Wolter Ramsayn katu 9 A 30
3h+kt+s
, Kerrostalo
65 m2
Kerros 5/6
Wolter Ramsayn katu 9 A 35
3h+kt+s
, Kerrostalo
66 m2
5/6
Wolter Ramsayn katu 9 A 35
3h+kt+s
, Kerrostalo
66 m2
Kerros 5/6
Wolter Ramsayn katu 9 A 19
3h+kt+s
, Kerrostalo
66 m2
3/6
Wolter Ramsayn katu 9 A 19
3h+kt+s
, Kerrostalo
66 m2
Kerros 3/6
Wolter Ramsayn katu 9 A 11
3h+kt+s
, Kerrostalo
66 m2
2/6
Wolter Ramsayn katu 9 A 11
3h+kt+s
, Kerrostalo
66 m2
Kerros 2/6
Wolter Ramsayn katu 9 A 43
3h+kt+s
, Kerrostalo
66 m2
6/6
Wolter Ramsayn katu 9 A 43
3h+kt+s
, Kerrostalo
66 m2
Kerros 6/6
Wolter Ramsayn katu 9 A 27
3h+kt+s
, Kerrostalo
66 m2
4/6
Wolter Ramsayn katu 9 A 27
3h+kt+s
, Kerrostalo
66 m2
Kerros 4/6
