Kohteen esittely
Entisellä asuntomessualueella Kanavansuulla kaksi kolmekerroksista tiilivuorattua hissitaloa lähellä Saimaan kanavaa ja hyviä ulkoilumaastoja. Kaikissa huoneistoissa oma sauna ja parveke. Kohteessa käytetään hiilineutraalia kaukolämpöä.
Rauhallinen lapsiystävällinen alue. Alueella Pontuksen päiväkoti ja koulu sekä kirjasto. Kaikki muut peruspalvelut parin kilometrin päässä Lauritsalassa. Hyvät linja-autoyhteydet keskustaan, noin 8 km.
Miksi Asuntosäätiö?
Me uskomme, että onnellinen koti ja laadukas asuminen kuuluvat kaikille. Emme tavoittele voittoa, vaan käytämme kaikki vastikkeista ja vuokrista saadut tulot toimintamme kehittämiseen. Jo yli 33 000 suomalaista on valinnut Asuntosäätiön tarjoaman kodin. Tiesithän, että myös lemmikit ovat tervetulleita kaikkiin koteihimme!
Rakennuksen tiedot
- Asumismuoto Asokoti
- Keskimääräinen asumisoikeusmaksu / jm² 342,36€
- Hissit 2
- Talosauna Ei
- Asuntoja 26
- Asuinrakennuksia 2
- Käyttövastike / kk / jm² 12,77€
- Valmistumisvuosi 1999
- Porrashuoneet 2
- Energialuokka D
- Lämmitysmuoto Kauko
- Autopaikat 31
- Laajakaista Elisa
- Antennijärjestelmä Kaapeli
- KaapeliTV Elisa
- Kattomateriaali Pelti
- Runkomateriaali Betoni
- Lemmikit Sallittu
Huoneistot ja pohjakuvat: Teroittajanpolku 2, Särmääjänkatu 2, Kerrostalo, Piharakennus
Lisää hakemukselle kaikki haluamasi asuntotyypit. Mahdollisuutesi asunnon saamiseksi paranevat, kun voimme tarjota sinulle kaikkia valitsemasi asuntotyypin asuntoja, jotka mahdollisesti vapautuvat myöhemmin tästä kohteesta. Olet automaattisesti näiden asuntotyyppien hakuprosessissa.
Teroittajanpolku 2 A 12
2h+kk+s
, Kerrostalo
44 m2
/3
Teroittajanpolku 2 A 12
2h+kk+s
, Kerrostalo
44 m2
Kerros /3
Teroittajanpolku 2 A 10
2h+kk+s
, Kerrostalo
44 m2
/3
Teroittajanpolku 2 A 10
2h+kk+s
, Kerrostalo
44 m2
Kerros /3
Teroittajanpolku 2 A 7
2h+kk+s
, Kerrostalo
44 m2
/3
Teroittajanpolku 2 A 7
2h+kk+s
, Kerrostalo
44 m2
Kerros /3
Teroittajanpolku 2 A 5
2h+kk+s
, Kerrostalo
44 m2
/3
Teroittajanpolku 2 A 5
2h+kk+s
, Kerrostalo
44 m2
Kerros /3
Särmääjänkatu 2 A 12
2h+kk+s
, Kerrostalo
44 m2
3/3
Särmääjänkatu 2 A 12
2h+kk+s
, Kerrostalo
44 m2
Kerros 3/3
Särmääjänkatu 2 A 7
2h+kk+s
, Kerrostalo
44 m2
2/3
Särmääjänkatu 2 A 7
2h+kk+s
, Kerrostalo
44 m2
Kerros 2/3
Särmääjänkatu 2 A 5
2h+kk+s
, Kerrostalo
44 m2
2/3
Särmääjänkatu 2 A 5
2h+kk+s
, Kerrostalo
44 m2
Kerros 2/3
Särmääjänkatu 2 A 10
2h+kk+s
, Kerrostalo
44 m2
3/3
Särmääjänkatu 2 A 10
2h+kk+s
, Kerrostalo
44 m2
Kerros 3/3
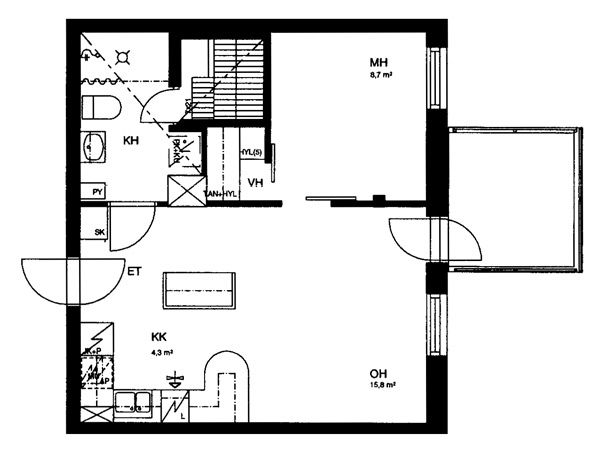
Teroittajanpolku 2 A 6
3h+k+s
, Kerrostalo
71.5 m2
/3
Teroittajanpolku 2 A 6
3h+k+s
, Kerrostalo
71.5 m2
Kerros /3
Teroittajanpolku 2 A 11
3h+k+s
, Kerrostalo
71.5 m2
/3
Teroittajanpolku 2 A 11
3h+k+s
, Kerrostalo
71.5 m2
Kerros /3
Särmääjänkatu 2 A 6
3h+k+s
, Kerrostalo
71.5 m2
2/3
Särmääjänkatu 2 A 6
3h+k+s
, Kerrostalo
71.5 m2
Kerros 2/3
Särmääjänkatu 2 A 11
3h+k+s
, Kerrostalo
71.5 m2
Kerros 3/3
Teroittajanpolku 2 A 8
3h+k+s
, Kerrostalo
77.5 m2
/3
Teroittajanpolku 2 A 8
3h+k+s
, Kerrostalo
77.5 m2
Kerros /3
Teroittajanpolku 2 A 4
3h+k+s
, Kerrostalo
77.5 m2
/3
Teroittajanpolku 2 A 4
3h+k+s
, Kerrostalo
77.5 m2
Kerros /3
Särmääjänkatu 2 A 8
3h+k+s
, Kerrostalo
77.5 m2
2/3
Särmääjänkatu 2 A 8
3h+k+s
, Kerrostalo
77.5 m2
Kerros 2/3
Särmääjänkatu 2 A 4
3h+k+s
, Kerrostalo
77.5 m2
2/3
Särmääjänkatu 2 A 4
3h+k+s
, Kerrostalo
77.5 m2
Kerros 2/3
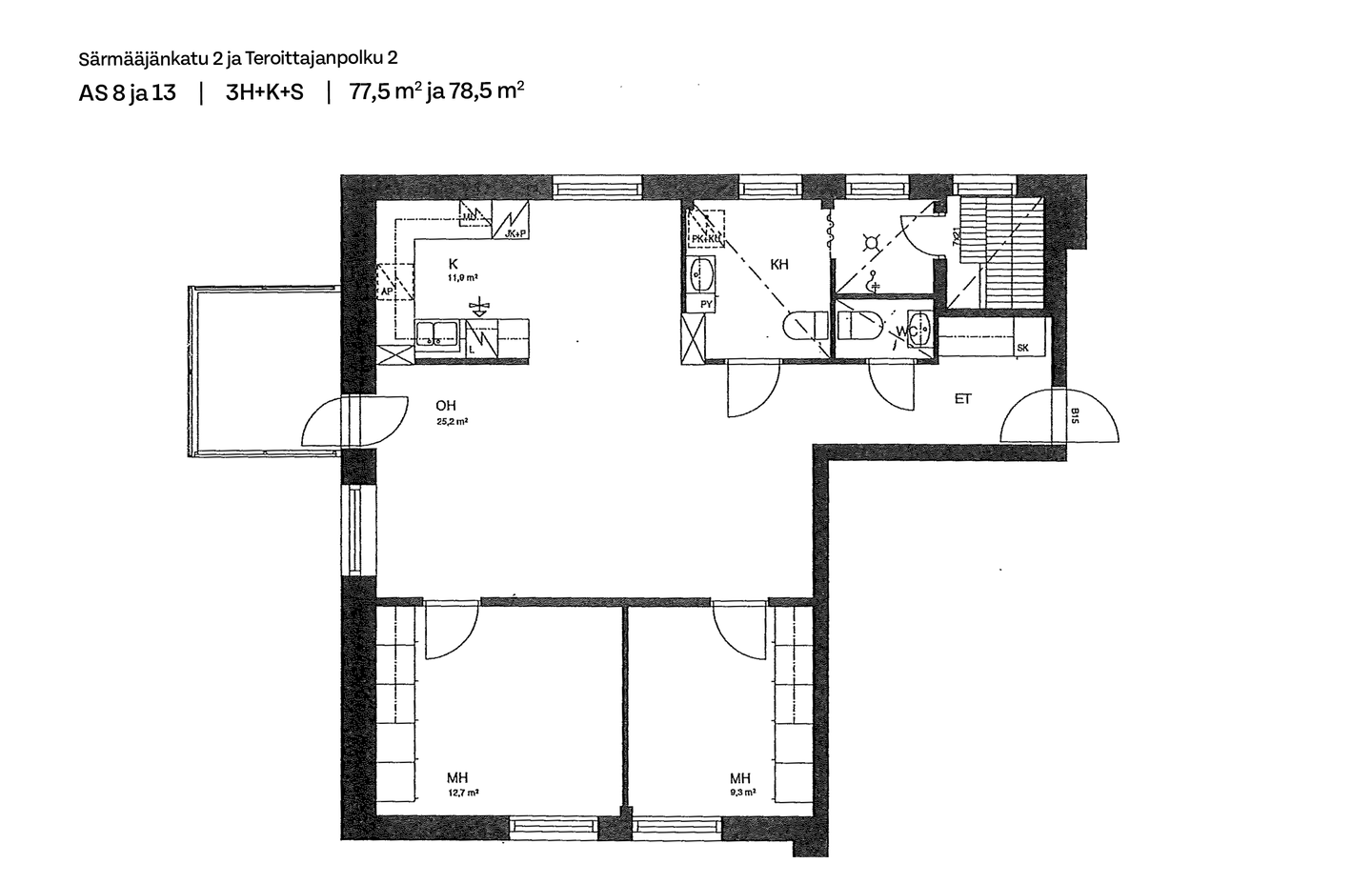
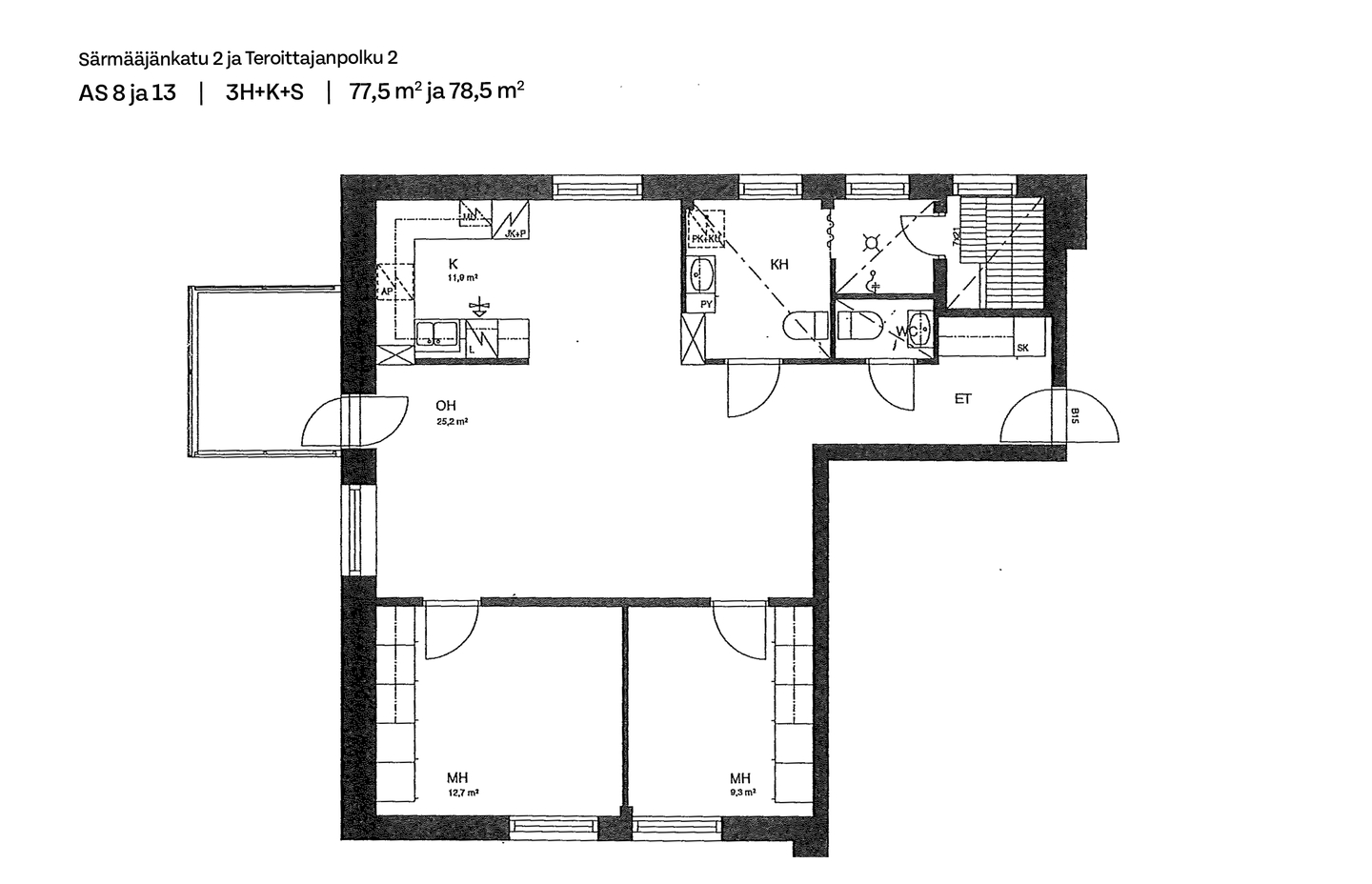
Teroittajanpolku 2 A 13
3h+k+s
, Kerrostalo
78.5 m2
Kerros /3
Teroittajanpolku 2 A 9
3h+k+s
, Kerrostalo
78.5 m2
/3
Teroittajanpolku 2 A 9
3h+k+s
, Kerrostalo
78.5 m2
Kerros /3
Särmääjänkatu 2 A 9
3h+k+s
, Kerrostalo
78.5 m2
3/3
Särmääjänkatu 2 A 9
3h+k+s
, Kerrostalo
78.5 m2
Kerros 3/3
Särmääjänkatu 2 A 13
3h+k+s
, Kerrostalo
78.5 m2
3/3
Särmääjänkatu 2 A 13
3h+k+s
, Kerrostalo
78.5 m2
Kerros 3/3
Teroittajanpolku 2 A 3
4h+k+s
, Kerrostalo
91 m2
Kerros /3
Särmääjänkatu 2 A 3
4h+k+s
, Kerrostalo
91.5 m2
1/3
Särmääjänkatu 2 A 3
4h+k+s
, Kerrostalo
91.5 m2
Kerros 1/3
Teroittajanpolku 2 A 1
4h+k+s
, Kerrostalo
96 m2
/3
Teroittajanpolku 2 A 1
4h+k+s
, Kerrostalo
96 m2
Kerros /3
Särmääjänkatu 2 A 1
4h+k+s
, Kerrostalo
96 m2
1/3
Särmääjänkatu 2 A 1
4h+k+s
, Kerrostalo
96 m2
Kerros 1/3
Teroittajanpolku 2 A 2
4h+k+s
, Kerrostalo
101.5 m2
/3
Teroittajanpolku 2 A 2
4h+k+s
, Kerrostalo
101.5 m2
Kerros /3
Särmääjänkatu 2 A 2
4h+k+s
, Kerrostalo
101.5 m2
1/3
Särmääjänkatu 2 A 2
4h+k+s
, Kerrostalo
101.5 m2
Kerros 1/3


