Kohteen esittely
Sovi yksityisesittelyn ottamalla yhteyttä: tarja.seeslahti@asuntosaatio.fi, puh 0400 910 479
Annilankadun seitsemänkerroksisessa talossa on 38 toimivapohjaista asumisoikeusasuntoa. Valoisien huoneistojen koot vaihtelevat yksiöistä tilaviin, neljän huoneen koteihin.
Isot, lasitetut parvekkeet sekä yhteinen kerhohuone terasseineen tuovat viihtyisää lisätilaa kaikkina vuodenaikoina. Talosauna ja vehreä piha-alue lisäävät asumismukavuutta. Tontilla on 45 autopaikkaa, joista kaikki vierasautopaikkaa lukuun ottamatta on varustettu lämmityspistorasioilla. Lisäksi on varauduttu latausasemiin. Talon katolla on aurinkopaneelit.
Miksi Asuntosäätiö?
Me uskomme, että onnellinen koti ja laadukas asuminen kuuluvat kaikille. Emme tavoittele voittoa, vaan käytämme kaikki vastikkeista ja vuokrista saadut tulot toimintamme kehittämiseen. Jo yli 33 000 suomalaista on valinnut Asuntosäätiön tarjoaman kodin. Tiesithän, että myös lemmikit ovat tervetulleita kaikkiin koteihimme!
Rakennuksen tiedot
- Asumismuoto Asokoti
- Keskimääräinen asumisoikeusmaksu / jm² 516,45€
- Hissit 1
- Talosauna 1
- Kuivaushuone Kyllä
- Asuntoja 38
- Asuinrakennuksia 1
- Käyttövastike / kk / jm² 11,9€
- Valmistumisvuosi 2024
- Porrashuoneet 1
- Energialuokka B2018
- Lämmitysmuoto Kauko
- Autopaikat 45
- Antennijärjestelmä Kaapeli
- KaapeliTV DNA
- Runkomateriaali Betoni
- Lemmikit Sallittu
Huoneistot ja pohjakuvat: Annilankatu 1, Kerrostalo
Lisää hakemukselle kaikki haluamasi asuntotyypit. Mahdollisuutesi asunnon saamiseksi paranevat, kun voimme tarjota sinulle kaikkia valitsemasi asuntotyypin asuntoja, jotka mahdollisesti vapautuvat myöhemmin tästä kohteesta. Olet automaattisesti näiden asuntotyyppien hakuprosessissa.
Annilankatu 1 A 24
1h+kt+alk
, Kerrostalo
35.5 m2
5/7
Annilankatu 1 A 24
1h+kt+alk
, Kerrostalo
35.5 m2
Kerros 5/7
Annilankatu 1 A 18
1h+kt+alk
, Kerrostalo
35.5 m2
4/7
Annilankatu 1 A 18
1h+kt+alk
, Kerrostalo
35.5 m2
Kerros 4/7
Annilankatu 1 A 12
1h+kt+alk
, Kerrostalo
35.5 m2
3/7
Annilankatu 1 A 12
1h+kt+alk
, Kerrostalo
35.5 m2
Kerros 3/7
Annilankatu 1 A 36
1h+kt+alk
, Kerrostalo
35.5 m2
7/7
Annilankatu 1 A 36
1h+kt+alk
, Kerrostalo
35.5 m2
Kerros 7/7
Annilankatu 1 A 30
1h+kt+alk
, Kerrostalo
35.5 m2
6/7
Annilankatu 1 A 30
1h+kt+alk
, Kerrostalo
35.5 m2
Kerros 6/7
Annilankatu 1 A 6
1h+kt+alk
, Kerrostalo
35.5 m2
2/7
Annilankatu 1 A 6
1h+kt+alk
, Kerrostalo
35.5 m2
Kerros 2/7
Annilankatu 1 A 1
2h+kt
, Kerrostalo
54.5 m2
1/7
Annilankatu 1 A 1
2h+kt
, Kerrostalo
54.5 m2
Kerros 1/7
Annilankatu 1 A 28
2h+kt
, Kerrostalo
54.5 m2
6/7
Annilankatu 1 A 28
2h+kt
, Kerrostalo
54.5 m2
Kerros 6/7
Annilankatu 1 A 10
2h+kt
, Kerrostalo
54.5 m2
3/7
Annilankatu 1 A 10
2h+kt
, Kerrostalo
54.5 m2
Kerros 3/7
Annilankatu 1 A 16
2h+kt
, Kerrostalo
54.5 m2
4/7
Annilankatu 1 A 16
2h+kt
, Kerrostalo
54.5 m2
Kerros 4/7
Annilankatu 1 A 34
2h+kt
, Kerrostalo
54.5 m2
7/7
Annilankatu 1 A 34
2h+kt
, Kerrostalo
54.5 m2
Kerros 7/7
Annilankatu 1 A 4
2h+kt
, Kerrostalo
54.5 m2
2/7
Annilankatu 1 A 4
2h+kt
, Kerrostalo
54.5 m2
Kerros 2/7
Annilankatu 1 A 22
2h+kt
, Kerrostalo
54.5 m2
5/7
Annilankatu 1 A 22
2h+kt
, Kerrostalo
54.5 m2
Kerros 5/7
Annilankatu 1 A 3
2h+kt
, Kerrostalo
56 m2
2/7
Annilankatu 1 A 3
2h+kt
, Kerrostalo
56 m2
Kerros 2/7
Annilankatu 1 A 15
2h+kt
, Kerrostalo
56 m2
4/7
Annilankatu 1 A 15
2h+kt
, Kerrostalo
56 m2
Kerros 4/7
Annilankatu 1 A 21
2h+kt
, Kerrostalo
56 m2
5/7
Annilankatu 1 A 21
2h+kt
, Kerrostalo
56 m2
Kerros 5/7
Annilankatu 1 A 9
2h+kt
, Kerrostalo
56 m2
3/7
Annilankatu 1 A 9
2h+kt
, Kerrostalo
56 m2
Kerros 3/7
Annilankatu 1 A 33
2h+kt
, Kerrostalo
56 m2
7/7
Annilankatu 1 A 33
2h+kt
, Kerrostalo
56 m2
Kerros 7/7
Annilankatu 1 A 27
2h+kt
, Kerrostalo
56 m2
6/7
Annilankatu 1 A 27
2h+kt
, Kerrostalo
56 m2
Kerros 6/7
Annilankatu 1 A 23
2h+kt
, Kerrostalo
57.5 m2
5/7
Annilankatu 1 A 23
2h+kt
, Kerrostalo
57.5 m2
Kerros 5/7
Annilankatu 1 A 5
2h+kt
, Kerrostalo
57.5 m2
2/7
Annilankatu 1 A 5
2h+kt
, Kerrostalo
57.5 m2
Kerros 2/7
Annilankatu 1 A 2
2h+kt
, Kerrostalo
57.5 m2
1/7
Annilankatu 1 A 2
2h+kt
, Kerrostalo
57.5 m2
Kerros 1/7
Annilankatu 1 A 11
2h+kt
, Kerrostalo
57.5 m2
3/7
Annilankatu 1 A 11
2h+kt
, Kerrostalo
57.5 m2
Kerros 3/7
Annilankatu 1 A 35
2h+kt
, Kerrostalo
57.5 m2
7/7
Annilankatu 1 A 35
2h+kt
, Kerrostalo
57.5 m2
Kerros 7/7
Annilankatu 1 A 29
2h+kt
, Kerrostalo
57.5 m2
Kerros 6/7
Annilankatu 1 A 17
2h+kt
, Kerrostalo
57.5 m2
4/7
Annilankatu 1 A 17
2h+kt
, Kerrostalo
57.5 m2
Kerros 4/7
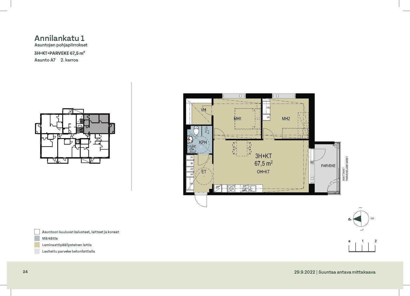
Annilankatu 1 A 19
3h+kt
, Kerrostalo
67.5 m2
4/7
Annilankatu 1 A 19
3h+kt
, Kerrostalo
67.5 m2
Kerros 4/7
Annilankatu 1 A 7
3h+kt
, Kerrostalo
67.5 m2
2/7
Annilankatu 1 A 7
3h+kt
, Kerrostalo
67.5 m2
Kerros 2/7
Annilankatu 1 A 31
3h+kt
, Kerrostalo
67.5 m2
6/7
Annilankatu 1 A 31
3h+kt
, Kerrostalo
67.5 m2
Kerros 6/7
Annilankatu 1 A 13
3h+kt
, Kerrostalo
67.5 m2
3/7
Annilankatu 1 A 13
3h+kt
, Kerrostalo
67.5 m2
Kerros 3/7
Annilankatu 1 A 25
3h+kt
, Kerrostalo
67.5 m2
5/7
Annilankatu 1 A 25
3h+kt
, Kerrostalo
67.5 m2
Kerros 5/7
Annilankatu 1 A 37
3h+kt
, Kerrostalo
67.5 m2
7/7
Annilankatu 1 A 37
3h+kt
, Kerrostalo
67.5 m2
Kerros 7/7
Annilankatu 1 A 26
4h+k
, Kerrostalo
88.5 m2
5/7
Annilankatu 1 A 26
4h+k
, Kerrostalo
88.5 m2
Kerros 5/7
Annilankatu 1 A 8
4h+k
, Kerrostalo
88.5 m2
2/7
Annilankatu 1 A 8
4h+k
, Kerrostalo
88.5 m2
Kerros 2/7
Annilankatu 1 A 38
4h+k
, Kerrostalo
88.5 m2
7/7
Annilankatu 1 A 38
4h+k
, Kerrostalo
88.5 m2
Kerros 7/7
Annilankatu 1 A 32
4h+k
, Kerrostalo
88.5 m2
6/7
Annilankatu 1 A 32
4h+k
, Kerrostalo
88.5 m2
Kerros 6/7
Annilankatu 1 A 14
4h+k
, Kerrostalo
88.5 m2
3/7
Annilankatu 1 A 14
4h+k
, Kerrostalo
88.5 m2
Kerros 3/7
Annilankatu 1 A 20
4h+k
, Kerrostalo
88.5 m2
4/7
Annilankatu 1 A 20
4h+k
, Kerrostalo
88.5 m2
Kerros 4/7