Siirry sisältöön

Kohteen esittely

Hakuaika on päättynyt ja käsittelemme nyt hakuaikana tulleita hakemuksia. Voit kuitenkin jättää hakemuksen vapaisiin asuntoihin, niihin on jatkuva haku. Hae uutta kodikasta asuntoa Viistokujalta! Mikäli sinulla ei ole vielä järjestysnumeroa, tai se on menossa vanhaksi, niin haethan uuden aso järjestysnumeron www.varke.fi sivuilta ja lisää se hakemukselle. Hakemus ei sido ostamaan asumisoikeusasuntoa.

Pirkkalan keskustaan nousee 37 uutta Asuntosäätiön asumisoikeusasuntoa, joista löytyy kaikenlaisiin elämäntilanteisiin sopiva koti.

Tyylikäs vaalea talo valmistuu arviolta 08/2026 ja kätkee sisäänsä eri kokoisia huoneistoja, yksiöistä neljän huoneen tilaviin perhekoteihin, asuinpinta-aloiltaan 35,5-95m2. Osoitteensa mukaisesti talon veikeän viisto muoto tuo pohjaratkaisuihin hauskaa persoonallisuutta. Kaikki kodit on varustettu tilavilla lasitetuilla parvekkeilla, jotka tarjoavat lisää oleskelutilaa läpi vuoden. Vehreässä pihapiirissä on ilo seurata vuodenaikojen vaihtumista. Yhteisellä pihalla on valmiina pihasauna, jossa pääsee nauttimaan löylyistä (saunavuorot varattavissa erikseen sähköisen järjestelmän kautta). Asukkaiden käyttöön tulevat myös yhteinen talopesula, kuivaushuone, varastotilat sekä kellarikerrokseen rakentuva pysäköintihalli.

Miksi Asuntosäätiö?

Me uskomme, että onnellinen koti ja laadukas asuminen kuuluvat kaikille. Emme tavoittele voittoa, vaan käytämme kaikki vastikkeista ja vuokrista saadut tulot toimintamme kehittämiseen. Jo yli 33 000 suomalaista on valinnut Asuntosäätiön tarjoaman kodin. Tiesithän, että myös lemmikit ovat tervetulleita kaikkiin koteihimme!

Rakennuksen tiedot

  • Asumismuoto Asokoti
  • Keskimääräinen asumisoikeusmaksu / jm² 596,83€
  • Hissit 1
  • Talosauna Ei
  • Pyykkitupa Kyllä
  • Kuivaushuone Kyllä
Nainen ja poika tanssivat olohuoneessa sohvan edessä

Lataa esite Viistokujan kohteestamme

Esite Viistokuja 6 Pirkkala

Huoneistot ja pohjakuvat: Viistokuja 6, Kerrostalo

Lisää hakemukselle kaikki haluamasi asuntotyypit. Mahdollisuutesi asunnon saamiseksi paranevat, kun voimme tarjota sinulle kaikkia valitsemasi asuntotyypin asuntoja, jotka mahdollisesti vapautuvat myöhemmin tästä kohteesta. Olet automaattisesti näiden asuntotyyppien hakuprosessissa.

Hae asuntotyyppiä

Viistokuja 6 A 1

1h+kt

, Kerrostalo

35.5 m2

Kerros 1/6

Vapautuu 27.08.2026

Viistokuja 6 A 7

1h+kt+alk

, Kerrostalo

44 m2

Kerros 1/6

Hae asuntotyyppiä

Viistokuja 6 A 5

2h+kt

, Kerrostalo

49.5 m2

Kerros 1/6

Vapautuu 27.08.2026

Viistokuja 6 A 34

2h+kt

, Kerrostalo

49.5 m2

Kerros 6/6

Vapautuu 27.08.2026

Viistokuja 6 A 10

2h+kt

, Kerrostalo

49.5 m2

Kerros 2/6

Vapautuu 27.08.2026

Viistokuja 6 A 28

2h+kt

, Kerrostalo

49.5 m2

Kerros 5/6

Vapautuu 27.08.2026

Viistokuja 6 A 16

2h+kt

, Kerrostalo

49.5 m2

Kerros 3/6

Vapautuu 27.08.2026

Viistokuja 6 A 22

2h+kt

, Kerrostalo

49.5 m2

Kerros 4/6

Vapautuu 27.08.2026

Viistokuja 6 A 35

2h+kt

, Kerrostalo

52 m2

Kerros 6/6

Vapautuu 27.08.2026

Viistokuja 6 A 17

2h+kt

, Kerrostalo

52 m2

Kerros 3/6

Vapautuu 27.08.2026

Viistokuja 6 A 29

2h+kt

, Kerrostalo

52 m2

Kerros 5/6

Vapautuu 27.08.2026

Viistokuja 6 A 6

2h+kt

, Kerrostalo

52 m2

Kerros 1/6

Vapautuu 27.08.2026

Viistokuja 6 A 23

2h+kt

, Kerrostalo

52 m2

Kerros 4/6

Vapautuu 27.08.2026

Viistokuja 6 A 11

2h+kt

, Kerrostalo

52 m2

Kerros 2/6

Vapautuu 27.08.2026
Hae asuntotyyppiä

Viistokuja 6 A 2

3h+kt

, Kerrostalo

63 m2

Kerros 1/6

Vapautuu 27.08.2026

Viistokuja 6 A 25

3h+kt

, Kerrostalo

63 m2

Kerros 4/6

Vapautuu 27.08.2026

Viistokuja 6 A 31

3h+kt

, Kerrostalo

63 m2

Kerros 5/6

Vapautuu 27.08.2026

Viistokuja 6 A 19

3h+kt

, Kerrostalo

63 m2

Kerros 3/6

Vapautuu 27.08.2026

Viistokuja 6 A 13

3h+kt

, Kerrostalo

63 m2

Kerros 2/6

Vapautuu 27.08.2026

Viistokuja 6 A 37

3h+kt

, Kerrostalo

63 m2

Kerros 6/6

Vapautuu 27.08.2026

Viistokuja 6 A 4

3h+kt

, Kerrostalo

67.5 m2

Kerros 1/6

Vapautuu 27.08.2026

Viistokuja 6 A 27

3h+kt

, Kerrostalo

67.5 m2

Kerros 5/6

Vapautuu 27.08.2026

Viistokuja 6 A 15

3h+kt

, Kerrostalo

67.5 m2

Kerros 3/6

Vapautuu 27.08.2026

Viistokuja 6 A 9

3h+kt

, Kerrostalo

67.5 m2

Kerros 2/6

Vapautuu 27.08.2026

Viistokuja 6 A 21

3h+kt

, Kerrostalo

67.5 m2

Kerros 4/6

Vapautuu 27.08.2026

Viistokuja 6 A 33

3h+kt

, Kerrostalo

67.5 m2

Kerros 6/6

Vapautuu 27.08.2026

Viistokuja 6 A 3

3h+kt

, Kerrostalo

69.5 m2

Kerros 1/6

Vapautuu 27.08.2026

Viistokuja 6 A 14

3h+kt

, Kerrostalo

69.5 m2

Kerros 3/6

Vapautuu 27.08.2026

Viistokuja 6 A 26

3h+kt

, Kerrostalo

69.5 m2

Kerros 5/6

Vapautuu 27.08.2026

Viistokuja 6 A 8

3h+kt

, Kerrostalo

69.5 m2

Kerros 2/6

Vapautuu 27.08.2026

Viistokuja 6 A 20

3h+kt

, Kerrostalo

69.5 m2

Kerros 4/6

Vapautuu 27.08.2026

Viistokuja 6 A 32

3h+kt

, Kerrostalo

69.5 m2

Kerros 6/6

Vapautuu 27.08.2026
Hae asuntotyyppiä

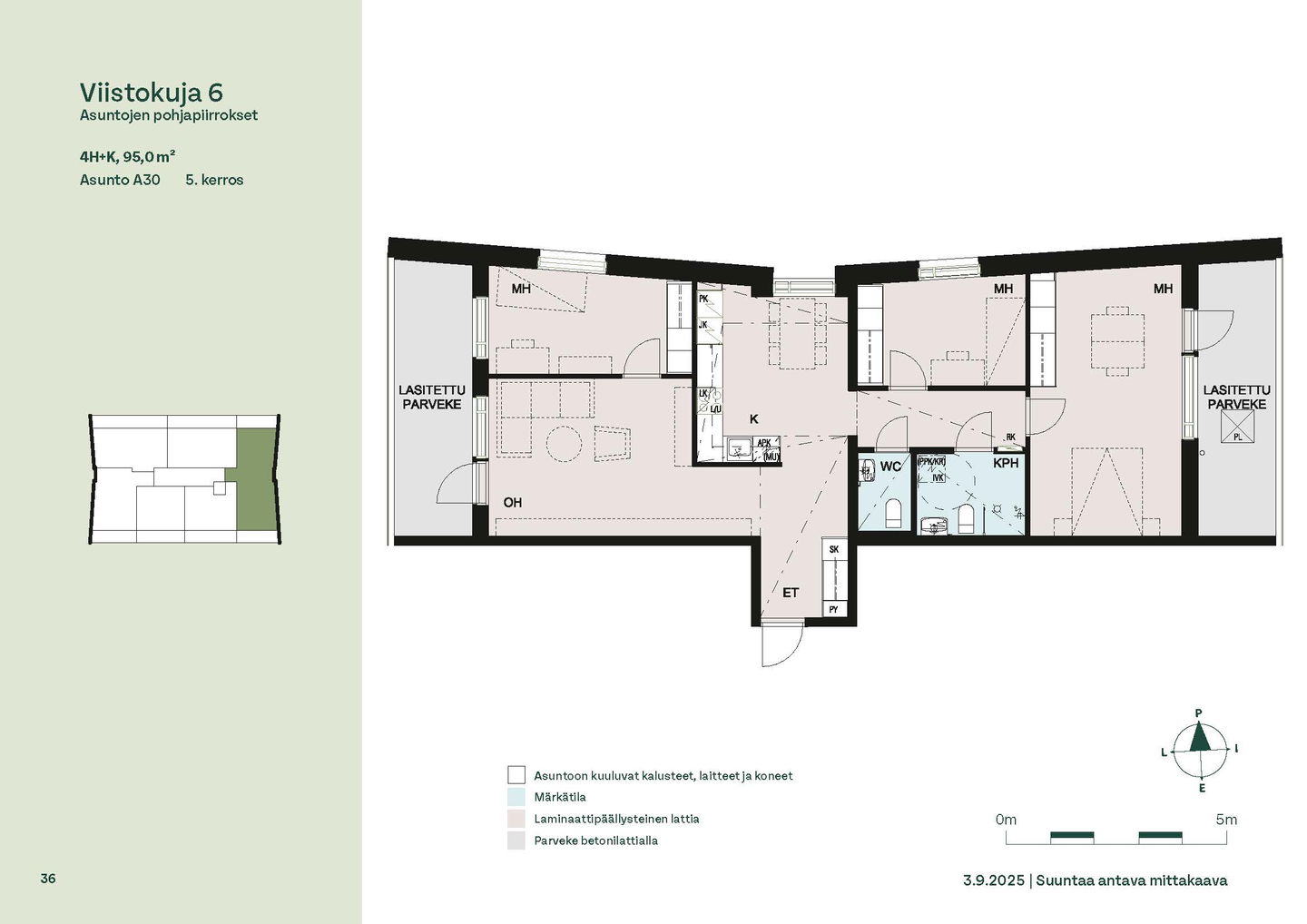
Viistokuja 6 A 30

4h+k

, Kerrostalo

95 m2

Kerros 5/6

Vapautuu 27.08.2026

Viistokuja 6 A 12

4h+k

, Kerrostalo

95 m2

Kerros 2/6

Vapautuu 27.08.2026

Viistokuja 6 A 24

4h+k

, Kerrostalo

95 m2

Kerros 4/6

Vapautuu 27.08.2026

Viistokuja 6 A 18

4h+kt

, Kerrostalo

95 m2

Kerros 3/6

Vapautuu 27.08.2026

Viistokuja 6 A 36

4h+kt

, Kerrostalo

95 m2

Kerros 6/6

Vapautuu 27.08.2026