Siirry sisältöön

Viistokuja 6 A 36, Pirkkala, KESKUSTA

95 m2, 4H+KT

Asuntomyyjä

Karita Koppinen

Upea ja väljä ylimmän (6.) kerroksen kulmahuoneisto kahdella valtavalla parvekkeella!

Tähän kotiin tulvii luonnonvaloa kolmesta eri ilmansuunnasta: etelästä, lännestä ja pohjoisesta.

Jos haluat saada lisätietoja tästä asunnosta, otathan yhteyttä myyjäämme.

Tervetuloa tulevaisuuden kotiisi!

Upea ja väljä ylimmän (6.) kerroksen kulmahuoneisto kahdella valtavalla parvekkeella! Tähän kotiin tulvii luonnonvaloa kolmesta eri ilmansuunnasta: etelästä, lännestä ja pohjoisesta. Keittiö on erillään omassa rauhassaan ja siellä on paljon kaappi- ja laskutilaa. Keittiöstä löytyy myös isommallekin ruokapöydälle oma paikkansa. Olohuoneesta on käynti asunnon toiselle huoneiston levyiselle lasitetulle parvekkeelle, joka aukeaa etelään. Kaikissa makuuhuoneissa on hyvät kaapistot tavaroiden säilytykseen, yksi makuuhuoneista on erillään muista omassa rauhassa. Kaikkiin makuuhuoneisiin mahtuu sänkyjen lisäksi työpisteet. Suurimmasta makuuhuoneessa on mahdollisuuksia moneen, sen voi vaikkapa jakaa kahden lapsen kesken, ja siinä on lisäksi asunnonlevyinen lasitettu parveke pohjoiseen. Kylpyhuoneessa on tilavaraus ja liitännät valmiina pesutornille, hyvänä lisänä myös erillinen wc arjen sujuvuutta helpottamassa. Haethan ensin järjestysnumeron www.varke.fi nettisivuilta, ja jätäthän sitten hakemuksen tähän viehättävään asokotiin!

Jos haluat saada lisätietoja tästä asunnosta, otathan yhteyttä myyjäämme.

Asunnon tiedot

Asuinkustannukset

Hinnat ovat toistaiseksi arvioita.

  • Luovutushinta 55504,97€
    • — Alkuperäinen asumisoikeusmaksu 55504,97€
  • Käyttövastike 1568,91€
    • — Perusvastike 1355,01€
    • — Hoitovastike 213,9€
  • Käyttövastike 1.1. 1568,91€
    • — Perusvastike 1.1. 1355,01€
    • — Hoitovastike 1.1. 213,9€
  • Vakuusmaksu 250€
  • Vesimaksuennakko/hlö/kk 25€
  • Autopaikkamaksut
    • — Autohallimaksu 1 40,00€

Perustiedot asunnosta

  • Talotyyppi Kerrostalo
  • Energialuokka A
  • Huoneistotyyppi 4H+KT
  • Pinta-ala 95.00 m²
  • Kerros 6
  • Parveke 1
  • Oma sauna Ei
  • Erillinen wc Kyllä
  • Hissi Kyllä
  • Arvioitu valmistumisaika 27.08.2026
  • Kunto Erinomainen
  • Lemmikit Sallittu

Lisätietoja

Tupakointi asunnoissamme

Kaikki uudet asuinkiinteistömme ovat olleet jo pitkään täysin savuttomia heti valmistumisestaan lähtien. Muutumme vähitellen savuttomiksi kaikkien asuntojemme osalta: uusien asukkaiden sopimukset ovat kieltäneet tupakoinnin huoneistoissa ja parvekkeilla 1.1.2021 alkaen. Kiinteistö ei ole välttämättä savuton muiden huoneistojen osalta, koska niissä voi olla vanhoja sopimuksia, joissa ei ole tupakointikieltoa.

Kohteen esittely

Hakuaika on päättynyt ja käsittelemme nyt hakuaikana tulleita hakemuksia. Voit kuitenkin jättää hakemuksen vapaisiin asuntoihin, niihin on jatkuva haku. Hae uutta kodikasta asuntoa Viistokujalta! Mikäli sinulla ei ole vielä järjestysnumeroa, tai se on menossa vanhaksi, niin haethan uuden aso järjestysnumeron www.varke.fi sivuilta ja lisää se hakemukselle. Hakemus ei sido ostamaan asumisoikeusasuntoa.

Pirkkalan keskustaan nousee 37 uutta Asuntosäätiön asumisoikeusasuntoa, joista löytyy kaikenlaisiin elämäntilanteisiin sopiva koti.

Tyylikäs vaalea talo valmistuu arviolta 08/2026 ja kätkee sisäänsä eri kokoisia huoneistoja, yksiöistä neljän huoneen tilaviin perhekoteihin, asuinpinta-aloiltaan 35,5-95m2. Osoitteensa mukaisesti talon veikeän viisto muoto tuo pohjaratkaisuihin hauskaa persoonallisuutta. Kaikki kodit on varustettu tilavilla lasitetuilla parvekkeilla, jotka tarjoavat lisää oleskelutilaa läpi vuoden. Vehreässä pihapiirissä on ilo seurata vuodenaikojen vaihtumista. Yhteisellä pihalla on valmiina pihasauna, jossa pääsee nauttimaan löylyistä (saunavuorot varattavissa erikseen sähköisen järjestelmän kautta). Asukkaiden käyttöön tulevat myös yhteinen talopesula, kuivaushuone, varastotilat sekä kellarikerrokseen rakentuva pysäköintihalli.

Miksi Asuntosäätiö?

Me uskomme, että onnellinen koti ja laadukas asuminen kuuluvat kaikille. Emme tavoittele voittoa, vaan käytämme kaikki vastikkeista ja vuokrista saadut tulot toimintamme kehittämiseen. Jo yli 33 000 suomalaista on valinnut Asuntosäätiön tarjoaman kodin. Tiesithän, että myös lemmikit ovat tervetulleita kaikkiin koteihimme!

Kohteen esittely

Hakuaika on päättynyt ja käsittelemme nyt hakuaikana tulleita hakemuksia. Voit kuitenkin jättää hakemuksen vapaisiin asuntoihin, niihin on jatkuva haku. Hae uutta kodikasta asuntoa Viistokujalta! Mikäli sinulla ei ole vielä järjestysnumeroa, tai se on menossa vanhaksi, niin haethan uuden aso järjestysnumeron www.varke.fi sivuilta ja lisää se hakemukselle. Hakemus ei sido ostamaan asumisoikeusasuntoa. Pirkkalan keskustaan nousee 37 uutta Asuntosäätiön asumisoikeusasuntoa, joista löytyy kaikenlaisiin elämäntilanteisiin sopiva koti. Tyylikäs vaalea talo valmistuu arviolta 08/2026 ja kätkee sisäänsä eri kokoisia huoneistoja, yksiöistä neljän huoneen tilaviin perhekoteihin, asuinpinta-aloiltaan 35,5-95m2. Osoitteensa mukaisesti talon veikeän viisto muoto tuo pohjaratkaisuihin hauskaa persoonallisuutta. Kaikki kodit on varustettu tilavilla lasitetuilla parvekkeilla, jotka tarjoavat lisää oleskelutilaa läpi vuoden. Vehreässä pihapiirissä on ilo seurata vuodenaikojen vaihtumista. Yhteisellä pihalla on valmiina pihasauna, jossa pääsee nauttimaan löylyistä (saunavuorot varattavissa erikseen sähköisen järjestelmän kautta). Asukkaiden käyttöön tulevat myös yhteinen talopesula, kuivaushuone, varastotilat sekä kellarikerrokseen rakentuva pysäköintihalli. Sijainti Pirkkalan keskustassa helpottaa arjen kulkua. Viistokujalla asutaan kuin pienessä, hurmaavassa kylässä, jossa palvelut ovat lähellä. Koulut ja päiväkodit ovat turvallisen kävelymatkan päässä, kuten myös urheilukenttä, vapaa-aikakeskus ja muut monipuoliset harrastusmahdollisuudet. Kotitalon tuntumasta löytyy päivittäistavarakauppoja sekä muut palvelut apteekista supermarkettiin. Onnella on osoite.

Rakennuksen tiedot

  • Asumismuoto Asokoti
  • Keskimääräinen asumisoikeusmaksu / jm² 596,83€
  • Hissit 1
  • Talosauna Ei
  • Pyykkitupa Kyllä
  • Kuivaushuone Kyllä

Huoneistot ja pohjakuvat: Viistokuja 6, Kerrostalo

Lisää hakemukselle kaikki haluamasi asuntotyypit. Mahdollisuutesi asunnon saamiseksi paranevat, kun voimme tarjota sinulle kaikkia valitsemasi asuntotyypin asuntoja, jotka mahdollisesti vapautuvat myöhemmin tästä kohteesta. Olet automaattisesti näiden asuntotyyppien hakuprosessissa.

Hae asuntotyyppiä

Viistokuja 6 A 1

1h+kt

, Kerrostalo

35.5 m2

Kerros 1/6

Vapautuu 27.08.2026

Viistokuja 6 A 7

1h+kt+alk

, Kerrostalo

44 m2

Kerros 1/6

Hae asuntotyyppiä

Viistokuja 6 A 5

2h+kt

, Kerrostalo

49.5 m2

Kerros 1/6

Vapautuu 27.08.2026

Viistokuja 6 A 34

2h+kt

, Kerrostalo

49.5 m2

Kerros 6/6

Vapautuu 27.08.2026

Viistokuja 6 A 10

2h+kt

, Kerrostalo

49.5 m2

Kerros 2/6

Vapautuu 27.08.2026

Viistokuja 6 A 28

2h+kt

, Kerrostalo

49.5 m2

Kerros 5/6

Vapautuu 27.08.2026

Viistokuja 6 A 16

2h+kt

, Kerrostalo

49.5 m2

Kerros 3/6

Vapautuu 27.08.2026

Viistokuja 6 A 22

2h+kt

, Kerrostalo

49.5 m2

Kerros 4/6

Vapautuu 27.08.2026

Viistokuja 6 A 35

2h+kt

, Kerrostalo

52 m2

Kerros 6/6

Vapautuu 27.08.2026

Viistokuja 6 A 17

2h+kt

, Kerrostalo

52 m2

Kerros 3/6

Vapautuu 27.08.2026

Viistokuja 6 A 29

2h+kt

, Kerrostalo

52 m2

Kerros 5/6

Vapautuu 27.08.2026

Viistokuja 6 A 6

2h+kt

, Kerrostalo

52 m2

Kerros 1/6

Vapautuu 27.08.2026

Viistokuja 6 A 23

2h+kt

, Kerrostalo

52 m2

Kerros 4/6

Vapautuu 27.08.2026

Viistokuja 6 A 11

2h+kt

, Kerrostalo

52 m2

Kerros 2/6

Vapautuu 27.08.2026
Hae asuntotyyppiä

Viistokuja 6 A 2

3h+kt

, Kerrostalo

63 m2

Kerros 1/6

Vapautuu 27.08.2026

Viistokuja 6 A 25

3h+kt

, Kerrostalo

63 m2

Kerros 4/6

Vapautuu 27.08.2026

Viistokuja 6 A 31

3h+kt

, Kerrostalo

63 m2

Kerros 5/6

Vapautuu 27.08.2026

Viistokuja 6 A 19

3h+kt

, Kerrostalo

63 m2

Kerros 3/6

Vapautuu 27.08.2026

Viistokuja 6 A 13

3h+kt

, Kerrostalo

63 m2

Kerros 2/6

Vapautuu 27.08.2026

Viistokuja 6 A 37

3h+kt

, Kerrostalo

63 m2

Kerros 6/6

Vapautuu 27.08.2026

Viistokuja 6 A 4

3h+kt

, Kerrostalo

67.5 m2

Kerros 1/6

Vapautuu 27.08.2026

Viistokuja 6 A 27

3h+kt

, Kerrostalo

67.5 m2

Kerros 5/6

Vapautuu 27.08.2026

Viistokuja 6 A 15

3h+kt

, Kerrostalo

67.5 m2

Kerros 3/6

Vapautuu 27.08.2026

Viistokuja 6 A 9

3h+kt

, Kerrostalo

67.5 m2

Kerros 2/6

Vapautuu 27.08.2026

Viistokuja 6 A 21

3h+kt

, Kerrostalo

67.5 m2

Kerros 4/6

Vapautuu 27.08.2026

Viistokuja 6 A 33

3h+kt

, Kerrostalo

67.5 m2

Kerros 6/6

Vapautuu 27.08.2026

Viistokuja 6 A 3

3h+kt

, Kerrostalo

69.5 m2

Kerros 1/6

Vapautuu 27.08.2026

Viistokuja 6 A 14

3h+kt

, Kerrostalo

69.5 m2

Kerros 3/6

Vapautuu 27.08.2026

Viistokuja 6 A 26

3h+kt

, Kerrostalo

69.5 m2

Kerros 5/6

Vapautuu 27.08.2026

Viistokuja 6 A 8

3h+kt

, Kerrostalo

69.5 m2

Kerros 2/6

Vapautuu 27.08.2026

Viistokuja 6 A 20

3h+kt

, Kerrostalo

69.5 m2

Kerros 4/6

Vapautuu 27.08.2026

Viistokuja 6 A 32

3h+kt

, Kerrostalo

69.5 m2

Kerros 6/6

Vapautuu 27.08.2026
Hae asuntotyyppiä

Viistokuja 6 A 30

4h+k

, Kerrostalo

95 m2

Kerros 5/6

Vapautuu 27.08.2026

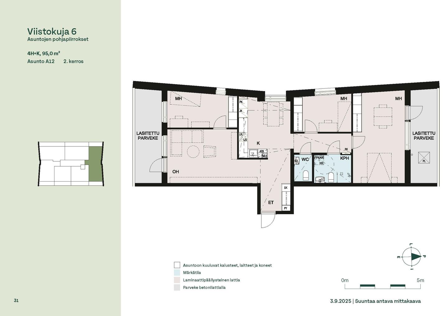
Viistokuja 6 A 12

4h+k

, Kerrostalo

95 m2

Kerros 2/6

Vapautuu 27.08.2026

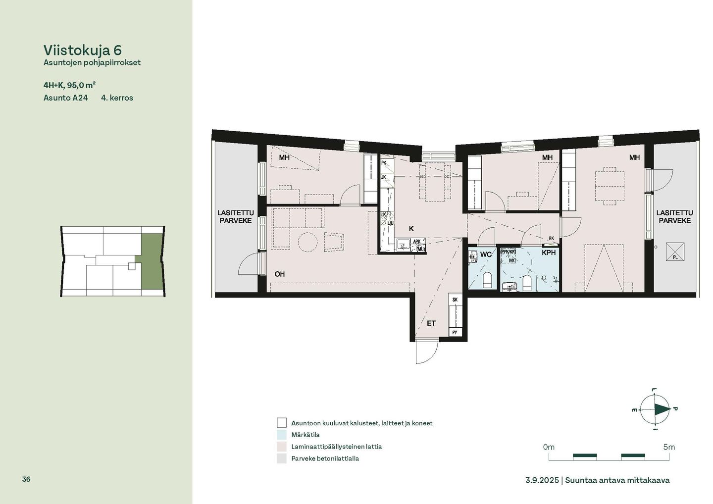
Viistokuja 6 A 24

4h+k

, Kerrostalo

95 m2

Kerros 4/6

Vapautuu 27.08.2026

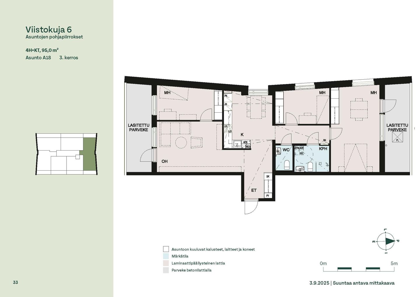
Viistokuja 6 A 18

4h+kt

, Kerrostalo

95 m2

Kerros 3/6

Vapautuu 27.08.2026

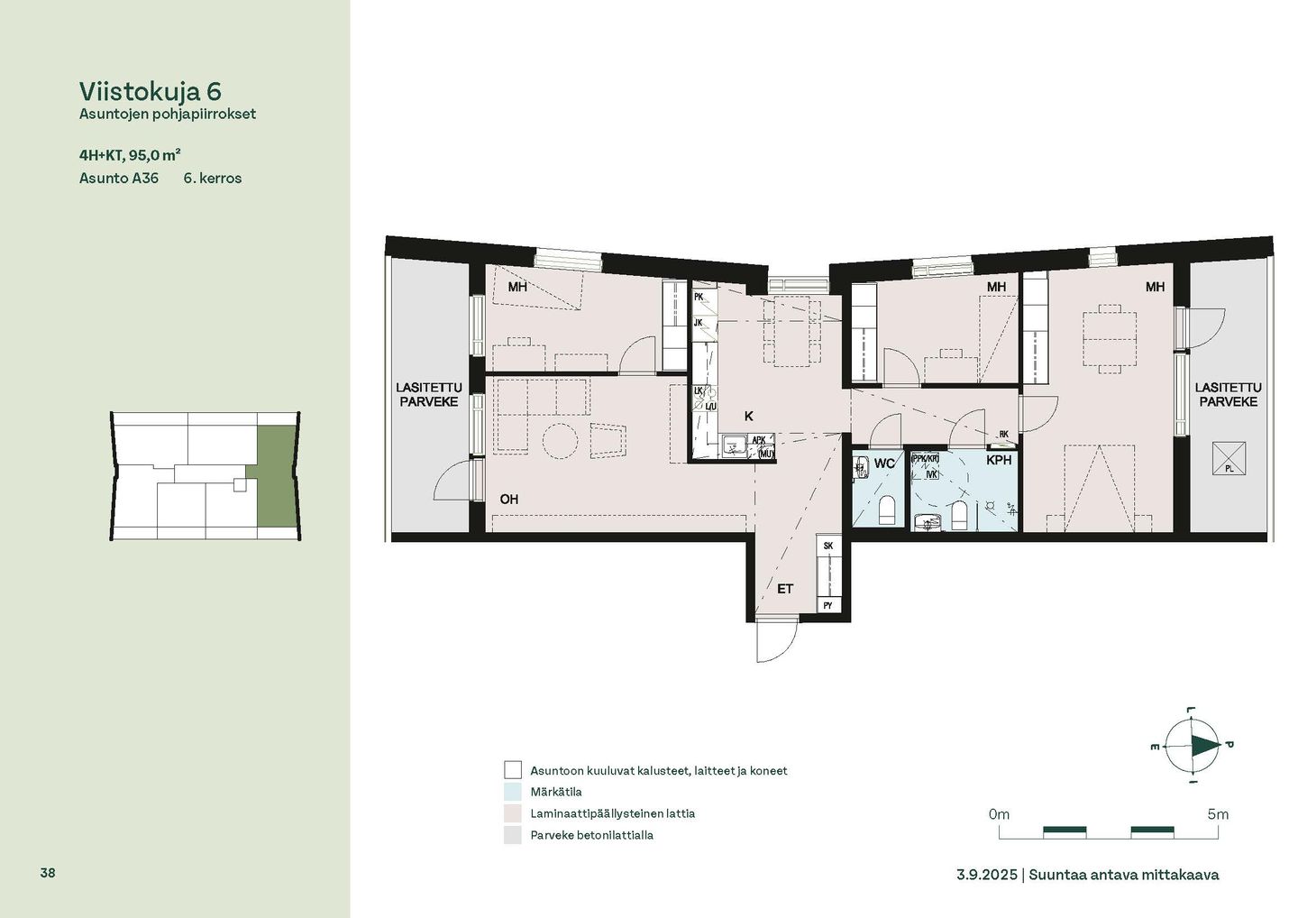
Viistokuja 6 A 36

4h+kt

, Kerrostalo

95 m2

Kerros 6/6

Vapautuu 27.08.2026