Kohteen esittely
Henttaan Puistokatu 18 on 2021 valmistunut korkotuettu vuokrakohde. Keskeisellä paikalla Suurpellossa sijaitseva kerrostalo, josta löytyy 61 viihtyisää vuokrakotia.
Henttaan puistokadulla nautit vuokra-asumisen helppoudesta luonnon ja toimivien palvelujen äärellä.
Hyvin suunniteltujen ja varusteltujen kotien koot vaihtelevat tilavasta yksiöstä viiden huoneen perheasuntoon. Kaikissa huoneistoissa on joko lasitettu parveke tai oma terassipiha, ja osa on varustettu omalla saunalla.
Miksi Asuntosäätiö?
Me uskomme, että onnellinen koti ja laadukas asuminen kuuluvat kaikille. Emme tavoittele voittoa, vaan käytämme kaikki vastikkeista ja vuokrista saadut tulot toimintamme kehittämiseen. Jo yli 33 000 suomalaista on valinnut Asuntosäätiön tarjoaman kodin. Tiesithän, että myös lemmikit ovat tervetulleita kaikkiin koteihimme!
Rakennuksen tiedot
- Asumismuoto Vuokrakoti
- Hissit 3
- Talosauna 1
- Pyykkitupa Kyllä
- Asuntoja 61
- Asuinrakennuksia 1
- Keskimääräinen vuokra 475,53 - 1809,56€
- Valmistumisvuosi 2021
- Porrashuoneet 3
- Energialuokka B2018
- Lämmitysmuoto Kaukolämpö
- Autopaikat Ei
- Kerhohuone 1
- Laajakaista Sisältyy vuokraan
- Antennijärjestelmä Kaapeli
- KaapeliTV DNA
- Runkomateriaali Betonielementti
- Lemmikit Sallittu
Huoneistot ja pohjakuvat: Henttaan puistokatu 18 A-C, Kerrostalo
Henttaan puistokatu 18 C 60
1h+kt
, Kerrostalo
22 m2
5/5
Henttaan puistokatu 18 C 60
1h+kt
, Kerrostalo
22 m2
Kerros 5/5
Henttaan puistokatu 18 C 43
1h+kt
, Kerrostalo
25 m2
1/5
Henttaan puistokatu 18 C 43
1h+kt
, Kerrostalo
25 m2
Kerros 1/5
Henttaan puistokatu 18 C 48
1h+kt
, Kerrostalo
28.5 m2
2/5
Henttaan puistokatu 18 C 48
1h+kt
, Kerrostalo
28.5 m2
Kerros 2/5
Henttaan puistokatu 18 A 10
1h+kt
, Kerrostalo
30.5 m2
3/5
Henttaan puistokatu 18 A 10
1h+kt
, Kerrostalo
30.5 m2
Kerros 3/5
Henttaan puistokatu 18 A 5
1h+kt
, Kerrostalo
30.5 m2
2/5
Henttaan puistokatu 18 A 5
1h+kt
, Kerrostalo
30.5 m2
Kerros 2/5
Henttaan puistokatu 18 A 15
1h+kt
, Kerrostalo
30.5 m2
4/5
Henttaan puistokatu 18 A 15
1h+kt
, Kerrostalo
30.5 m2
Kerros 4/5
Henttaan puistokatu 18 C 46
1h+kt
, Kerrostalo
32 m2
2/5
Henttaan puistokatu 18 C 46
1h+kt
, Kerrostalo
32 m2
Kerros 2/5
Henttaan puistokatu 18 C 51
1h+kt
, Kerrostalo
32 m2
3/5
Henttaan puistokatu 18 C 51
1h+kt
, Kerrostalo
32 m2
Kerros 3/5
Henttaan puistokatu 18 C 56
1h+kt
, Kerrostalo
32 m2
4/5
Henttaan puistokatu 18 C 56
1h+kt
, Kerrostalo
32 m2
Kerros 4/5
Henttaan puistokatu 18 C 42
1h+kt
, Kerrostalo
33 m2
1/5
Henttaan puistokatu 18 C 42
1h+kt
, Kerrostalo
33 m2
Kerros 1/5
Henttaan puistokatu 18 C 47
1h+kt
, Kerrostalo
33 m2
2/5
Henttaan puistokatu 18 C 47
1h+kt
, Kerrostalo
33 m2
Kerros 2/5
Henttaan puistokatu 18 B 28
1h+kt
, Kerrostalo
35 m2
3/5
Henttaan puistokatu 18 B 28
1h+kt
, Kerrostalo
35 m2
Kerros 3/5
Henttaan puistokatu 18 B 33
1h+kt
, Kerrostalo
35 m2
4/5
Henttaan puistokatu 18 B 33
1h+kt
, Kerrostalo
35 m2
Kerros 4/5
Henttaan puistokatu 18 B 21
1h+kt
, Kerrostalo
35 m2
1/5
Henttaan puistokatu 18 B 21
1h+kt
, Kerrostalo
35 m2
Kerros 1/5
Henttaan puistokatu 18 B 23
1h+kt
, Kerrostalo
35 m2
2/5
Henttaan puistokatu 18 B 23
1h+kt
, Kerrostalo
35 m2
Kerros 2/5
Henttaan puistokatu 18 C 49
2h+k
, Kerrostalo
43.5 m2
3/5
Henttaan puistokatu 18 C 49
2h+k
, Kerrostalo
43.5 m2
Kerros 3/5
Henttaan puistokatu 18 C 53
2h+k
, Kerrostalo
43.5 m2
3/5
Henttaan puistokatu 18 C 53
2h+k
, Kerrostalo
43.5 m2
Kerros 3/5
Henttaan puistokatu 18 C 58
2h+k
, Kerrostalo
43.5 m2
4/5
Henttaan puistokatu 18 C 58
2h+k
, Kerrostalo
43.5 m2
Kerros 4/5
Henttaan puistokatu 18 C 44
2h+k
, Kerrostalo
43.5 m2
2/5
Henttaan puistokatu 18 C 44
2h+k
, Kerrostalo
43.5 m2
Kerros 2/5
Henttaan puistokatu 18 C 40
2h+k
, Kerrostalo
43.5 m2
1/5
Henttaan puistokatu 18 C 40
2h+k
, Kerrostalo
43.5 m2
Kerros 1/5
Henttaan puistokatu 18 C 54
2h+k
, Kerrostalo
43.5 m2
4/5
Henttaan puistokatu 18 C 54
2h+k
, Kerrostalo
43.5 m2
Kerros 4/5
Henttaan puistokatu 18 A 6
2h+kt
, Kerrostalo
42.5 m2
2/5
Henttaan puistokatu 18 A 6
2h+kt
, Kerrostalo
42.5 m2
Kerros 2/5
Henttaan puistokatu 18 A 11
2h+kt
, Kerrostalo
42.5 m2
3/5
Henttaan puistokatu 18 A 11
2h+kt
, Kerrostalo
42.5 m2
Kerros 3/5
Henttaan puistokatu 18 A 16
2h+kt
, Kerrostalo
42.5 m2
4/5
Henttaan puistokatu 18 A 16
2h+kt
, Kerrostalo
42.5 m2
Kerros 4/5
Henttaan puistokatu 18 B 26
2h+kt
, Kerrostalo
44 m2
2/5
Henttaan puistokatu 18 B 26
2h+kt
, Kerrostalo
44 m2
Kerros 2/5
Henttaan puistokatu 18 B 31
2h+kt
, Kerrostalo
44 m2
3/5
Henttaan puistokatu 18 B 31
2h+kt
, Kerrostalo
44 m2
Kerros 3/5
Henttaan puistokatu 18 B 36
2h+kt
, Kerrostalo
44 m2
4/5
Henttaan puistokatu 18 B 36
2h+kt
, Kerrostalo
44 m2
Kerros 4/5
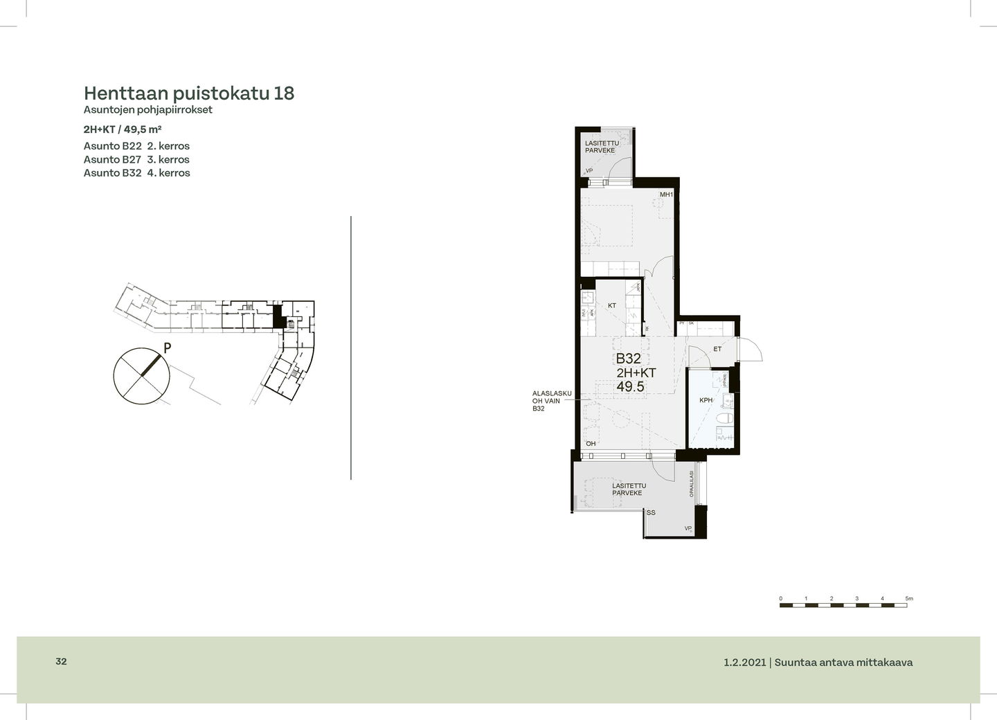
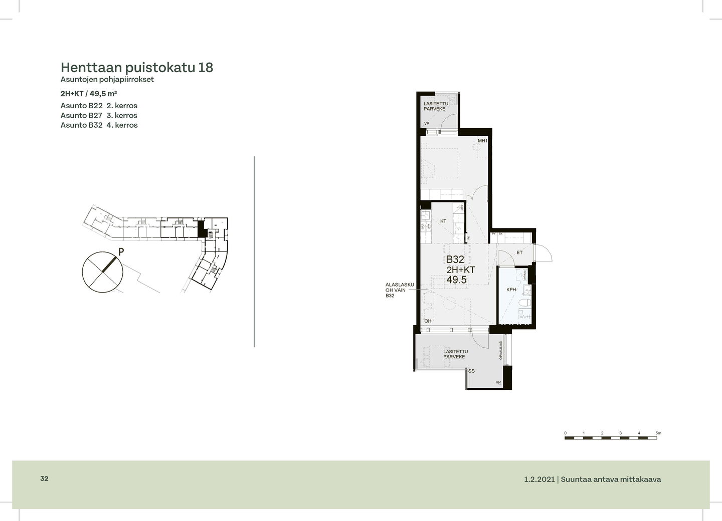
Henttaan puistokatu 18 B 22
2h+kt
, Kerrostalo
49.5 m2
2/5
Henttaan puistokatu 18 B 22
2h+kt
, Kerrostalo
49.5 m2
Kerros 2/5
Henttaan puistokatu 18 B 32
2h+kt
, Kerrostalo
49.5 m2
4/5
Henttaan puistokatu 18 B 32
2h+kt
, Kerrostalo
49.5 m2
Kerros 4/5
Henttaan puistokatu 18 B 27
2h+kt
, Kerrostalo
49.5 m2
3/5
Henttaan puistokatu 18 B 27
2h+kt
, Kerrostalo
49.5 m2
Kerros 3/5
Henttaan puistokatu 18 B 20
2h+kt
, Kerrostalo
49.5 m2
1/5
Henttaan puistokatu 18 B 20
2h+kt
, Kerrostalo
49.5 m2
Kerros 1/5
Henttaan puistokatu 18 A 2
2h+kt+tt
, Kerrostalo
77.5 m2
1/5
Henttaan puistokatu 18 A 2
2h+kt+tt
, Kerrostalo
77.5 m2
Kerros 1/5
Henttaan puistokatu 18 B 38
3h+k+s
, Kerrostalo
77.5 m2
5/5
Henttaan puistokatu 18 B 38
3h+k+s
, Kerrostalo
77.5 m2
Kerros 5/5
Henttaan puistokatu 18 A 9
3h+kt
, Kerrostalo
58.5 m2
3/5
Henttaan puistokatu 18 A 9
3h+kt
, Kerrostalo
58.5 m2
Kerros 3/5
Henttaan puistokatu 18 A 4
3h+kt
, Kerrostalo
58.5 m2
2/5
Henttaan puistokatu 18 A 4
3h+kt
, Kerrostalo
58.5 m2
Kerros 2/5
Henttaan puistokatu 18 C 41
3h+kt
, Kerrostalo
58.5 m2
1/5
Henttaan puistokatu 18 C 41
3h+kt
, Kerrostalo
58.5 m2
Kerros 1/5
Henttaan puistokatu 18 C 50
3h+kt
, Kerrostalo
58.5 m2
3/5
Henttaan puistokatu 18 C 50
3h+kt
, Kerrostalo
58.5 m2
Kerros 3/5
Henttaan puistokatu 18 C 55
3h+kt
, Kerrostalo
58.5 m2
4/5
Henttaan puistokatu 18 C 55
3h+kt
, Kerrostalo
58.5 m2
Kerros 4/5
Henttaan puistokatu 18 C 45
3h+kt
, Kerrostalo
58.5 m2
2/5
Henttaan puistokatu 18 C 45
3h+kt
, Kerrostalo
58.5 m2
Kerros 2/5
Henttaan puistokatu 18 A 14
3h+kt
, Kerrostalo
58.5 m2
4/5
Henttaan puistokatu 18 A 14
3h+kt
, Kerrostalo
58.5 m2
Kerros 4/5
Henttaan puistokatu 18 C 57
3h+kt
, Kerrostalo
60.5 m2
4/5
Henttaan puistokatu 18 C 57
3h+kt
, Kerrostalo
60.5 m2
Kerros 4/5
Henttaan puistokatu 18 C 52
3h+kt
, Kerrostalo
60.5 m2
3/5
Henttaan puistokatu 18 C 52
3h+kt
, Kerrostalo
60.5 m2
Kerros 3/5
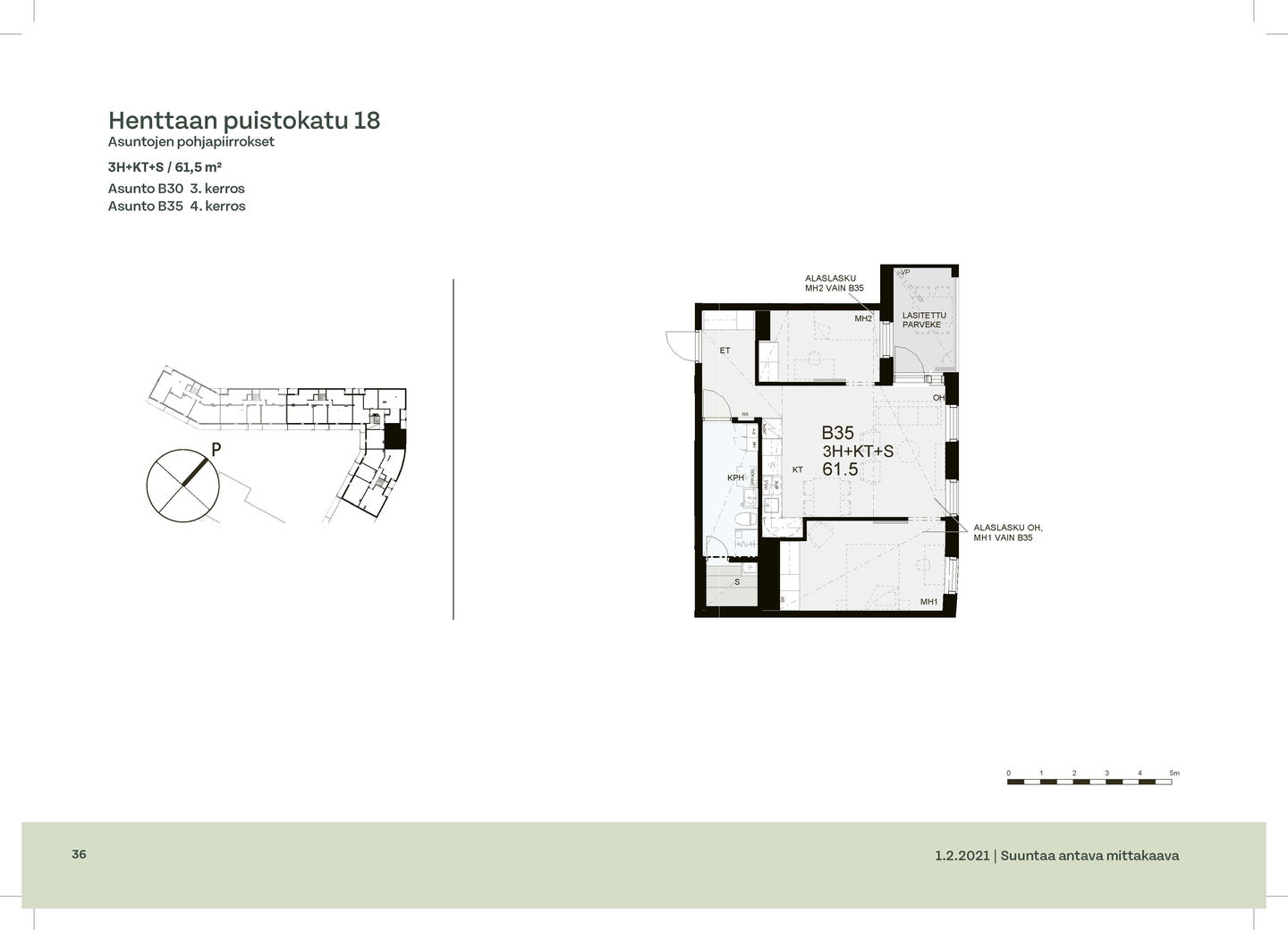
Henttaan puistokatu 18 B 30
3h+kt+s
, Kerrostalo
61.5 m2
3/5
Henttaan puistokatu 18 B 30
3h+kt+s
, Kerrostalo
61.5 m2
Kerros 3/5
Henttaan puistokatu 18 B 35
3h+kt+s
, Kerrostalo
61.5 m2
4/5
Henttaan puistokatu 18 B 35
3h+kt+s
, Kerrostalo
61.5 m2
Kerros 4/5
Henttaan puistokatu 18 A 13
3h+kt+s
, Kerrostalo
66 m2
4/5
Henttaan puistokatu 18 A 13
3h+kt+s
, Kerrostalo
66 m2
Kerros 4/5
Henttaan puistokatu 18 A 3
3h+kt+s
, Kerrostalo
66 m2
2/5
Henttaan puistokatu 18 A 3
3h+kt+s
, Kerrostalo
66 m2
Kerros 2/5
Henttaan puistokatu 18 A 8
3h+kt+s
, Kerrostalo
66 m2
3/5
Henttaan puistokatu 18 A 8
3h+kt+s
, Kerrostalo
66 m2
Kerros 3/5
Henttaan puistokatu 18 A 17
3h+kt+s
, Kerrostalo
73 m2
4/5
Henttaan puistokatu 18 A 17
3h+kt+s
, Kerrostalo
73 m2
Kerros 4/5
Henttaan puistokatu 18 A 12
3h+kt+s
, Kerrostalo
73 m2
3/5
Henttaan puistokatu 18 A 12
3h+kt+s
, Kerrostalo
73 m2
Kerros 3/5
Henttaan puistokatu 18 B 25
3h+kt+s+tt
, Kerrostalo
85 m2
2/5
Henttaan puistokatu 18 B 25
3h+kt+s+tt
, Kerrostalo
85 m2
Kerros 2/5
Henttaan puistokatu 18 A 7
3h+kt+s+tt
, Kerrostalo
107 m2
2/5
Henttaan puistokatu 18 A 7
3h+kt+s+tt
, Kerrostalo
107 m2
Kerros 2/5
Henttaan puistokatu 18 A 1
3h+kt+tt
, Kerrostalo
92 m2
1/5
Henttaan puistokatu 18 A 1
3h+kt+tt
, Kerrostalo
92 m2
Kerros 1/5
Henttaan puistokatu 18 B 37
4h+k+s
, Kerrostalo
89 m2
5/5
Henttaan puistokatu 18 B 37
4h+k+s
, Kerrostalo
89 m2
Kerros 5/5
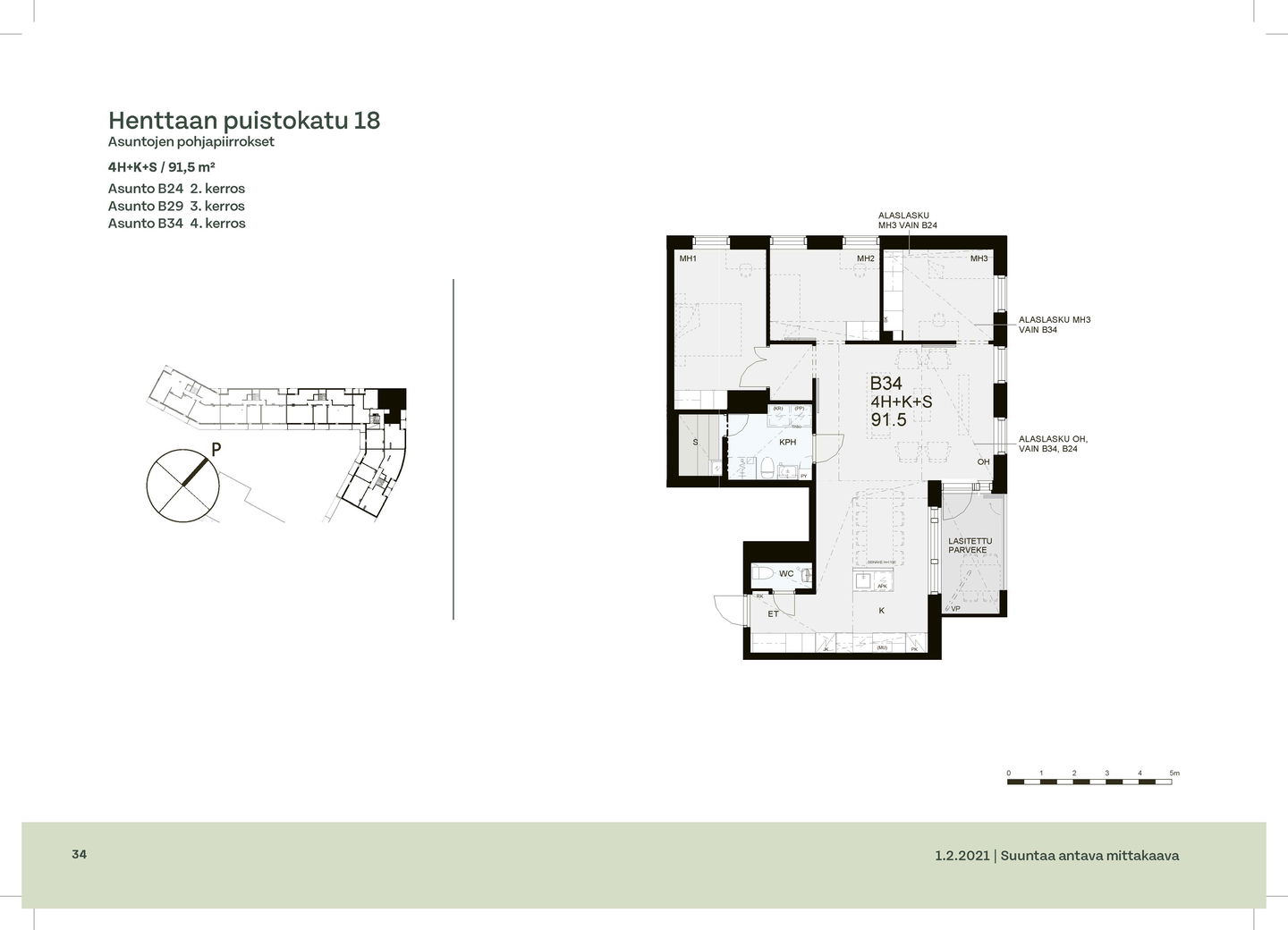
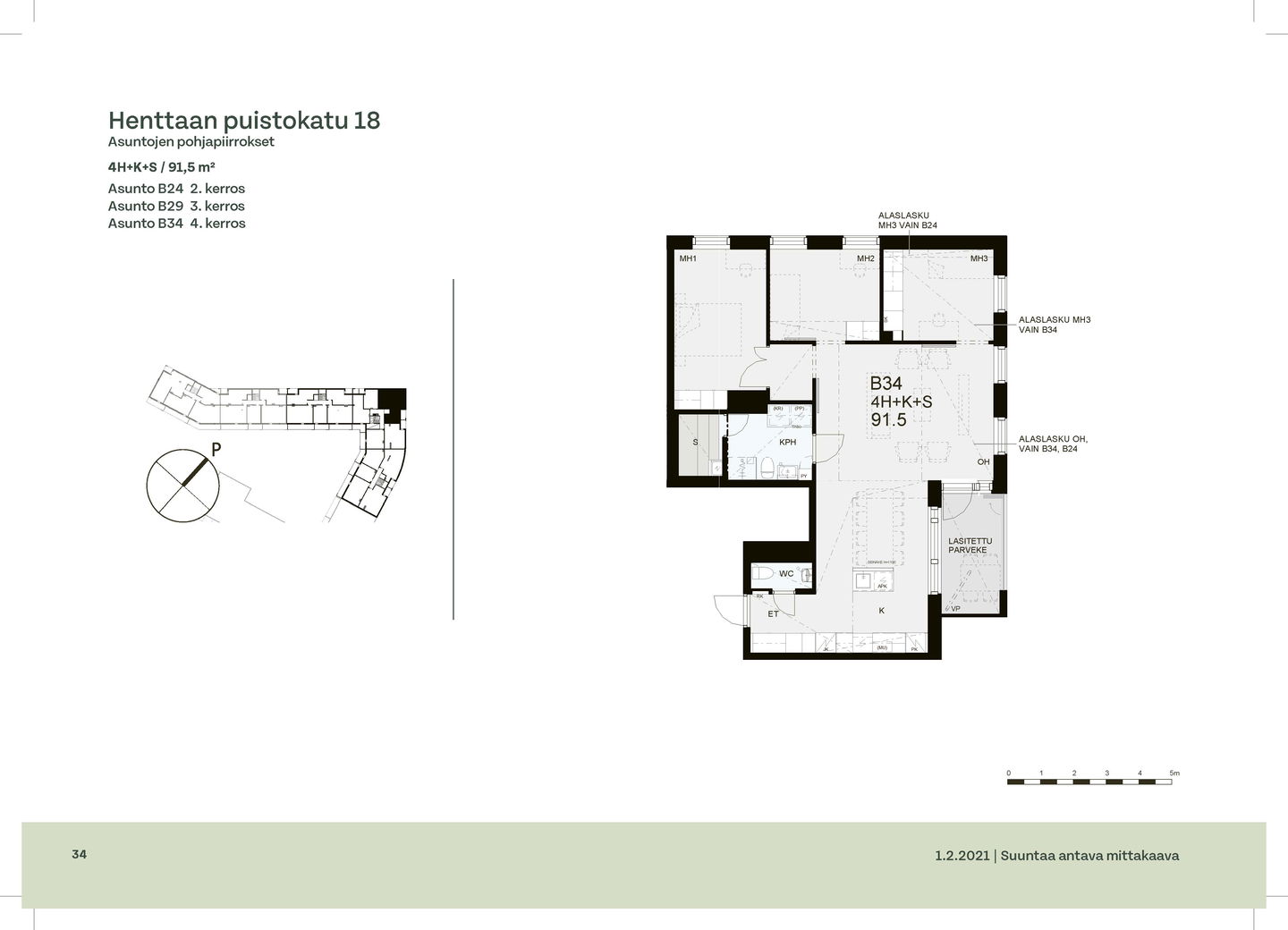
Henttaan puistokatu 18 B 29
4h+k+s
, Kerrostalo
91.5 m2
3/5
Henttaan puistokatu 18 B 29
4h+k+s
, Kerrostalo
91.5 m2
Kerros 3/5
Henttaan puistokatu 18 B 24
4h+k+s
, Kerrostalo
91.5 m2
2/5
Henttaan puistokatu 18 B 24
4h+k+s
, Kerrostalo
91.5 m2
Kerros 2/5
Henttaan puistokatu 18 B 34
4h+k+s
, Kerrostalo
91.5 m2
4/5
Henttaan puistokatu 18 B 34
4h+k+s
, Kerrostalo
91.5 m2
Kerros 4/5
Henttaan puistokatu 18 B 39
4h+k+s
, Kerrostalo
93.5 m2
5/5
Henttaan puistokatu 18 B 39
4h+k+s
, Kerrostalo
93.5 m2
Kerros 5/5
Henttaan puistokatu 18 A 19
4h+k+s
, Kerrostalo
97.5 m2
5/5
Henttaan puistokatu 18 A 19
4h+k+s
, Kerrostalo
97.5 m2
Kerros 5/5
Henttaan puistokatu 18 A 18
4h+k+s
, Kerrostalo
102.5 m2
5/5
Henttaan puistokatu 18 A 18
4h+k+s
, Kerrostalo
102.5 m2
Kerros 5/5
Henttaan puistokatu 18 C 59
5h+k+s
, Kerrostalo
94.5 m2
5/5
Henttaan puistokatu 18 C 59
5h+k+s
, Kerrostalo
94.5 m2
Kerros 5/5
Henttaan puistokatu 18 C 61
5h+k+s
, Kerrostalo
100 m2
5/5
Henttaan puistokatu 18 C 61
5h+k+s
, Kerrostalo
100 m2
Kerros 5/5


