Kohteen esittely
2020 Tapiolan keskustaan valmistunut puukerrostalokohde. Talo sijaitsee erinomaisella paikalla palveluiden äärellä. Talo on rakennettu suomalaisesta puusta, säältä suojassa teltan sisällä. Puukerrostalon paloturvallisuuden takaa huoneistokohtainen sammutusjärjestelmä. Myös lemmikit ovat tervetulleita!
Talo on savuton sekä kaavamääräysten mukaisesti autopaikaton. Liikkuminen onnistuu kätevästi julkisilla metro- ja bussiaseman läheisyyden ansiosta.
Tämän kohteen asukasvalinnoissa noudatetaan tulo- ja varallisuusrajoja.
Miksi Asuntosäätiö?
Me uskomme, että onnellinen koti ja laadukas asuminen kuuluvat kaikille. Emme tavoittele voittoa, vaan käytämme kaikki vastikkeista ja vuokrista saadut tulot toimintamme kehittämiseen. Jo yli 33 000 suomalaista on valinnut Asuntosäätiön tarjoaman kodin. Tiesithän, että myös lemmikit ovat tervetulleita kaikkiin koteihimme!
Rakennuksen tiedot
- Asumismuoto Vuokrakoti
- Hissit 1
- Talosauna 1
- Pyykkitupa Kyllä
- Asuntoja 42
- Asuinrakennuksia 1
- Keskimääräinen vuokra 687,03 - 1685,00€
- Valmistumisvuosi 2020
- Porrashuoneet 1
- Energialuokka C
- Lämmitysmuoto Kaukolämpö
- Autopaikat Ei
- Kerhohuone 1
- Laajakaista Sisältyy vuokraan
- Antennijärjestelmä Kaapeli
- KaapeliTV DNA
- Runkomateriaali Betoni / Puu
- Lemmikit Sallittu
Huoneistot ja pohjakuvat: Tuuliniitty 3, Kerrostalo
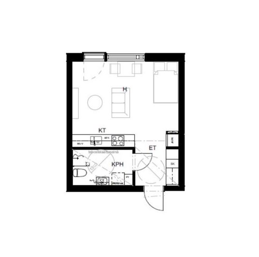
Tuuliniitty 3 A 36
1h+kt+ransk.parv
, Kerrostalo
30 m2
5/5
Tuuliniitty 3 A 36
1h+kt+ransk.parv
, Kerrostalo
30 m2
Kerros 5/5
Tuuliniitty 3 A 26
1h+kt+ransk.parv
, Kerrostalo
30 m2
4/5
Tuuliniitty 3 A 26
1h+kt+ransk.parv
, Kerrostalo
30 m2
Kerros 4/5
Tuuliniitty 3 A 16
1h+kt+ransk.parv
, Kerrostalo
30 m2
3/5
Tuuliniitty 3 A 16
1h+kt+ransk.parv
, Kerrostalo
30 m2
Kerros 3/5
Tuuliniitty 3 A 6
1h+kt+ransk.parv
, Kerrostalo
30 m2
2/5
Tuuliniitty 3 A 6
1h+kt+ransk.parv
, Kerrostalo
30 m2
Kerros 2/5
Tuuliniitty 3 A 25
1h+kt+ransk.parv
, Kerrostalo
30.5 m2
4/5
Tuuliniitty 3 A 25
1h+kt+ransk.parv
, Kerrostalo
30.5 m2
Kerros 4/5
Tuuliniitty 3 A 5
1h+kt+ransk.parv
, Kerrostalo
30.5 m2
2/5
Tuuliniitty 3 A 5
1h+kt+ransk.parv
, Kerrostalo
30.5 m2
Kerros 2/5
Tuuliniitty 3 A 35
1h+kt+ransk.parv
, Kerrostalo
30.5 m2
5/5
Tuuliniitty 3 A 35
1h+kt+ransk.parv
, Kerrostalo
30.5 m2
Kerros 5/5
Tuuliniitty 3 A 15
1h+kt+ransk.parv
, Kerrostalo
30.5 m2
3/5
Tuuliniitty 3 A 15
1h+kt+ransk.parv
, Kerrostalo
30.5 m2
Kerros 3/5
Tuuliniitty 3 A 4
1h+kt+ransk.parv
, Kerrostalo
30.5 m2
2/5
Tuuliniitty 3 A 4
1h+kt+ransk.parv
, Kerrostalo
30.5 m2
Kerros 2/5
Tuuliniitty 3 A 24
1h+kt+ransk.parv
, Kerrostalo
30.5 m2
4/5
Tuuliniitty 3 A 24
1h+kt+ransk.parv
, Kerrostalo
30.5 m2
Kerros 4/5
Tuuliniitty 3 A 14
1h+kt+ransk.parv
, Kerrostalo
30.5 m2
3/5
Tuuliniitty 3 A 14
1h+kt+ransk.parv
, Kerrostalo
30.5 m2
Kerros 3/5
Tuuliniitty 3 A 34
1h+kt+ransk.parv
, Kerrostalo
30.5 m2
5/5
Tuuliniitty 3 A 34
1h+kt+ransk.parv
, Kerrostalo
30.5 m2
Kerros 5/5
Tuuliniitty 3 A 1
2h+kt+avoterassi
, Kerrostalo
42 m2
1/5
Tuuliniitty 3 A 1
2h+kt+avoterassi
, Kerrostalo
42 m2
Kerros 1/5
Tuuliniitty 3 A 20
2h+kt+parv
, Kerrostalo
42 m2
3/5
Tuuliniitty 3 A 20
2h+kt+parv
, Kerrostalo
42 m2
Kerros 3/5
Tuuliniitty 3 A 30
2h+kt+parv
, Kerrostalo
42 m2
4/5
Tuuliniitty 3 A 30
2h+kt+parv
, Kerrostalo
42 m2
Kerros 4/5
Tuuliniitty 3 A 28
2h+kt+parv
, Kerrostalo
42 m2
4/5
Tuuliniitty 3 A 28
2h+kt+parv
, Kerrostalo
42 m2
Kerros 4/5
Tuuliniitty 3 A 38
2h+kt+parv
, Kerrostalo
42 m2
5/5
Tuuliniitty 3 A 38
2h+kt+parv
, Kerrostalo
42 m2
Kerros 5/5
Tuuliniitty 3 A 8
2h+kt+parv
, Kerrostalo
42 m2
2/5
Tuuliniitty 3 A 8
2h+kt+parv
, Kerrostalo
42 m2
Kerros 2/5
Tuuliniitty 3 A 40
2h+kt+parv
, Kerrostalo
42 m2
5/5
Tuuliniitty 3 A 40
2h+kt+parv
, Kerrostalo
42 m2
Kerros 5/5
Tuuliniitty 3 A 10
2h+kt+parv
, Kerrostalo
42 m2
2/5
Tuuliniitty 3 A 10
2h+kt+parv
, Kerrostalo
42 m2
Kerros 2/5
Tuuliniitty 3 A 18
2h+kt+parv
, Kerrostalo
42 m2
3/5
Tuuliniitty 3 A 18
2h+kt+parv
, Kerrostalo
42 m2
Kerros 3/5
Tuuliniitty 3 A 29
2h+kt+parv
, Kerrostalo
44 m2
4/5
Tuuliniitty 3 A 29
2h+kt+parv
, Kerrostalo
44 m2
Kerros 4/5
Tuuliniitty 3 A 9
2h+kt+parv
, Kerrostalo
44 m2
2/5
Tuuliniitty 3 A 9
2h+kt+parv
, Kerrostalo
44 m2
Kerros 2/5
Tuuliniitty 3 A 39
2h+kt+parv
, Kerrostalo
44 m2
5/5
Tuuliniitty 3 A 39
2h+kt+parv
, Kerrostalo
44 m2
Kerros 5/5
Tuuliniitty 3 A 19
2h+kt+parv
, Kerrostalo
44 m2
3/5
Tuuliniitty 3 A 19
2h+kt+parv
, Kerrostalo
44 m2
Kerros 3/5
Tuuliniitty 3 A 23
2h+kt+ransk.parv
, Kerrostalo
34 m2
4/5
Tuuliniitty 3 A 23
2h+kt+ransk.parv
, Kerrostalo
34 m2
Kerros 4/5
Tuuliniitty 3 A 33
2h+kt+ransk.parv
, Kerrostalo
34 m2
5/5
Tuuliniitty 3 A 33
2h+kt+ransk.parv
, Kerrostalo
34 m2
Kerros 5/5
Tuuliniitty 3 A 3
2h+kt+ransk.parv
, Kerrostalo
34 m2
2/5
Tuuliniitty 3 A 3
2h+kt+ransk.parv
, Kerrostalo
34 m2
Kerros 2/5
Tuuliniitty 3 A 13
2h+kt+ransk.parv
, Kerrostalo
34 m2
3/5
Tuuliniitty 3 A 13
2h+kt+ransk.parv
, Kerrostalo
34 m2
Kerros 3/5
Tuuliniitty 3 A 27
3h+kt+parv
, Kerrostalo
75 m2
4/5
Tuuliniitty 3 A 27
3h+kt+parv
, Kerrostalo
75 m2
Kerros 4/5
Tuuliniitty 3 A 37
3h+kt+parv
, Kerrostalo
75 m2
5/5
Tuuliniitty 3 A 37
3h+kt+parv
, Kerrostalo
75 m2
Kerros 5/5
Tuuliniitty 3 A 7
3h+kt+parv
, Kerrostalo
75 m2
2/5
Tuuliniitty 3 A 7
3h+kt+parv
, Kerrostalo
75 m2
Kerros 2/5
Tuuliniitty 3 A 17
3h+kt+parv
, Kerrostalo
75 m2
3/5
Tuuliniitty 3 A 17
3h+kt+parv
, Kerrostalo
75 m2
Kerros 3/5
Tuuliniitty 3 A 2
4h+kt+avoterassi
, Kerrostalo
83.5 m2
1/5
Tuuliniitty 3 A 2
4h+kt+avoterassi
, Kerrostalo
83.5 m2
Kerros 1/5
Tuuliniitty 3 A 41
4h+kt+parv
, Kerrostalo
78.5 m2
5/5
Tuuliniitty 3 A 41
4h+kt+parv
, Kerrostalo
78.5 m2
Kerros 5/5
Tuuliniitty 3 A 11
4h+kt+parv
, Kerrostalo
78.5 m2
2/5
Tuuliniitty 3 A 11
4h+kt+parv
, Kerrostalo
78.5 m2
Kerros 2/5
Tuuliniitty 3 A 31
4h+kt+parv
, Kerrostalo
78.5 m2
4/5
Tuuliniitty 3 A 31
4h+kt+parv
, Kerrostalo
78.5 m2
Kerros 4/5
Tuuliniitty 3 A 21
4h+kt+parv
, Kerrostalo
78.5 m2
3/5
Tuuliniitty 3 A 21
4h+kt+parv
, Kerrostalo
78.5 m2
Kerros 3/5
Tuuliniitty 3 A 32
4h+kt+parv
, Kerrostalo
85.5 m2
4/5
Tuuliniitty 3 A 32
4h+kt+parv
, Kerrostalo
85.5 m2
Kerros 4/5
Tuuliniitty 3 A 22
4h+kt+parv
, Kerrostalo
85.5 m2
3/5
Tuuliniitty 3 A 22
4h+kt+parv
, Kerrostalo
85.5 m2
Kerros 3/5
Tuuliniitty 3 A 42
4h+kt+parv
, Kerrostalo
85.5 m2
5/5
Tuuliniitty 3 A 42
4h+kt+parv
, Kerrostalo
85.5 m2
Kerros 5/5
Tuuliniitty 3 A 12
4h+kt+parv
, Kerrostalo
85.5 m2
2/5
Tuuliniitty 3 A 12
4h+kt+parv
, Kerrostalo
85.5 m2
Kerros 2/5