Kohteen esittely
Valoisia vuokrakoteja värikkäässä kerrostalossa Leinelässä. Asuintilojen lattiat laminaattia, kylpyhuone laatoitettu. Keittiössä on mm. keraaminen liesi. Parvekkeet ovat lasitettuja.
Kohde on savuton, tupakointi on kielletty sekä asunnoissa että parvekkeilla.
Vuokraan sisältyy 25M taloyhtiölaajakaistan.
Miksi Asuntosäätiö?
Me uskomme, että onnellinen koti ja laadukas asuminen kuuluvat kaikille. Emme tavoittele voittoa, vaan käytämme kaikki vastikkeista ja vuokrista saadut tulot toimintamme kehittämiseen. Jo yli 33 000 suomalaista on valinnut Asuntosäätiön tarjoaman kodin. Tiesithän, että myös lemmikit ovat tervetulleita kaikkiin koteihimme!
Rakennuksen tiedot
- Asumismuoto Vuokrakoti
- Hissit 2
- Talosauna 1
- Asuntoja 38
- Asuinrakennuksia 1
- Keskimääräinen vuokra 634,65 - 1393,96€
- Valmistumisvuosi 2013
- Porrashuoneet 2
- Energialuokka B2007
- Lämmitysmuoto Kaukolämpö
- Autopaikat Ei
- Laajakaista Sisältyy vuokraan
- Antennijärjestelmä Kaapeli
- KaapeliTV DNA
- Runkomateriaali Betoni
- Lemmikit Sallittu
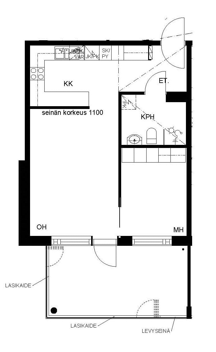
Huoneistot ja pohjakuvat: Leinelänkaari 4, Kerrostalo
Leinelänkaari 4 A 2
1h+kt+alk+parv
, Kerrostalo
36.5 m2
1/4
Leinelänkaari 4 A 2
1h+kt+alk+parv
, Kerrostalo
36.5 m2
Kerros 1/4
Leinelänkaari 4 B 36
1h+kt+alk+parv
, Kerrostalo
39 m2
4/4
Leinelänkaari 4 B 36
1h+kt+alk+parv
, Kerrostalo
39 m2
Kerros 4/4
Leinelänkaari 4 B 31
1h+kt+alk+parv
, Kerrostalo
39 m2
3/4
Leinelänkaari 4 B 31
1h+kt+alk+parv
, Kerrostalo
39 m2
Kerros 3/4
Leinelänkaari 4 A 7
1h+kt+alk+parv
, Kerrostalo
39 m2
2/4
Leinelänkaari 4 A 7
1h+kt+alk+parv
, Kerrostalo
39 m2
Kerros 2/4
Leinelänkaari 4 A 17
1h+kt+alk+parv
, Kerrostalo
39 m2
4/4
Leinelänkaari 4 A 17
1h+kt+alk+parv
, Kerrostalo
39 m2
Kerros 4/4
Leinelänkaari 4 B 26
1h+kt+alk+parv
, Kerrostalo
39 m2
2/4
Leinelänkaari 4 B 26
1h+kt+alk+parv
, Kerrostalo
39 m2
Kerros 2/4
Leinelänkaari 4 A 12
1h+kt+alk+parv
, Kerrostalo
39 m2
3/4
Leinelänkaari 4 A 12
1h+kt+alk+parv
, Kerrostalo
39 m2
Kerros 3/4
Leinelänkaari 4 B 21
1h+kt+alk+parv
, Kerrostalo
39 m2
1/4
Leinelänkaari 4 B 21
1h+kt+alk+parv
, Kerrostalo
39 m2
Kerros 1/4
Leinelänkaari 4 B 30
2h+k+parv
, Kerrostalo
54.5 m2
Kerros 3/4
Leinelänkaari 4 A 19
2h+k+parv
, Kerrostalo
54.5 m2
4/4
Leinelänkaari 4 A 19
2h+k+parv
, Kerrostalo
54.5 m2
Kerros 4/4
Leinelänkaari 4 B 25
2h+k+parv
, Kerrostalo
54.5 m2
2/4
Leinelänkaari 4 B 25
2h+k+parv
, Kerrostalo
54.5 m2
Kerros 2/4
Leinelänkaari 4 A 14
2h+k+parv
, Kerrostalo
54.5 m2
3/4
Leinelänkaari 4 A 14
2h+k+parv
, Kerrostalo
54.5 m2
Kerros 3/4
Leinelänkaari 4 A 9
2h+k+parv
, Kerrostalo
54.5 m2
2/4
Leinelänkaari 4 A 9
2h+k+parv
, Kerrostalo
54.5 m2
Kerros 2/4
Leinelänkaari 4 A 4
2h+k+parv
, Kerrostalo
54.5 m2
1/4
Leinelänkaari 4 A 4
2h+k+parv
, Kerrostalo
54.5 m2
Kerros 1/4
Leinelänkaari 4 B 35
2h+k+parv
, Kerrostalo
54.5 m2
4/4
Leinelänkaari 4 B 35
2h+k+parv
, Kerrostalo
54.5 m2
Kerros 4/4
Leinelänkaari 4 B 23
2h+kk+parv
, Kerrostalo
49 m2
1/4
Leinelänkaari 4 B 23
2h+kk+parv
, Kerrostalo
49 m2
Kerros 1/4
Leinelänkaari 4 A 8
2h+kk+parv
, Kerrostalo
50 m2
2/4
Leinelänkaari 4 A 8
2h+kk+parv
, Kerrostalo
50 m2
Kerros 2/4
Leinelänkaari 4 B 27
2h+kk+parv
, Kerrostalo
50 m2
2/4
Leinelänkaari 4 B 27
2h+kk+parv
, Kerrostalo
50 m2
Kerros 2/4
Leinelänkaari 4 B 22
2h+kk+parv
, Kerrostalo
50 m2
1/4
Leinelänkaari 4 B 22
2h+kk+parv
, Kerrostalo
50 m2
Kerros 1/4
Leinelänkaari 4 A 13
2h+kk+parv
, Kerrostalo
50 m2
3/4
Leinelänkaari 4 A 13
2h+kk+parv
, Kerrostalo
50 m2
Kerros 3/4
Leinelänkaari 4 A 6
2h+kk+parv
, Kerrostalo
50 m2
2/4
Leinelänkaari 4 A 6
2h+kk+parv
, Kerrostalo
50 m2
Kerros 2/4
Leinelänkaari 4 A 18
2h+kk+parv
, Kerrostalo
50 m2
4/4
Leinelänkaari 4 A 18
2h+kk+parv
, Kerrostalo
50 m2
Kerros 4/4
Leinelänkaari 4 B 37
2h+kk+parv
, Kerrostalo
50 m2
4/4
Leinelänkaari 4 B 37
2h+kk+parv
, Kerrostalo
50 m2
Kerros 4/4
Leinelänkaari 4 B 32
2h+kk+parv
, Kerrostalo
50 m2
3/4
Leinelänkaari 4 B 32
2h+kk+parv
, Kerrostalo
50 m2
Kerros 3/4
Leinelänkaari 4 A 16
2h+kk+parv
, Kerrostalo
50 m2
4/4
Leinelänkaari 4 A 16
2h+kk+parv
, Kerrostalo
50 m2
Kerros 4/4
Leinelänkaari 4 A 11
2h+kk+parv
, Kerrostalo
50 m2
3/4
Leinelänkaari 4 A 11
2h+kk+parv
, Kerrostalo
50 m2
Kerros 3/4
Leinelänkaari 4 B 20
2h+kk+parv
, Kerrostalo
52 m2
Kerros 1/4
Leinelänkaari 4 B 28
3h+k+s+parv
, Kerrostalo
76 m2
2/4
Leinelänkaari 4 B 28
3h+k+s+parv
, Kerrostalo
76 m2
Kerros 2/4
Leinelänkaari 4 A 1
3h+k+s+parv
, Kerrostalo
76 m2
Kerros 1/4
Leinelänkaari 4 A 15
3h+k+s+parv
, Kerrostalo
76 m2
4/4
Leinelänkaari 4 A 15
3h+k+s+parv
, Kerrostalo
76 m2
Kerros 4/4
Leinelänkaari 4 A 5
3h+k+s+parv
, Kerrostalo
76 m2
2/4
Leinelänkaari 4 A 5
3h+k+s+parv
, Kerrostalo
76 m2
Kerros 2/4
Leinelänkaari 4 B 33
3h+k+s+parv
, Kerrostalo
76 m2
3/4
Leinelänkaari 4 B 33
3h+k+s+parv
, Kerrostalo
76 m2
Kerros 3/4
Leinelänkaari 4 B 38
3h+k+s+parv
, Kerrostalo
76 m2
4/4
Leinelänkaari 4 B 38
3h+k+s+parv
, Kerrostalo
76 m2
Kerros 4/4
Leinelänkaari 4 A 10
3h+k+s+parv
, Kerrostalo
76 m2
3/4
Leinelänkaari 4 A 10
3h+k+s+parv
, Kerrostalo
76 m2
Kerros 3/4
Leinelänkaari 4 A 3
3h+kk+s+parv
, Kerrostalo
74.5 m2
1/4
Leinelänkaari 4 A 3
3h+kk+s+parv
, Kerrostalo
74.5 m2
Kerros 1/4
Leinelänkaari 4 B 34
4h+k+s+parv
, Kerrostalo
90 m2
4/4
Leinelänkaari 4 B 34
4h+k+s+parv
, Kerrostalo
90 m2
Kerros 4/4
Leinelänkaari 4 B 29
4h+k+s+parv
, Kerrostalo
90 m2
3/4
Leinelänkaari 4 B 29
4h+k+s+parv
, Kerrostalo
90 m2
Kerros 3/4
Leinelänkaari 4 B 24
4h+k+s+parv
, Kerrostalo
90 m2
2/4
Leinelänkaari 4 B 24
4h+k+s+parv
, Kerrostalo
90 m2
Kerros 2/4


