Siirry sisältöön

Kiviparintie 2 B 5, Helsinki, MYLLYPURO

51 m2, 2H+KK

Heti vapaana toisen kerroksen viihtyisä kaksio Myllypuron palveluiden ääreltä. Asunnossa on hyvin säilytystilaa niin keittiössä kuin makuuhuoneessakin. Lisäksi eteisessä on vielä peilikaapit sekä siivouskaappi. Makuuhuoneeseen on kaksi sisäänkäyntiä, jotka ovat suljettavissa liukuovilla. Asuntoon ku

Jos haluat saada lisätietoja tästä asunnosta, otathan yhteyttä myyjäämme.

Tervetuloa tulevaisuuden kotiisi!

Heti vapaana toisen kerroksen viihtyisä kaksio Myllypuron palveluiden ääreltä. Asunnossa on hyvin säilytystilaa niin keittiössä kuin makuuhuoneessakin. Lisäksi eteisessä on vielä peilikaapit sekä siivouskaappi. Makuuhuoneeseen on kaksi sisäänkäyntiä, jotka ovat suljettavissa liukuovilla. Asuntoon kuuluu oma terassi, josta näkymät vain asukkaille tarkoitetulle sisäpihalle. Terassi on jaettu avoimeen osaan sekä lasitettuun oleskelutilaan.

Jos haluat saada lisätietoja tästä asunnosta, otathan yhteyttä myyjäämme.

Asunnon tiedot

Asuinkustannukset

  • Luovutushinta 33500,99€
    • — Alkuperäinen asumisoikeusmaksu 25395,03€
    • — Indeksitarkistus 8105,96€
  • Käyttövastike 876,94€
    • — Perusvastike 721,46€
    • — Hoitovastike 155,48€
  • Vakuusmaksu 250€
  • Vesimaksu/henkilö/kk 25€
  • Autopaikkamaksut
    • — Autohallimaksu 1 49,00€
  • Saunamaksu 20,00€

Perustiedot asunnosta

  • Talotyyppi Kerrostalo
  • Energialuokka C
  • Huoneistotyyppi 2H+KK
  • Pinta-ala 51.00 m²
  • Kerros 2
  • Oma sauna Ei
  • Hissi Kyllä
  • Vapautuu Tarkentuu myöhemmin
  • Kunto Hyvä
  • Lemmikit Sallittu
  • Laajakaista DNA Welho

Lisätietoja

Tupakointi asunnoissamme

Kaikki uudet asuinkiinteistömme ovat olleet jo pitkään täysin savuttomia heti valmistumisestaan lähtien. Muutumme vähitellen savuttomiksi kaikkien asuntojemme osalta: uusien asukkaiden sopimukset ovat kieltäneet tupakoinnin huoneistoissa ja parvekkeilla 1.1.2021 alkaen. Kiinteistö ei ole välttämättä savuton muiden huoneistojen osalta, koska niissä voi olla vanhoja sopimuksia, joissa ei ole tupakointikieltoa.

Tehdyt muutostyöt

2011 Lattiapäällysteen vaihtaminen parkettilattiaksi, Tammi

Kohteen esittely

Kerrostalokohde Myllypuron uudessa keskustassa. Kaikissa asunnoissa on astianpesukone ja parvekelasitus. Yhtiössä mm. matontamppauskone. Rapusta pääsee suoraan autohalliin.

Metroaseman vieressä. Ostoskeskuksessa paljon kauppoja ja ravintoloita. Alueella on terveysasema, liikuntapaikkoja ja koulut peruskoulusta ammattikorkeakouluun saakka.

Miksi Asuntosäätiö?

Me uskomme, että onnellinen koti ja laadukas asuminen kuuluvat kaikille. Emme tavoittele voittoa, vaan käytämme kaikki vastikkeista ja vuokrista saadut tulot toimintamme kehittämiseen. Jo yli 33 000 suomalaista on valinnut Asuntosäätiön tarjoaman kodin. Tiesithän, että myös lemmikit ovat tervetulleita kaikkiin koteihimme!

Kohteen esittely

Kerrostalokohde Myllypuron uudessa keskustassa. Kaikissa asunnoissa on astianpesukone ja parvekelasitus. Yhtiössä mm. matontamppauskone. Rapusta pääsee suoraan autohalliin. Metroaseman vieressä. Ostoskeskuksessa paljon kauppoja ja ravintoloita. Alueella on terveysasema, liikuntapaikkoja ja koulut peruskoulusta ammattikorkeakouluun saakka.

Rakennuksen tiedot

  • Asumismuoto Asokoti
  • Keskimääräinen asumisoikeusmaksu / jm² 602,2€
  • Hissit 3
  • Talosauna 1
  • Pyykkitupa Kyllä
  • Kuivaushuone Kyllä

Huoneistot ja pohjakuvat: Kiviparintie 2, Kerrostalo

Lisää hakemukselle kaikki haluamasi asuntotyypit. Mahdollisuutesi asunnon saamiseksi paranevat, kun voimme tarjota sinulle kaikkia valitsemasi asuntotyypin asuntoja, jotka mahdollisesti vapautuvat myöhemmin tästä kohteesta. Olet automaattisesti näiden asuntotyyppien hakuprosessissa.

Hae asuntotyyppiä

Kiviparintie 2 C 38

1h+kk

, Kerrostalo

41 m2

Kerros 2/5

Kiviparintie 2 D 53

1h+kk

, Kerrostalo

41 m2

Kerros 2/5

Hae asuntotyyppiä

Kiviparintie 2 B 4

2h+kk

, Kerrostalo

51 m2

Kerros 2/5

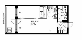
Kiviparintie 2 B 34

2h+kk

, Kerrostalo

51 m2

Kerros 5/5

Kiviparintie 2 B 32

2h+kk

, Kerrostalo

51 m2

Kerros 5/5

Kiviparintie 2 B 5

2h+kk

, Kerrostalo

51 m2

Kerros 2/5

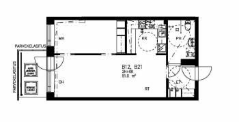
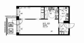
Kiviparintie 2 B 21

2h+kk

, Kerrostalo

51 m2

Kerros 4/5

Kiviparintie 2 B 25

2h+kk

, Kerrostalo

51 m2

Kerros 4/5

Kiviparintie 2 B 14

2h+kk

, Kerrostalo

51 m2

Kerros 3/5

Kiviparintie 2 B 8

2h+kk

, Kerrostalo

51 m2

Kerros 2/5

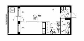
Kiviparintie 2 B 33

2h+kk

, Kerrostalo

51 m2

Kerros 5/5

Kiviparintie 2 B 23

2h+kk

, Kerrostalo

51 m2

Kerros 4/5

Kiviparintie 2 B 7

2h+kk

, Kerrostalo

51 m2

Kerros 2/5

Kiviparintie 2 B 31

2h+kk

, Kerrostalo

51 m2

Kerros 5/5

Kiviparintie 2 B 30

2h+kk

, Kerrostalo

51 m2

Kerros 5/5

Vapautuu 01.03.2026

Kiviparintie 2 B 15

2h+kk

, Kerrostalo

51 m2

Kerros 3/5

Kiviparintie 2 B 24

2h+kk

, Kerrostalo

51 m2

Kerros 4/5

Kiviparintie 2 B 12

2h+kk

, Kerrostalo

51 m2

Kerros 3/5

Kiviparintie 2 B 6

2h+kk

, Kerrostalo

51 m2

Kerros 2/5

Kiviparintie 2 B 22

2h+kk

, Kerrostalo

51 m2

Kerros 4/5

Kiviparintie 2 B 13

2h+kk

, Kerrostalo

51 m2

Kerros 3/5

Kiviparintie 2 B 16

2h+kk

, Kerrostalo

51 m2

Kerros 3/5

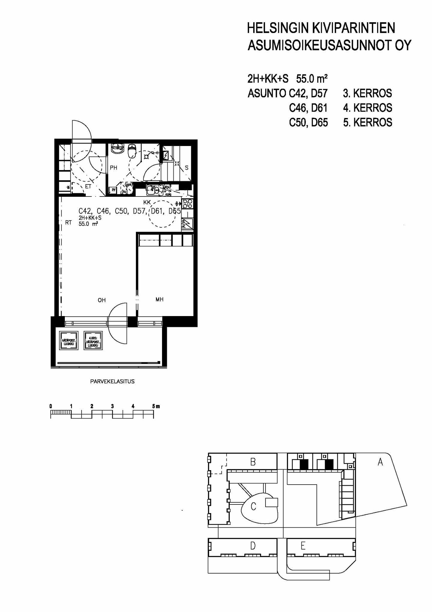
Kiviparintie 2 D 62

2h+kk+s

, Kerrostalo

55 m2

Kerros 4/5

Kiviparintie 2 C 41

2h+kk+s

, Kerrostalo

55 m2

Kerros 3/5

Kiviparintie 2 C 49

2h+kk+s

, Kerrostalo

55 m2

Kerros 5/5

Kiviparintie 2 D 66

2h+kk+s

, Kerrostalo

55 m2

Kerros 5/5

Kiviparintie 2 D 61

2h+kk+s

, Kerrostalo

55 m2

Kerros 4/5

Kiviparintie 2 C 37

2h+kk+s

, Kerrostalo

55 m2

Kerros 2/5

Kiviparintie 2 D 57

2h+kk+s

, Kerrostalo

55 m2

Kerros 3/5

Kiviparintie 2 D 58

2h+kk+s

, Kerrostalo

55 m2

Kerros 3/5

Kiviparintie 2 C 46

2h+kk+s

, Kerrostalo

55 m2

Kerros 4/5

Kiviparintie 2 C 42

2h+kk+s

, Kerrostalo

55 m2

Kerros 3/5

Kiviparintie 2 D 54

2h+kk+s

, Kerrostalo

55 m2

Kerros 2/5

Kiviparintie 2 C 45

2h+kk+s

, Kerrostalo

55 m2

Kerros 4/5

Kiviparintie 2 C 50

2h+kk+s

, Kerrostalo

55 m2

Kerros 5/5

Kiviparintie 2 D 65

2h+kk+s

, Kerrostalo

55 m2

Kerros 5/5

Kiviparintie 2 B 26

2h+kt

, Kerrostalo

58 m2

Kerros 4/5

Kiviparintie 2 B 17

2h+kt

, Kerrostalo

58 m2

Kerros 3/5

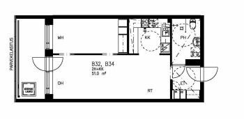
Kiviparintie 2 B 35

2h+kt

, Kerrostalo

58 m2

Kerros 5/5

Kiviparintie 2 B 29

2h+kt+s

, Kerrostalo

61.5 m2

Kerros 5/5

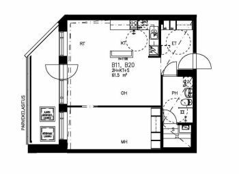
Kiviparintie 2 B 20

2h+kt+s

, Kerrostalo

61.5 m2

Kerros 4/5

Kiviparintie 2 B 3

2h+kt+s

, Kerrostalo

61.5 m2

Kerros 2/5

Kiviparintie 2 B 11

2h+kt+s

, Kerrostalo

61.5 m2

Kerros 3/5

Hae asuntotyyppiä

Kiviparintie 2 D 60

3h+kk

, Kerrostalo

71.5 m2

Kerros 4/5

Kiviparintie 2 D 64

3h+kk

, Kerrostalo

71.5 m2

Kerros 5/5

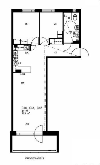
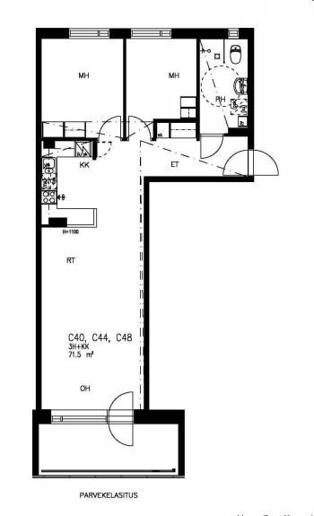
Kiviparintie 2 C 40

3h+kk

, Kerrostalo

71.5 m2

Kerros 3/5

Kiviparintie 2 C 36

3h+kk

, Kerrostalo

71.5 m2

Kerros 2/5

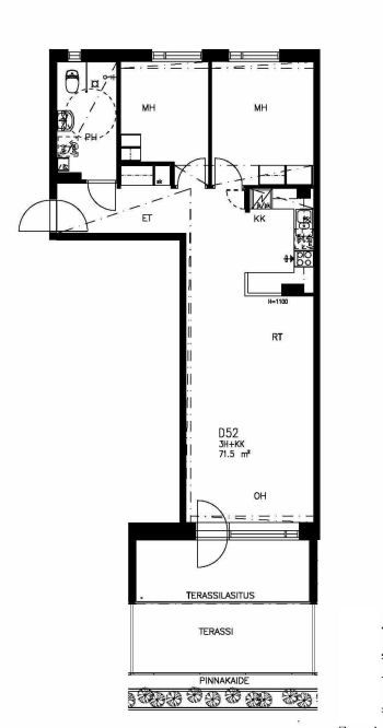
Kiviparintie 2 D 52

3h+kk

, Kerrostalo

71.5 m2

Kerros 2/5

Kiviparintie 2 C 44

3h+kk

, Kerrostalo

71.5 m2

Kerros 4/5

Kiviparintie 2 C 48

3h+kk

, Kerrostalo

71.5 m2

Kerros 5/5

Kiviparintie 2 D 56

3h+kk

, Kerrostalo

71.5 m2

Kerros 3/5

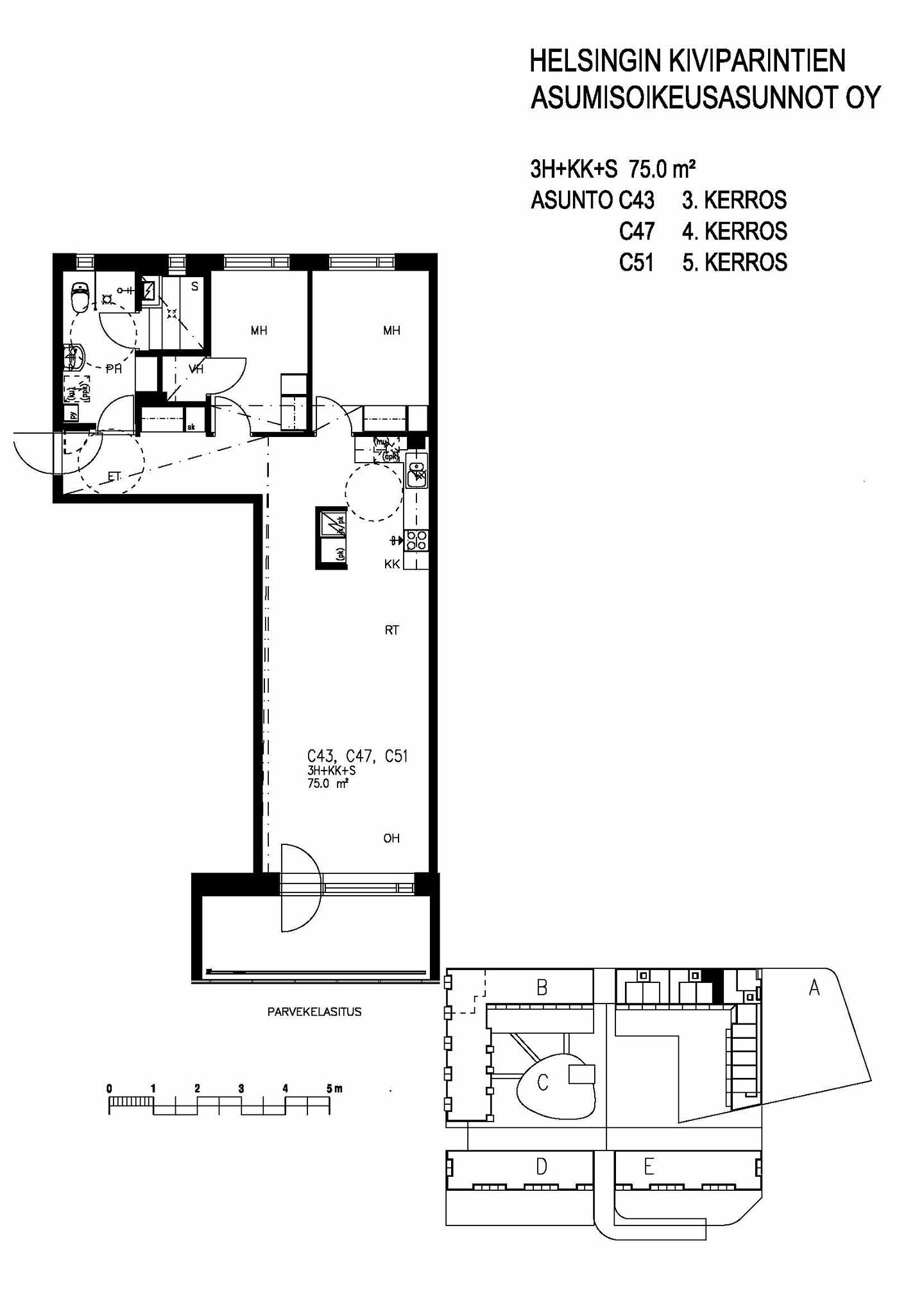
Kiviparintie 2 C 43

3h+kk+s

, Kerrostalo

75 m2

Kerros 3/5

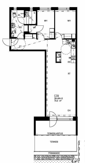
Kiviparintie 2 C 39

3h+kk+s

, Kerrostalo

75 m2

Kerros 2/5

Kiviparintie 2 C 51

3h+kk+s

, Kerrostalo

75 m2

Kerros 5/5

Kiviparintie 2 C 47

3h+kk+s

, Kerrostalo

75 m2

Kerros 4/5

Kiviparintie 2 B 28

3h+kk+s

, Kerrostalo

88.5 m2

Kerros 5/5

Kiviparintie 2 B 2

3h+kk+s

, Kerrostalo

88.5 m2

Kerros 2/5

Kiviparintie 2 B 10

3h+kk+s

, Kerrostalo

88.5 m2

Kerros 3/5

Kiviparintie 2 B 19

3h+kk+s

, Kerrostalo

88.5 m2

Kerros 4/5

Kiviparintie 2 B 1

3h+kt+s

, Kerrostalo

70.5 m2

Kerros 2/5

Kiviparintie 2 B 18

3h+kt+s

, Kerrostalo

70.5 m2

Kerros 4/5

Kiviparintie 2 B 27

3h+kt+s

, Kerrostalo

70.5 m2

Kerros 5/5

Kiviparintie 2 B 9

3h+kt+s

, Kerrostalo

70.5 m2

Kerros 3/5

Kiviparintie 2 D 55

3h+kt+s

, Kerrostalo

75 m2

Kerros 2/5

Kiviparintie 2 D 67

3h+kt+s

, Kerrostalo

75 m2

Kerros 5/5

Kiviparintie 2 D 63

3h+kt+s

, Kerrostalo

75 m2

Kerros 4/5

Kiviparintie 2 D 59

3h+kt+s

, Kerrostalo

75 m2

Kerros 3/5