Siirry sisältöön

Paciuksenkaari 16 A 35, Helsinki, PIKKU HUOPALAHTI

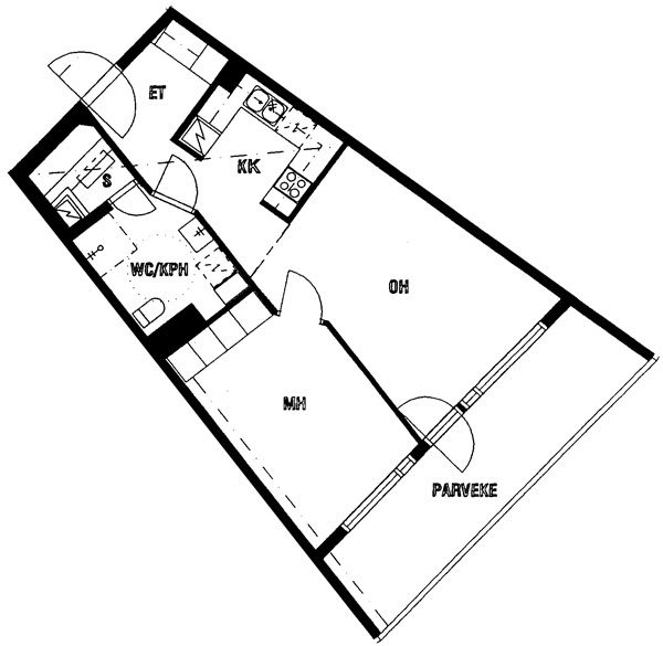
49,5 m2, 2H+KK+S

Asuntomyyjä

Ruut Linnavuori

Heti vapaa kompakti ja viihtyisä kaksio erinomaisella sijainnilla!

Tervetuloa tutustumaan tähän valoisaan ja toimivapohjaiseen kaksioon halutulla paikalla Pikku-Huopalahdessa! Tämä asunto tarjoaa käytännöllistä asumismukavuutta loistavien kulkuyhteyksien ja palveluiden äärellä.

Jos haluat saada lisätietoja tästä asunnosta, otathan yhteyttä myyjäämme.

Tervetuloa tulevaisuuden kotiisi!

Heti vapaa kompakti ja viihtyisä kaksio erinomaisella sijainnilla! Tervetuloa tutustumaan tähän valoisaan ja toimivapohjaiseen kaksioon halutulla paikalla Pikku-Huopalahdessa! Tämä asunto tarjoaa käytännöllistä asumismukavuutta loistavien kulkuyhteyksien ja palveluiden äärellä. Asunnon ehdoton helmi on sen huoneiston pituinen parveke, joka toimii erinomaisena lisätilana oleskeluun. Valoisa olohuone ja makuuhuone tarjoavat mukavasti tilaa, ja makuuhuoneen kaapistot varmistavat, että säilytystilaa on riittävästi. Kompakti keittiö on suunniteltu tehokkaaseen arkeen, ja tilava kylpyhuone saunoineen tuo lisää asumismukavuutta. Uuden asumisoikeusasukkaan toiveesta asennamme asuntoon laminaattilattian, joka tekee kodista entistä viihtyisämmän. Uusi asukas pääsee valitsemaan kolmesta laminaattisävyistä mieluisimman. Mainio sijainti ja hyvät palvelut tekevät tästä kodista vielä loistavamman valinnan, sillä kaupat, palvelut, liikenneyhteydet sekä ulkoilumahdollisuudet ovat kaikki kävelymatkan etäisyydellä. Ota yhteyttä ja varaa esittelyaikasi jo tänään: ruut.linnavuori@asuntosaatio.fi Asuntoa tarjotaan myös vuokralle. Vuokrasopimus on toistaiseksi voimassaoleva, mikä tuo asumiseen joustavuutta ja huolettomuutta. Tule ja ihastu tähän kotiin, joka on valmiina vastaanottamaan uudet asukkaansa! Täytä ensin vuokrahakemus sivuillamme www.asuntosaatio.fi ja ota sen jälkeen yhteyttä kohteen myyjään ruut.linnavuori@asuntosaatio.fi

Jos haluat saada lisätietoja tästä asunnosta, otathan yhteyttä myyjäämme.

Asunnon tiedot

Asuinkustannukset

  • Vuokra 1080€
  • Vakuusmaksu 1080€
  • Vesimaksu/henkilö/kk 20€
  • Autopaikkamaksut
    • — Autopaikkamaksu 3 47,30€
    • — Autopaikka ilman sähköä 65,00€
    • — Autopaikkamaksu 2 71,50€
    • — Autopaikkamaksu 1 65,00€

Perustiedot asunnosta

  • Talotyyppi Kerrostalo
  • Energialuokka D
  • Huoneistotyyppi 2H+KK+S
  • Pinta-ala 49.50 m²
  • Kerros 4
  • Parveke 1
  • Oma sauna Kyllä
  • Hissi Kyllä
  • Vapautuu Heti vapaa
  • Kunto Hyvä
  • Lemmikit Sallittu
  • Laajakaista DNA Welho

Lisätietoja

Tupakointi asunnoissamme

Kaikki uudet asuinkiinteistömme ovat olleet jo pitkään täysin savuttomia heti valmistumisestaan lähtien. Muutumme vähitellen savuttomiksi kaikkien asuntojemme osalta: uusien asukkaiden sopimukset ovat kieltäneet tupakoinnin huoneistoissa ja parvekkeilla 1.1.2021 alkaen. Kiinteistö ei ole välttämättä savuton muiden huoneistojen osalta, koska niissä voi olla vanhoja sopimuksia, joissa ei ole tupakointikieltoa.

Kohteen esittely

Valoisa kerrostalokohde Pikku-Huopalahdessa. Kohteeseen kuuluu Paciuksenkaaren kerrostalo ja Sireninkujan puolen pienkerrostalo. Vehreä, rauhaisa sisäpiha.

Puistomainen alue, jossa pääsee ulkoilemaan pitkiäkin reittejä rantaa pitkin. Myös Meilahden puistot ja Seurasaari ulkomuseoineen kävelymatkan päässä. Hyvät liikenneyhteydet keskustaan esimerkiksi raitiovaunulla.

Miksi Asuntosäätiö?

Me uskomme, että onnellinen koti ja laadukas asuminen kuuluvat kaikille. Emme tavoittele voittoa, vaan käytämme kaikki vastikkeista ja vuokrista saadut tulot toimintamme kehittämiseen. Jo yli 33 000 suomalaista on valinnut Asuntosäätiön tarjoaman kodin. Tiesithän, että myös lemmikit ovat tervetulleita kaikkiin koteihimme!

Kohteen esittely

Valoisa kerrostalokohde Pikku-Huopalahdessa. Kohteeseen kuuluu Paciuksenkaaren kerrostalo ja Sireninkujan puolen pienkerrostalo. Vehreä, rauhaisa sisäpiha. Puistomainen alue, jossa pääsee ulkoilemaan pitkiäkin reittejä rantaa pitkin. Myös Meilahden puistot ja Seurasaari ulkomuseoineen kävelymatkan päässä. Hyvät liikenneyhteydet keskustaan esimerkiksi raitiovaunulla.

Rakennuksen tiedot

  • Asumismuoto Vuokrakoti
  • Hissit 1
  • Talosauna Ei
  • Kuivaushuone Kyllä
  • Asuntoja 65
  • Asuinrakennuksia 2

Huoneistot ja pohjakuvat: Paciuksenkaari 16, Piharakennus, Kerrostalo

Hae asuntotyyppiä

Paciuksenkaari 16 A 35

2h+kk+s

, Kerrostalo

49.5 m2

Kerros 4/7