KAMPANJA: Nyt valikoiduissa asumisoikeusasunnoissa 2 kk vastike 0 € 1.4.-31.5.2026 aikana alkavissa sopimuksissa. Toimi pian >

Siirry sisältöön

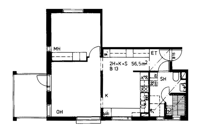
Ramsinniementie 5 B 13, Helsinki, VUOSAARI

56,5 m2, 2H+K+S

Asuntomyyjä

Bertta Gyldén

Tämä 56,5 m²:n asunto tarjoaa selkeän ja toimivan pohjaratkaisun, joka sopii monenlaisiin tarpeisiin. Erillinen keittiö on käytännöllinen ja tarjoaa hyvin kaappitilaa sekä tilan ruokapöydälle. Olohuone on valoisa ja tilava, ja sieltä on käynti lasitetulle parvekkeelle, jossa voit nauttia ulkoilmasta.

Makuuhuoneessa on runsaasti säilytystilaa, ja kylpyhuoneen yhteydessä oleva sauna tuo arkeen mukavuutta ja rentoutumisen mahdollisuuden. WC sijaitsee kylpyhuoneessa. Lisäksi eteisessä on kaappeja, jotka helpottavat arjen säilytystarpeita.

Jos haluat saada lisätietoja tästä asunnosta, otathan yhteyttä myyjäämme.

Tervetuloa tulevaisuuden kotiisi!

Tämä 56,5 m²:n asunto tarjoaa selkeän ja toimivan pohjaratkaisun, joka sopii monenlaisiin tarpeisiin. Erillinen keittiö on käytännöllinen ja tarjoaa hyvin kaappitilaa sekä tilan ruokapöydälle. Olohuone on valoisa ja tilava, ja sieltä on käynti lasitetulle parvekkeelle, jossa voit nauttia ulkoilmasta. Makuuhuoneessa on runsaasti säilytystilaa, ja kylpyhuoneen yhteydessä oleva sauna tuo arkeen mukavuutta ja rentoutumisen mahdollisuuden. WC sijaitsee kylpyhuoneessa. Lisäksi eteisessä on kaappeja, jotka helpottavat arjen säilytystarpeita. Kohteelle on suunnitteilla peruskorjausremonttia. Lisätietoa löydät alla olevasta linkistä: https://www.asuntosaatio.fi/asukkaalle/tietoa-asokoti-asukkaalle/asokotien-peruskorjaus/#49e5aea3 Tutustu asuntoon ja jätä hakemus osoitteessa www.asuntosaatio.fi sekä sovi esittelystä sähköpostitse bertta.gylden@asuntosaatio.fi tai puhelimitse p. 020 161 2403

Jos haluat saada lisätietoja tästä asunnosta, otathan yhteyttä myyjäämme.

Asunnon tiedot

Asuinkustannukset

  • Vuokra 890€
  • Vakuusmaksu 890€
  • Vesimaksu/henkilö/kk 25€
  • Autopaikkamaksut
    • — Autopaikkamaksu 1 15,00€
    • — Autokatos 1 25,00€

Perustiedot asunnosta

  • Talotyyppi Kerrostalo
  • Energialuokka E
  • Huoneistotyyppi 2H+K+S
  • Pinta-ala 56.50 m²
  • Kerros 1
  • Parveke 1
  • Oma sauna Kyllä
  • Hissi Ei
  • Vapautuu Heti vapaa
  • Kunto Hyvä
  • Lemmikit Sallittu
  • Laajakaista DNA Welho

Lisätietoja

Tupakointi asunnoissamme

Kaikki uudet asuinkiinteistömme ovat olleet jo pitkään täysin savuttomia heti valmistumisestaan lähtien. Muutumme vähitellen savuttomiksi kaikkien asuntojemme osalta: uusien asukkaiden sopimukset ovat kieltäneet tupakoinnin huoneistoissa ja parvekkeilla 1.1.2021 alkaen. Kiinteistö ei ole välttämättä savuton muiden huoneistojen osalta, koska niissä voi olla vanhoja sopimuksia, joissa ei ole tupakointikieltoa.

Tehdyt muutostyöt

2012 Parvekelasitus 2024 Kodinkone (Asoetu)

Kohteen esittely

Ramsinniementie 5 on luhti- ja kerrostaloista muodostuva luonnonläheinen kohde Helsingin Vuosaaressa. Viihtyisään pihapiiriin sijoittuva kohde koostuu 7 asuinrakennuksesta, joiden asuntojen koot vaihtelevat kaksioista viiden huoneen asuntoihin, 43–123,5 m². Asukkailla on käytössään kuivaushuone sekä kerhotila. Kohteessa on kaukolämmitys.

Kohde sijaitsee Ramsinniemen ja Kallahdenniemen merellisten ulkoilureittien lähettyvillä. Kohteen kupeessa on myös niin läheinen Kallahden, kuin noin kilometrin päässä sijaitseva Aurinkolahden uimaranta. Rastilan metroasema ja sen läheltä löytyvät kaupat ovat niin ikään noin kilometrin päässä.

Miksi Asuntosäätiö?

Me uskomme, että onnellinen koti ja laadukas asuminen kuuluvat kaikille. Emme tavoittele voittoa, vaan käytämme kaikki vastikkeista ja vuokrista saadut tulot toimintamme kehittämiseen. Jo yli 33 000 suomalaista on valinnut Asuntosäätiön tarjoaman kodin. Tiesithän, että myös lemmikit ovat tervetulleita kaikkiin koteihimme!

Kohteen esittely

Ramsinniementie 5 on luhti- ja kerrostaloista muodostuva luonnonläheinen kohde Helsingin Vuosaaressa. Viihtyisään pihapiiriin sijoittuva kohde koostuu 7 asuinrakennuksesta, joiden asuntojen koot vaihtelevat kaksioista viiden huoneen asuntoihin, 43–123,5 m². Asukkailla on käytössään kuivaushuone sekä kerhotila. Kohteessa on kaukolämmitys. Kohde sijaitsee Ramsinniemen ja Kallahdenniemen merellisten ulkoilureittien lähettyvillä. Kohteen kupeessa on myös niin läheinen Kallahden, kuin noin kilometrin päässä sijaitseva Aurinkolahden uimaranta. Rastilan metroasema ja sen läheltä löytyvät kaupat ovat niin ikään noin kilometrin päässä.

Rakennuksen tiedot

  • Asumismuoto Vuokrakoti
  • Hissit Ei
  • Talosauna Ei
  • Kuivaushuone Kyllä
  • Asuntoja 34
  • Asuinrakennuksia 7

Huoneistot ja pohjakuvat: Ramsinniementie 5, Kerrostalo, Paritalo

Hae asuntotyyppiä

Ramsinniementie 5 B 13

2h+k+s

, Kerrostalo

56.5 m2

Kerros 1/3