Siirry sisältöön

Schaumanin puistotie 7 A 14, Jyväskylä, LUTAKKO

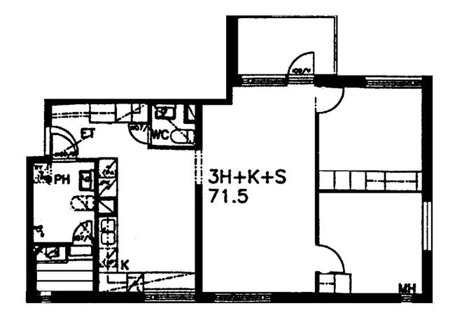
71,5 m2, 3H+K+S

Asuntomyyjä

Tanja Ollinaho

Tämä hissitalon neljännen kerroksen koti tarjoaa erinomaisen pohjaratkaisun, jossa tilat on suunniteltu tehokkaasti ja asumismukavuutta ajatellen. Täydellinen valinta niin pariskunnalle kuin pienelle perheelle.

Tilava olohuone toimii kodin sydämenä ja tarjoaa runsaasti tilaa oleskeluun ja ruokailuun. Erillinen keittiö on käytännöllinen ja tarjoaa hyvin kaappi- ja työtilaa. Kaksi makuuhuonetta, joista suurempi sopii päämakuuhuoneeksi ja pienempi esimerkiksi lastenhuoneeksi tai työtilaksi. Oma sauna ja tilava kylpyhuone, jossa on paikka pyykinpesukoneelle. Erillinen WC lisää arjen sujuvuutta. Lasitettu parveke Jyväsjärven suuntaan, ilmansuunta itä, tuo lisätilaa ja mahdollisuuden nauttia ulkoilmasta ympäri vuoden. Taloyhtiölaajakaista 50M sisältyy vastikkeeseen. Lemmikit on tervetulleita. Kiinnostuitko, tee hakemus asuntosaatio.fi.

Jos haluat saada lisätietoja tästä asunnosta, otathan yhteyttä myyjäämme.

Tervetuloa tulevaisuuden kotiisi!

Tämä hissitalon neljännen kerroksen koti tarjoaa erinomaisen pohjaratkaisun, jossa tilat on suunniteltu tehokkaasti ja asumismukavuutta ajatellen. Täydellinen valinta niin pariskunnalle kuin pienelle perheelle. Tilava olohuone toimii kodin sydämenä ja tarjoaa runsaasti tilaa oleskeluun ja ruokailuun. Erillinen keittiö on käytännöllinen ja tarjoaa hyvin kaappi- ja työtilaa. Kaksi makuuhuonetta, joista suurempi sopii päämakuuhuoneeksi ja pienempi esimerkiksi lastenhuoneeksi tai työtilaksi. Oma sauna ja tilava kylpyhuone, jossa on paikka pyykinpesukoneelle. Erillinen WC lisää arjen sujuvuutta. Lasitettu parveke Jyväsjärven suuntaan, ilmansuunta itä, tuo lisätilaa ja mahdollisuuden nauttia ulkoilmasta ympäri vuoden. Taloyhtiölaajakaista 50M sisältyy vastikkeeseen. Lemmikit on tervetulleita. Kiinnostuitko, tee hakemus asuntosaatio.fi. Asuntoa tarjotaan myös vuokralle. Vuokrasopimukset toistaiseksi voimassa olevia. Vakuus 250 €. Vuokrahakemukset tulee jättää osoitteessa asuntosaatio.fi, kiitos.

Jos haluat saada lisätietoja tästä asunnosta, otathan yhteyttä myyjäämme.

Asunnon tiedot

Asuinkustannukset

  • Vuokra 1075€
  • Vakuusmaksu 250€
  • Vesimaksu/henkilö/kk 12€
  • Vesimaksuennakko/hlö/kk 10€
  • Autopaikkamaksut
    • — Autopaikka ilman sähköä 5,00€
    • — Autopaikkamaksu 1 15,00€

Perustiedot asunnosta

  • Talotyyppi Kerrostalo
  • Energialuokka E
  • Huoneistotyyppi 3H+K+S
  • Pinta-ala 71.50 m²
  • Parveke 1
  • Oma sauna Kyllä
  • Erillinen wc Kyllä
  • Hissi Kyllä
  • Vapautuu Heti vapaa
  • Kunto Hyvä
  • Lemmikit Sallittu
  • Laajakaista Elisa

Lisätietoja

Tupakointi asunnoissamme

Kaikki uudet asuinkiinteistömme ovat olleet jo pitkään täysin savuttomia heti valmistumisestaan lähtien. Muutumme vähitellen savuttomiksi kaikkien asuntojemme osalta: uusien asukkaiden sopimukset ovat kieltäneet tupakoinnin huoneistoissa ja parvekkeilla 1.1.2021 alkaen. Kiinteistö ei ole välttämättä savuton muiden huoneistojen osalta, koska niissä voi olla vanhoja sopimuksia, joissa ei ole tupakointikieltoa.

Tehdyt muutostyöt

2012 Parvekelasitus Tila: Muut tilat (Asoetu) 2020 Saunan lauteet (Asoetu)

Kohteen esittely

Lutakko on suosittu monimuotoinen asuinalue Jyväsjärven rannalla, aivan keskustan vieressä.

Alueen monimuotoisuudesta kertoo alueella olevat modernit asuinrakennukset, teknologiakeskus, hotelli- ja kongressikeskuksen palvelut, sekä rantaraitin varrella oleva uudistettu satama-alue.

Miksi Asuntosäätiö?

Me uskomme, että onnellinen koti ja laadukas asuminen kuuluvat kaikille. Emme tavoittele voittoa, vaan käytämme kaikki vastikkeista ja vuokrista saadut tulot toimintamme kehittämiseen. Jo yli 33 000 suomalaista on valinnut Asuntosäätiön tarjoaman kodin. Tiesithän, että myös lemmikit ovat tervetulleita kaikkiin koteihimme!

Kohteen esittely

Lutakko on suosittu monimuotoinen asuinalue Jyväsjärven rannalla, aivan keskustan vieressä. Alueen monimuotoisuudesta kertoo alueella olevat modernit asuinrakennukset, teknologiakeskus, hotelli- ja kongressikeskuksen palvelut, sekä rantaraitin varrella oleva uudistettu satama-alue.

Rakennuksen tiedot

  • Asumismuoto Vuokrakoti
  • Hissit 2
  • Talosauna Ei
  • Pyykkitupa Kyllä
  • Asuntoja 32
  • Asuinrakennuksia 1

Huoneistot ja pohjakuvat: Schaumanin puistotie 7, Kerrostalo, Piharakennus

Hae asuntotyyppiä

Schaumanin puistotie 7 A 14

3h+k+s

, Kerrostalo

71.5 m2

Kerros /5

Schaumanin puistotie 7 B 21

3h+k+s

, Kerrostalo

74.5 m2

Kerros 2./5

Schaumanin puistotie 7 A 1

3h+k+s

, Kerrostalo

77.5 m2

Kerros 1./5

Schaumanin puistotie 7 A 7

3h+k+s

, Kerrostalo

77.5 m2

Kerros 3./5