KAMPANJA: Nyt valikoiduissa asumisoikeusasunnoissa 2 kk vastike 0 €, kun teet sopimuksen 1.4.-31.5.2026 aikana. Toimi pian >

Siirry sisältöön
Peruskorjattu

Lue lisää asumismukavuutta lisäävistä peruskorjauksistamme.

Sampolankatu 6 B 17, Kerava, SAMPOLA

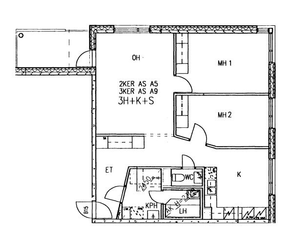
80 m2, 3H+K+S

Asuntomyyjä

Raija Saario

Heti vapaa ylimmän kerroksen tilava ja siisti kolmio muutama vuosi sitten peruskorjatussa talossa. Parveke on lasitettu ja keittiön varusteisin kuuluu astianpesukone. Ikkunoissa on muutostyönä asennettu sälekaihtimet (kunnossapitovastuu asukkaalla). Autopaikkakin on saatavilla.

Tässä asunnossa on myös vuokraus mahdollisuus (1125 €/kk). Asunto on tarkoitettu ensisijaisesti asumisoikeusasumiseen ja asuntoa tarjotaan aina ensisijaisesti asumisoikeuden hakijoille. Mikäli asuntoon ei ole asumisoikeushakijoita tulemme olemaan erikseen yhteydessä vuokrahakemuksen jättäneisiin hakijoihin joille asuntoa voidaan tarjota, vuokrahakijoilla ei ole tulo- eikä varallisuusrajoja. Hakemus ei ole sitova eikä asuntoa myydä vuokrasopimuksen voimassaolon aikana. Vuokrasopimus on voimassa toistaiseksi eikä sido määräaikaisuuteen (irtisanomisaika vuokralaisella 1 kk) Kiinnostuitko vuokra-/asumisoikeusasumisesta?

Jos haluat saada lisätietoja tästä asunnosta, otathan yhteyttä myyjäämme.

Tervetuloa tulevaisuuden kotiisi!

Heti vapaa ylimmän kerroksen tilava ja siisti kolmio muutama vuosi sitten peruskorjatussa talossa. Parveke on lasitettu ja keittiön varusteisin kuuluu astianpesukone. Ikkunoissa on muutostyönä asennettu sälekaihtimet (kunnossapitovastuu asukkaalla). Autopaikkakin on saatavilla. Tässä asunnossa on myös vuokraus mahdollisuus (1125 €/kk). Asunto on tarkoitettu ensisijaisesti asumisoikeusasumiseen ja asuntoa tarjotaan aina ensisijaisesti asumisoikeuden hakijoille. Mikäli asuntoon ei ole asumisoikeushakijoita tulemme olemaan erikseen yhteydessä vuokrahakemuksen jättäneisiin hakijoihin joille asuntoa voidaan tarjota, vuokrahakijoilla ei ole tulo- eikä varallisuusrajoja. Hakemus ei ole sitova eikä asuntoa myydä vuokrasopimuksen voimassaolon aikana. Vuokrasopimus on voimassa toistaiseksi eikä sido määräaikaisuuteen (irtisanomisaika vuokralaisella 1 kk) Kiinnostuitko vuokra-/asumisoikeusasumisesta? Katso lisätiedot ja asunnon hakuohjeet sivuiltamme: www.asuntosaatio.fi ja laita viestiä myyjälle: raija.saario(at)asuntosaatio.fi

Jos haluat saada lisätietoja tästä asunnosta, otathan yhteyttä myyjäämme.

Asunnon tiedot

Asuinkustannukset

  • Vuokra 1125€
  • Vakuusmaksu 250€
  • Vesimaksu/henkilö/kk 25€
  • Autopaikkamaksut
    • — Autohallimaksu 1 35,00€
    • — Autokatos 1 25,00€
    • — Autopaikkamaksu 1 15,00€

Perustiedot asunnosta

  • Talotyyppi Kerrostalo
  • Energialuokka E
  • Huoneistotyyppi 3H+K+S
  • Pinta-ala 80.00 m²
  • Kerros 3
  • Parveke 1
  • Oma sauna Kyllä
  • Erillinen wc Kyllä
  • Hissi Ei
  • Vapautuu Heti vapaa
  • Kunto Hyvä
  • Lemmikit Sallittu
  • Laajakaista Elisa

Lisätietoja

Tupakointi asunnoissamme

Kaikki uudet asuinkiinteistömme ovat olleet jo pitkään täysin savuttomia heti valmistumisestaan lähtien. Muutumme vähitellen savuttomiksi kaikkien asuntojemme osalta: uusien asukkaiden sopimukset ovat kieltäneet tupakoinnin huoneistoissa ja parvekkeilla 1.1.2021 alkaen. Kiinteistö ei ole välttämättä savuton muiden huoneistojen osalta, koska niissä voi olla vanhoja sopimuksia, joissa ei ole tupakointikieltoa.

Kohteen esittely

Keravan keskustan tuntumassa kolmekerroksinen kerrostalo. Tässä talossa ei ole hissiä. Kohde on peruskorjattu 2020-2021.

Keskustan kaupat ja juna-asema kävelymatkan päässä. Tämä kohde on erittäin suosittu keskeisen sijainnin vuoksi.

Miksi Asuntosäätiö?

Me uskomme, että onnellinen koti ja laadukas asuminen kuuluvat kaikille. Emme tavoittele voittoa, vaan käytämme kaikki vastikkeista ja vuokrista saadut tulot toimintamme kehittämiseen. Jo yli 33 000 suomalaista on valinnut Asuntosäätiön tarjoaman kodin. Tiesithän, että myös lemmikit ovat tervetulleita kaikkiin koteihimme!

Kohteen esittely

Keravan keskustan tuntumassa kolmekerroksinen kerrostalo. Tässä talossa ei ole hissiä. Kohde on peruskorjattu 2020-2021. Keskustan kaupat ja juna-asema kävelymatkan päässä. Tämä kohde on erittäin suosittu keskeisen sijainnin vuoksi.

Rakennuksen tiedot

  • Asumismuoto Vuokrakoti
  • Hissit Ei
  • Talosauna Ei
  • Asuntoja 20
  • Asuinrakennuksia 2
  • Valmistumisvuosi 1992

Huoneistot ja pohjakuvat: Sampolankatu 6, Piharakennus, Kerrostalo

Hae asuntotyyppiä

Sampolankatu 6 B 16

2h+k+s

, Kerrostalo

64 m2

Kerros 2/3

Hae asuntotyyppiä

Sampolankatu 6 A 9

3h+k+s

, Kerrostalo

78.5 m2

Kerros 3/3

Sampolankatu 6 B 17

3h+k+s

, Kerrostalo

80 m2

Kerros 3/3