Siirry sisältöön

Valjakkotie 6 A 1, Oulu, HEIKKILÄNKANGAS

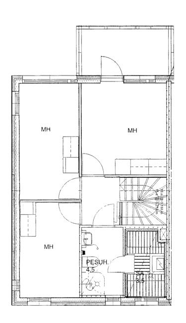
98 m2, 5H+K+S

Asuntomyyjä

Emmi Mannonen

Tilava rivitaloasunto mukavalta alueelta Heikkilänkankaalta vaikka isommallekin perheelle. Asunto on kahdessa tasossa, alakerrassa keittiö, olohuone, 1 makuuhuone, suihku/wc ja yläkerrassa 3 makuuhuonetta, wc/sauna ja parveke. Talo rakennettu 2002. Oma sauna ja piha, lemmikit sallittuja. Vesimaksut kulutuksen m

Jos haluat saada lisätietoja tästä asunnosta, otathan yhteyttä myyjäämme.

Tervetuloa tulevaisuuden kotiisi!

Tilava rivitaloasunto mukavalta alueelta Heikkilänkankaalta vaikka isommallekin perheelle. Asunto on kahdessa tasossa, alakerrassa keittiö, olohuone, 1 makuuhuone, suihku/wc ja yläkerrassa 3 makuuhuonetta, wc/sauna ja parveke. Talo rakennettu 2002. Oma sauna ja piha, lemmikit sallittuja. Vesimaksut kulutuksen mukaan.

Jos haluat saada lisätietoja tästä asunnosta, otathan yhteyttä myyjäämme.

Asunnon tiedot

Asuinkustannukset

  • Vuokra 1300€
  • Vakuusmaksu 250€
  • Vesimaksuennakko/hlö/kk 10€
  • Autopaikkamaksut
    • — Autopaikkamaksu 1 7,00€

Perustiedot asunnosta

  • Talotyyppi Rivitalo
  • Energialuokka D
  • Huoneistotyyppi 5H+K+S
  • Pinta-ala 98.00 m²
  • Kerros 1-2
  • Parveke 1
  • Oma sauna Kyllä
  • Erillinen wc Kyllä
  • Hissi Ei
  • Vapautuu 13.04.2026
  • Kunto Hyvä
  • Lemmikit Sallittu
  • Laajakaista DNA Welho

Lisätietoja

Tupakointi asunnoissamme

Kaikki uudet asuinkiinteistömme ovat olleet jo pitkään täysin savuttomia heti valmistumisestaan lähtien. Muutumme vähitellen savuttomiksi kaikkien asuntojemme osalta: uusien asukkaiden sopimukset ovat kieltäneet tupakoinnin huoneistoissa ja parvekkeilla 1.1.2021 alkaen. Kiinteistö ei ole välttämättä savuton muiden huoneistojen osalta, koska niissä voi olla vanhoja sopimuksia, joissa ei ole tupakointikieltoa.

Tehdyt muutostyöt

2002 sälekaihtimet

Kohteen esittely

Maaseutumaisessa ympäristössä, Heikkilänkankaan alueella noin 9 km Oulun keskustasta sijaitseva kohde. Rauhallinen sisäpiha, jossa on lapsille leikkialue. Kohde koostuu yhdestä yksitasoisesta ja kahdesta 2-tasoisesta rivitalosta. Viih

Miksi Asuntosäätiö?

Me uskomme, että onnellinen koti ja laadukas asuminen kuuluvat kaikille. Emme tavoittele voittoa, vaan käytämme kaikki vastikkeista ja vuokrista saadut tulot toimintamme kehittämiseen. Jo yli 33 000 suomalaista on valinnut Asuntosäätiön tarjoaman kodin. Tiesithän, että myös lemmikit ovat tervetulleita kaikkiin koteihimme!

Kohteen esittely

Maaseutumaisessa ympäristössä, Heikkilänkankaan alueella noin 9 km Oulun keskustasta sijaitseva kohde. Rauhallinen sisäpiha, jossa on lapsille leikkialue. Kohde koostuu yhdestä yksitasoisesta ja kahdesta 2-tasoisesta rivitalosta. Viihtyisällä sisäpihalla on lapsille leikkialue.

Rakennuksen tiedot

  • Asumismuoto Vuokrakoti
  • Hissit Ei
  • Talosauna Ei
  • Asuntoja 14
  • Asuinrakennuksia 3
  • Valmistumisvuosi 2002

Huoneistot ja pohjakuvat: Valjakkotie 6, Rivitalo, Piharakennus

Hae asuntotyyppiä

Valjakkotie 6 A 1

5h+k+s

, Rivitalo

98 m2

Kerros 1-2/

Vapautuu 13.04.2026