Siirry sisältöön

Metsolantie 7 B 61, Vantaa, KORSO

52,5 m2, 2H+KT+S

Asuntomyyjä

Marjaana Kurvi

Heti vapaa kolmannen kerroksen saunallinen kaksio! Hissilinen talo erinomaisella sijainnilla. Parveke itään. Jätä hakemus www.asuntosaatio.fi

Jos haluat saada lisätietoja tästä asunnosta, otathan yhteyttä myyjäämme.

Tervetuloa tulevaisuuden kotiisi!

Heti vapaa kolmannen kerroksen saunallinen kaksio! Hissilinen talo erinomaisella sijainnilla. Parveke itään. Jätä hakemus www.asuntosaatio.fi

Jos haluat saada lisätietoja tästä asunnosta, otathan yhteyttä myyjäämme.

Asunnon tiedot

Asuinkustannukset

  • Vuokra 930€
  • Vakuusmaksu 930€
  • Vesimaksu/henkilö/kk 20€
  • Autopaikkamaksut
    • — Autohallimaksu 2 20,00€
    • — Autohallimaksu 1 35,00€

Perustiedot asunnosta

  • Talotyyppi Kerrostalo
  • Energialuokka F
  • Huoneistotyyppi 2H+KT+S
  • Pinta-ala 52.50 m²
  • Kerros 3
  • Parveke 1
  • Oma sauna Kyllä
  • Hissi Kyllä
  • Vapautuu Heti vapaa
  • Kunto Hyvä
  • Lemmikit Sallittu
  • Laajakaista DNA Welho

Lisätietoja

Tupakointi asunnoissamme

Kaikki uudet asuinkiinteistömme ovat olleet jo pitkään täysin savuttomia heti valmistumisestaan lähtien. Muutumme vähitellen savuttomiksi kaikkien asuntojemme osalta: uusien asukkaiden sopimukset ovat kieltäneet tupakoinnin huoneistoissa ja parvekkeilla 1.1.2021 alkaen. Kiinteistö ei ole välttämättä savuton muiden huoneistojen osalta, koska niissä voi olla vanhoja sopimuksia, joissa ei ole tupakointikieltoa.

Tehdyt muutostyöt

2021 Laminaatti (Asoetu)

Kohteen esittely

Viihtyisä kerrostalokohde palveluiden äärellä. A-rapun asuntoihin kuljetaan luhtikäytävältä. Autopaikat sijaitsevat viereisessä parkkihallissa.

Hyvät ulkoilumahdollisuudet mm. Korsonojan äärellä tai alueen puistoissa. Erinomaiset liikenneyhteydet: Bussipysäkki lähes talon edessä, juna-asemalle parinsadan metrin matka.

Miksi Asuntosäätiö?

Me uskomme, että onnellinen koti ja laadukas asuminen kuuluvat kaikille. Emme tavoittele voittoa, vaan käytämme kaikki vastikkeista ja vuokrista saadut tulot toimintamme kehittämiseen. Jo yli 33 000 suomalaista on valinnut Asuntosäätiön tarjoaman kodin. Tiesithän, että myös lemmikit ovat tervetulleita kaikkiin koteihimme!

Kohteen esittely

Viihtyisä kerrostalokohde palveluiden äärellä. A-rapun asuntoihin kuljetaan luhtikäytävältä. Autopaikat sijaitsevat viereisessä parkkihallissa. Hyvät ulkoilumahdollisuudet mm. Korsonojan äärellä tai alueen puistoissa. Erinomaiset liikenneyhteydet: Bussipysäkki lähes talon edessä, juna-asemalle parinsadan metrin matka.

Rakennuksen tiedot

  • Asumismuoto Vuokrakoti
  • Hissit 2
  • Talosauna Ei
  • Asuntoja 74
  • Asuinrakennuksia 1
  • Valmistumisvuosi 2003

Huoneistot ja pohjakuvat: Metsolantie 7, Piharakennus, Kerrostalo

Hae asuntotyyppiä

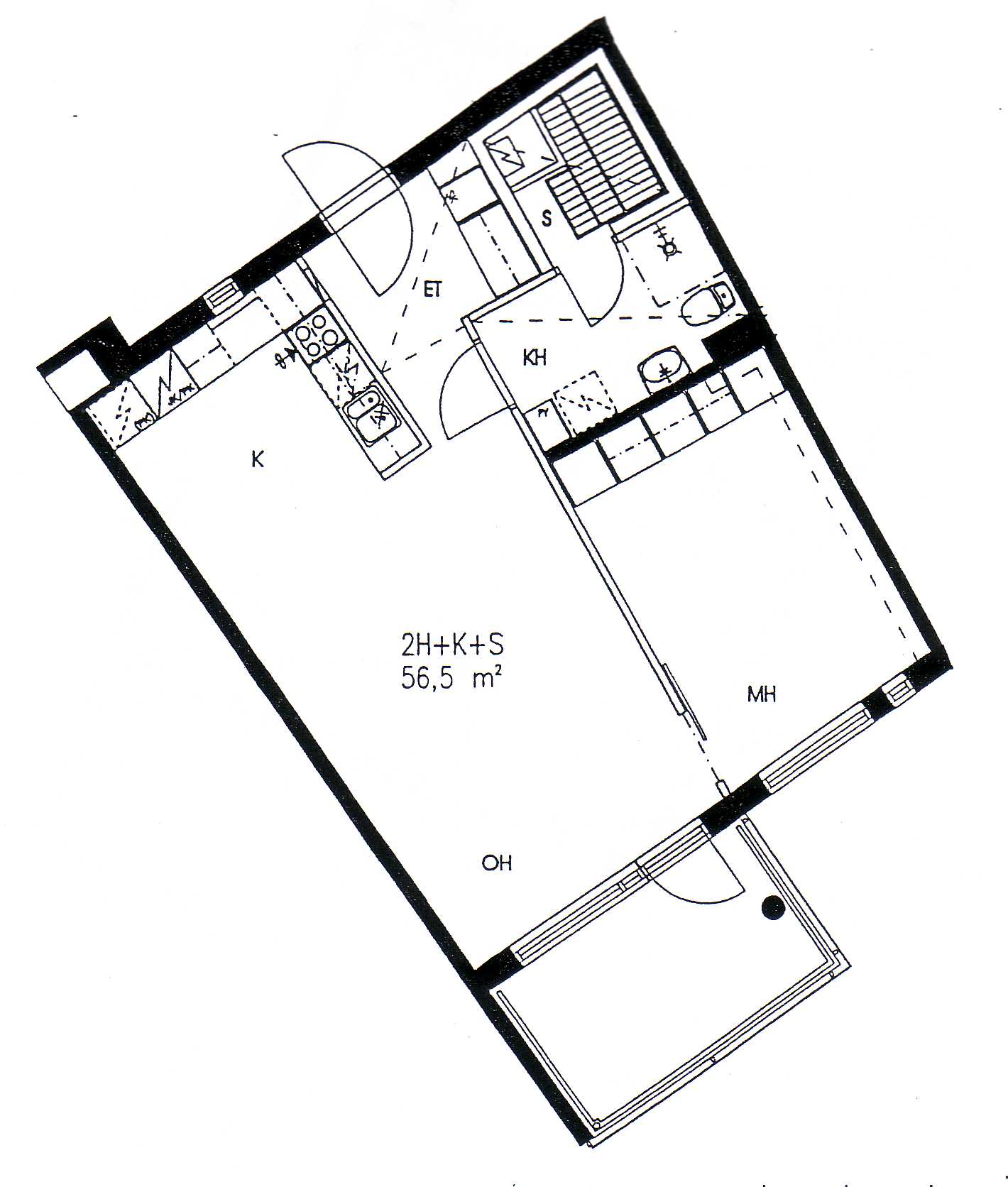
Metsolantie 7 A 7

2h+k+s

, Kerrostalo

56.5 m2

Kerros 1/5

Metsolantie 7 A 16

2h+kk+s

, Kerrostalo

49.5 m2

Kerros 2/5

Metsolantie 7 B 61

2h+kt+s

, Kerrostalo

52.5 m2

Kerros 3/5