Siirry sisältöön

Schaumanin puistotie 7 B 21, Jyväskylä, LUTAKKO

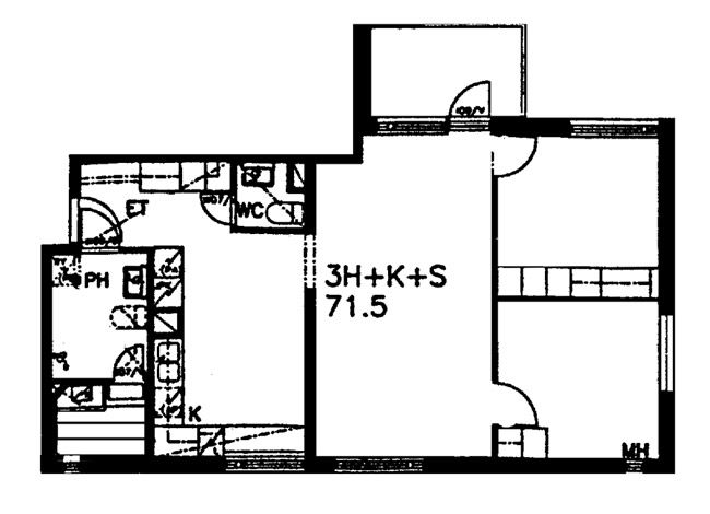
74,5 m2, 3H+K+S

Asuntomyyjä

Tanja Ollinaho

Tämä 74,5 m²:n asumisoikeusasunto tarjoaa erinomaisen pohjaratkaisun ja viihtyisän asumisen Lutakon suositulla alueella. Kolmen huoneen, keittiön ja saunan kokonaisuus on suunniteltu arjen sujuvuutta ja mukavuutta ajatellen. Iso olohuone yhdistyy luontevasti keittiöön ja tarjoaa tilaa oleskeluun ja ruokailuun.

Lasitettu parveke tuo lisätilaa ja mahdollisuuden nauttia ulkoilmasta ympäri vuoden. Kaksi makuuhuonetta, joista toinen sopii päämakuuhuoneeksi ja toinen työ- tai lastenhuoneeksi. Oma sauna ja tilava kylpyhuone, jossa on paikka pyykinpesukoneelle. Erillinen WC lisää arjen käytännöllisyyttä. Hyvät säilytystilat: kaapistot eteisessä ja makuuhuoneissa. Taloyhtiölaajakaista sisältyy vastikkeeseen. Lemmikit tervetulleita. Kiinnostuitko, tee hakemus asuntosaatio.fi.

Jos haluat saada lisätietoja tästä asunnosta, otathan yhteyttä myyjäämme.

Tervetuloa tulevaisuuden kotiisi!

Tämä 74,5 m²:n asumisoikeusasunto tarjoaa erinomaisen pohjaratkaisun ja viihtyisän asumisen Lutakon suositulla alueella. Kolmen huoneen, keittiön ja saunan kokonaisuus on suunniteltu arjen sujuvuutta ja mukavuutta ajatellen. Iso olohuone yhdistyy luontevasti keittiöön ja tarjoaa tilaa oleskeluun ja ruokailuun. Lasitettu parveke tuo lisätilaa ja mahdollisuuden nauttia ulkoilmasta ympäri vuoden. Kaksi makuuhuonetta, joista toinen sopii päämakuuhuoneeksi ja toinen työ- tai lastenhuoneeksi. Oma sauna ja tilava kylpyhuone, jossa on paikka pyykinpesukoneelle. Erillinen WC lisää arjen käytännöllisyyttä. Hyvät säilytystilat: kaapistot eteisessä ja makuuhuoneissa. Taloyhtiölaajakaista sisältyy vastikkeeseen. Lemmikit tervetulleita. Kiinnostuitko, tee hakemus asuntosaatio.fi. Asuntoa tarjotaan myös vuokralle. Vuokrahakemukset tulee jättää osoitteessa asuntosaatio.fi. Vuokrasopimukset toistaiseksi voimassa olevia.

Jos haluat saada lisätietoja tästä asunnosta, otathan yhteyttä myyjäämme.

Asunnon tiedot

Asuinkustannukset

  • Luovutushinta 25263,88€
    • — Alkuperäinen asumisoikeusmaksu 13445,78€
    • — Indeksitarkistus 11292,3€
    • — Muutostyöt 525,8€
  • Käyttövastike 944,24€
    • — Perusvastike 741,08€
    • — Hoitovastike 203,16€
  • Käyttövastike 1.1. 949,3€
    • — Perusvastike 1.1. 757,7€
    • — Hoitovastike 1.1. 191,6€
  • Vakuusmaksu 250€
  • Vesimaksu/henkilö/kk 10€
  • Vesimaksuennakko/hlö/kk 10€
  • Autopaikkamaksut
    • — Autopaikka ilman sähköä 5,00€
    • — Autopaikkamaksu 1 15,00€

Perustiedot asunnosta

  • Talotyyppi Kerrostalo
  • Energialuokka E
  • Huoneistotyyppi 3H+K+S
  • Pinta-ala 74.50 m²
  • Kerros 2.
  • Parveke 1
  • Oma sauna Kyllä
  • Erillinen wc Kyllä
  • Hissi Kyllä
  • Vapautuu Heti vapaa
  • Kunto Hyvä
  • Lemmikit Sallittu
  • Laajakaista Elisa

Lisätietoja

Tupakointi asunnoissamme

Kaikki uudet asuinkiinteistömme ovat olleet jo pitkään täysin savuttomia heti valmistumisestaan lähtien. Muutumme vähitellen savuttomiksi kaikkien asuntojemme osalta: uusien asukkaiden sopimukset ovat kieltäneet tupakoinnin huoneistoissa ja parvekkeilla 1.1.2021 alkaen. Kiinteistö ei ole välttämättä savuton muiden huoneistojen osalta, koska niissä voi olla vanhoja sopimuksia, joissa ei ole tupakointikieltoa.

Tehdyt muutostyöt

2010 Lattiapäällysteen vaihtaminen Laminaattilattiaksi Tila: Olohuone (Asoetu) 2007 Parvekelasitus Tila: Muut tilat 2007 Parvekelasitus 2014 Keittiön työpöytätasojen uusiminen ja välitilalaattojen uusiminen 2018 Käsienpesualtaat 2018 WC:n ja kylpyhuoneen kalusteet + asennus 2018 Suihkuseinä 2018 Liesi keraaminen

Kohteen esittely

Lutakko on suosittu monimuotoinen asuinalue Jyväsjärven rannalla, aivan keskustan vieressä.

Alueen monimuotoisuudesta kertoo alueella olevat modernit asuinrakennukset, teknologiakeskus, hotelli- ja kongressikeskuksen palvelut, sekä rantaraitin varrella oleva uudistettu satama-alue.

Miksi Asuntosäätiö?

Me uskomme, että onnellinen koti ja laadukas asuminen kuuluvat kaikille. Emme tavoittele voittoa, vaan käytämme kaikki vastikkeista ja vuokrista saadut tulot toimintamme kehittämiseen. Jo yli 33 000 suomalaista on valinnut Asuntosäätiön tarjoaman kodin. Tiesithän, että myös lemmikit ovat tervetulleita kaikkiin koteihimme!

Kohteen esittely

Lutakko on suosittu monimuotoinen asuinalue Jyväsjärven rannalla, aivan keskustan vieressä. Alueen monimuotoisuudesta kertoo alueella olevat modernit asuinrakennukset, teknologiakeskus, hotelli- ja kongressikeskuksen palvelut, sekä rantaraitin varrella oleva uudistettu satama-alue.

Rakennuksen tiedot

  • Asumismuoto Asokoti
  • Keskimääräinen asumisoikeusmaksu / jm² 335,79€
  • Hissit 2
  • Talosauna Ei
  • Pyykkitupa Kyllä
  • Asuntoja 32

Huoneistot ja pohjakuvat: Schaumanin puistotie 7, Kerrostalo, Piharakennus

Lisää hakemukselle kaikki haluamasi asuntotyypit. Mahdollisuutesi asunnon saamiseksi paranevat, kun voimme tarjota sinulle kaikkia valitsemasi asuntotyypin asuntoja, jotka mahdollisesti vapautuvat myöhemmin tästä kohteesta. Olet automaattisesti näiden asuntotyyppien hakuprosessissa.

Hae asuntotyyppiä

Schaumanin puistotie 7 B 31

2h+kk+s

, Kerrostalo

47 m2

Kerros /5

Schaumanin puistotie 7 B 19

2h+kk+s

, Kerrostalo

47 m2

Kerros 1./5

Schaumanin puistotie 7 B 30

2h+kk+s

, Kerrostalo

47 m2

Kerros /5

Schaumanin puistotie 7 A 2

2h+kk+s

, Kerrostalo

47 m2

Kerros 1./5

Schaumanin puistotie 7 B 22

2h+kk+s

, Kerrostalo

47 m2

Kerros 2/5

Schaumanin puistotie 7 A 4

2h+kk+s

, Kerrostalo

47 m2

Kerros 2./5

Schaumanin puistotie 7 B 27

2h+kk+s

, Kerrostalo

47 m2

Kerros 3./5

Schaumanin puistotie 7 A 16

2h+kk+s

, Kerrostalo

47 m2

Kerros /5

Schaumanin puistotie 7 A 9

2h+kk+s

, Kerrostalo

47 m2

Kerros 3./5

Schaumanin puistotie 7 A 8

2h+kk+s

, Kerrostalo

47 m2

Kerros /5

Schaumanin puistotie 7 A 13

2h+kk+s

, Kerrostalo

47 m2

Kerros 4./5

Schaumanin puistotie 7 B 26

2h+kk+s

, Kerrostalo

47 m2

Kerros 3./5

Schaumanin puistotie 7 B 23

2h+kk+s

, Kerrostalo

47 m2

Kerros /5

Schaumanin puistotie 7 A 5

2h+kk+s

, Kerrostalo

47 m2

Kerros /5

Schaumanin puistotie 7 A 12

2h+kk+s

, Kerrostalo

47 m2

Kerros /5

Hae asuntotyyppiä

Schaumanin puistotie 7 A 14

3h+k+s

, Kerrostalo

71.5 m2

Kerros /5

Schaumanin puistotie 7 A 6

3h+k+s

, Kerrostalo

71.5 m2

Kerros /5

Schaumanin puistotie 7 A 17

3h+k+s

, Kerrostalo

71.5 m2

Kerros /5

Schaumanin puistotie 7 A 10

3h+k+s

, Kerrostalo

71.5 m2

Kerros /5

Schaumanin puistotie 7 B 25

3h+k+s

, Kerrostalo

74.5 m2

Kerros 3./5

Schaumanin puistotie 7 B 21

3h+k+s

, Kerrostalo

74.5 m2

Kerros 2./5

Schaumanin puistotie 7 B 29

3h+k+s

, Kerrostalo

74.5 m2

Kerros 4./5

Schaumanin puistotie 7 A 3

3h+k+s

, Kerrostalo

77.5 m2

Kerros 2/5

Schaumanin puistotie 7 B 28

3h+k+s

, Kerrostalo

77.5 m2

Kerros 3./5

Schaumanin puistotie 7 B 24

3h+k+s

, Kerrostalo

77.5 m2

Kerros 2./5

Schaumanin puistotie 7 A 7

3h+k+s

, Kerrostalo

77.5 m2

Kerros 3./5

Schaumanin puistotie 7 B 32

3h+k+s

, Kerrostalo

77.5 m2

Kerros 4./5

Schaumanin puistotie 7 A 11

3h+k+s

, Kerrostalo

77.5 m2

Kerros /5

Schaumanin puistotie 7 B 20

3h+k+s

, Kerrostalo

77.5 m2

Kerros 1./5

Schaumanin puistotie 7 A 1

3h+k+s

, Kerrostalo

77.5 m2

Kerros 1./5

Hae asuntotyyppiä

Schaumanin puistotie 7 B 18

4h+k+s

, Kerrostalo

87.5 m2

Kerros /5

Hae asuntotyyppiä

Schaumanin puistotie 7 A 15

5h+k+s

, Kerrostalo

104 m2

Kerros /5