Siirry sisältöön

Ulrikankuja 20 C 45, Vantaa, REKOLA

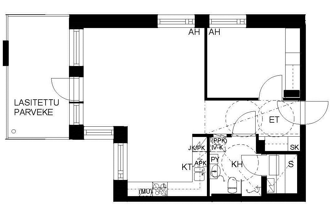
48,5 m2, 2H+K

Asuntomyyjä

Marjaana Kurvi

Kolmannen kerroksen valoisa asumisoikeuskaksio viihtyisässä kerrostalokohteessa Vantaan Rekolassa. Asunnon pohjaratkaisu on toimiva ja tarjoaa arkeen mukavuutta ja tilan tuntua.

Kodissa on vaatehuone, joka tuo runsaasti säilytystilaa, sekä iso lasitettu parveke, joka toimii viihtyisänä lisätilana aikaisesta keväästä pitkälle syksyyn. Hissitalo tekee liikkumisesta vaivatonta.

Jos haluat saada lisätietoja tästä asunnosta, otathan yhteyttä myyjäämme.

Tervetuloa tulevaisuuden kotiisi!

Kolmannen kerroksen valoisa asumisoikeuskaksio viihtyisässä kerrostalokohteessa Vantaan Rekolassa. Asunnon pohjaratkaisu on toimiva ja tarjoaa arkeen mukavuutta ja tilan tuntua. Kodissa on vaatehuone, joka tuo runsaasti säilytystilaa, sekä iso lasitettu parveke, joka toimii viihtyisänä lisätilana aikaisesta keväästä pitkälle syksyyn. Hissitalo tekee liikkumisesta vaivatonta. Sijainti on erinomainen: Rekolan juna-asema on alle 200 metrin päässä, ja alueella on hyvät arjen palvelut sekä luonnonläheiset ulkoilumaastot Rekolanpuron tuntumassa. Rauhallinen asuinympäristö yhdistyy sujuviin yhteyksiin. Jätä hakemus www.asuntosaatio.fi

Jos haluat saada lisätietoja tästä asunnosta, otathan yhteyttä myyjäämme.

Asunnon tiedot

Asuinkustannukset

  • Luovutushinta 34185,87€
    • — Alkuperäinen asumisoikeusmaksu 27376,85€
    • — Indeksitarkistus 6809,02€
  • Käyttövastike 806,36€
    • — Perusvastike 657,22€
    • — Hoitovastike 149,15€
  • Vakuusmaksu 250€
  • Vesimaksu/henkilö/kk 23€
  • Autopaikkamaksut
    • — Autopaikkamaksu 1 15,00€
  • Saunamaksu 20,00€

Perustiedot asunnosta

  • Talotyyppi Kerrostalo
  • Energialuokka B
  • Huoneistotyyppi 2H+K
  • Pinta-ala 48.50 m²
  • Kerros 3
  • Parveke 1
  • Oma sauna Ei
  • Hissi Kyllä
  • Vapautuu 01.06.2026
  • Kunto Hyvä
  • Lemmikit Sallittu
  • Laajakaista DNA Welho

Lisätietoja

Tupakointi asunnoissamme

Kaikki uudet asuinkiinteistömme ovat olleet jo pitkään täysin savuttomia heti valmistumisestaan lähtien. Muutumme vähitellen savuttomiksi kaikkien asuntojemme osalta: uusien asukkaiden sopimukset ovat kieltäneet tupakoinnin huoneistoissa ja parvekkeilla 1.1.2021 alkaen. Kiinteistö ei ole välttämättä savuton muiden huoneistojen osalta, koska niissä voi olla vanhoja sopimuksia, joissa ei ole tupakointikieltoa.

Kohteen esittely

Viihtyisä kerrostalokohde Ulrikanpuistossa. Kohteessa on 1-3 huoneen ja keittiön asuntoja. Osassa asuntoja on oma sauna.

Rauhallinen alue, jossa koulut, päiväkodit ja palvelut, mm. Peijaksen sairaala lähellä. Luonnonläheiset ulkoilumaastot Rekolanpuron tuntumassa. Hyvät kulkuyhteydet: Rekolan juna-asemalle alle 200 m, samoin kaupunkipyöräasemalle.

Miksi Asuntosäätiö?

Me uskomme, että onnellinen koti ja laadukas asuminen kuuluvat kaikille. Emme tavoittele voittoa, vaan käytämme kaikki vastikkeista ja vuokrista saadut tulot toimintamme kehittämiseen. Jo yli 33 000 suomalaista on valinnut Asuntosäätiön tarjoaman kodin. Tiesithän, että myös lemmikit ovat tervetulleita kaikkiin koteihimme!

Kohteen esittely

Viihtyisä kerrostalokohde Ulrikanpuistossa. Kohteessa on 1-3 huoneen ja keittiön asuntoja. Osassa asuntoja on oma sauna. Rauhallinen alue, jossa koulut, päiväkodit ja palvelut, mm. Peijaksen sairaala lähellä. Luonnonläheiset ulkoilumaastot Rekolanpuron tuntumassa. Hyvät kulkuyhteydet: Rekolan juna-asemalle alle 200 m, samoin kaupunkipyöräasemalle.

Rakennuksen tiedot

  • Asumismuoto Asokoti
  • Keskimääräinen asumisoikeusmaksu / jm² 685,45€
  • Hissit 3
  • Talosauna 1
  • Kuivaushuone Kyllä
  • Asuntoja 51

Huoneistot ja pohjakuvat: Ulrikankuja 20, Kerrostalo

Lisää hakemukselle kaikki haluamasi asuntotyypit. Mahdollisuutesi asunnon saamiseksi paranevat, kun voimme tarjota sinulle kaikkia valitsemasi asuntotyypin asuntoja, jotka mahdollisesti vapautuvat myöhemmin tästä kohteesta. Olet automaattisesti näiden asuntotyyppien hakuprosessissa.

Hae asuntotyyppiä

Ulrikankuja 20 A 3

1h+k

, Kerrostalo

33 m2

Kerros 2/3

Ulrikankuja 20 A 7

1h+k

, Kerrostalo

33 m2

Kerros 3/3

Ulrikankuja 20 A 12

1h+k

, Kerrostalo

33 m2

Kerros 4/3

Ulrikankuja 20 C 38

1h+k

, Kerrostalo

33 m2

Kerros 2/4

Ulrikankuja 20 C 35

1h+k

, Kerrostalo

33 m2

Kerros 1/4

Ulrikankuja 20 C 48

1h+k

, Kerrostalo

33 m2

Kerros 4/4

Ulrikankuja 20 C 43

1h+k

, Kerrostalo

33 m2

Kerros 3/4

Hae asuntotyyppiä

Ulrikankuja 20 A 1

2h+k

, Kerrostalo

40 m2

Kerros 2/3

Ulrikankuja 20 B 23

2h+k

, Kerrostalo

40 m2

Kerros 2/4

Ulrikankuja 20 B 30

2h+k

, Kerrostalo

40 m2

Kerros 4/4

Ulrikankuja 20 B 20

2h+k

, Kerrostalo

40 m2

Kerros 2/4

Ulrikankuja 20 B 25

2h+k

, Kerrostalo

40 m2

Kerros 3/4

Ulrikankuja 20 C 41

2h+k

, Kerrostalo

47.5 m2

Kerros 2/4

Ulrikankuja 20 A 14

2h+k

, Kerrostalo

48.5 m2

Kerros 4/3

Ulrikankuja 20 A 9

2h+k

, Kerrostalo

48.5 m2

Kerros 3/3

Ulrikankuja 20 A 5

2h+k

, Kerrostalo

48.5 m2

Kerros 2/3

Ulrikankuja 20 B 22

2h+k

, Kerrostalo

48.5 m2

Kerros 2/4

Ulrikankuja 20 B 32

2h+k

, Kerrostalo

48.5 m2

Kerros 4/4

Ulrikankuja 20 B 27

2h+k

, Kerrostalo

48.5 m2

Kerros 3/4

Ulrikankuja 20 C 40

2h+k

, Kerrostalo

48.5 m2

Kerros 2/4

Ulrikankuja 20 C 45

2h+k

, Kerrostalo

48.5 m2

Kerros 3/4

Vapautuu 01.06.2026

Ulrikankuja 20 C 50

2h+k

, Kerrostalo

48.5 m2

Kerros 4/4

Ulrikankuja 20 A 10

2h+k+s

, Kerrostalo

48 m2

Kerros 3/3

Ulrikankuja 20 A 15

2h+k+s

, Kerrostalo

48 m2

Kerros 4/3

Ulrikankuja 20 B 33

2h+k+s

, Kerrostalo

48 m2

Kerros 4/4

Ulrikankuja 20 B 28

2h+k+s

, Kerrostalo

48 m2

Kerros 3/4

Ulrikankuja 20 A 13

2h+k+s

, Kerrostalo

53.5 m2

Kerros 4/3

Ulrikankuja 20 A 8

2h+k+s

, Kerrostalo

53.5 m2

Kerros 3/3

Vapautuu 02.06.2026

Ulrikankuja 20 A 4

2h+k+s

, Kerrostalo

53.5 m2

Kerros 2/3

Ulrikankuja 20 B 31

2h+k+s

, Kerrostalo

53.5 m2

Kerros 4/4

Ulrikankuja 20 B 21

2h+k+s

, Kerrostalo

53.5 m2

Kerros 2/4

Ulrikankuja 20 B 18

2h+k+s

, Kerrostalo

53.5 m2

Kerros 1/4

Ulrikankuja 20 B 26

2h+k+s

, Kerrostalo

53.5 m2

Kerros 3/4

Ulrikankuja 20 C 36

2h+k+s

, Kerrostalo

53.5 m2

Kerros 1/4

Ulrikankuja 20 C 39

2h+k+s

, Kerrostalo

53.5 m2

Kerros 2/4

Ulrikankuja 20 C 49

2h+k+s

, Kerrostalo

53.5 m2

Kerros 4/4

Ulrikankuja 20 C 44

2h+k+s

, Kerrostalo

53.5 m2

Kerros 3/4

Ulrikankuja 20 C 46

2h+k+s

, Kerrostalo

55.5 m2

Kerros 3/4

Ulrikankuja 20 C 51

2h+k+s

, Kerrostalo

55.5 m2

Kerros 4/4

Ulrikankuja 20 B 29

2h+k+s

, Kerrostalo

57.5 m2

Kerros 4/4

Ulrikankuja 20 B 19

2h+k+s

, Kerrostalo

57.5 m2

Kerros 2/4

Ulrikankuja 20 B 24

2h+k+s

, Kerrostalo

57.5 m2

Kerros 3/4

Ulrikankuja 20 B 16

2h+k+s

, Kerrostalo

57.5 m2

Kerros 1/4

Ulrikankuja 20 B 17

2h+kt

, Kerrostalo

40 m2

Kerros 1/4

Hae asuntotyyppiä

Ulrikankuja 20 A 2

3h+k+s

, Kerrostalo

65 m2

Kerros 2/3

Ulrikankuja 20 A 6

3h+k+s

, Kerrostalo

65 m2

Kerros 3/3

Ulrikankuja 20 A 11

3h+k+s

, Kerrostalo

65 m2

Kerros 4/3

Ulrikankuja 20 C 42

3h+k+s

, Kerrostalo

65 m2

Kerros 3/4

Ulrikankuja 20 C 47

3h+k+s

, Kerrostalo

65 m2

Kerros 4/4

Ulrikankuja 20 C 34

3h+k+s

, Kerrostalo

65 m2

Kerros 1/4

Ulrikankuja 20 C 37

3h+k+s

, Kerrostalo

65 m2

Kerros 2/4