KAMPANJA: Nyt valikoiduissa asumisoikeusasunnoissa 2 kk vastike 0 €, kun teet sopimuksen 1.4.-31.5.2026 aikana. Toimi pian >

Siirry sisältöön

Myrskykuja 19 C 8, Imatra, MANSIKKALA

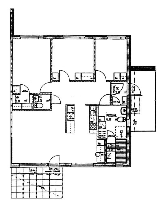
89 m2, 4H+K+S

Asuntomyyjä

Jussi Jaakkola

Rivitalon päätyasunto! Asunnossa tilava keittiö johon mahtuu ruokapöytä, keittiö aukeaa olohuoneeseen joten seurustelu ruokaa laittaessa on perheen ja vieraiden kanssa helppoa. Olohuoneesta on käynti asunnon omalle pihalle joka antaa multapeukalolle huikean mahdollisuuden toteuttaa itseään. Asunnossa on k

Jos haluat saada lisätietoja tästä asunnosta, otathan yhteyttä myyjäämme.

Tervetuloa tulevaisuuden kotiisi!

Rivitalon päätyasunto! Asunnossa tilava keittiö johon mahtuu ruokapöytä, keittiö aukeaa olohuoneeseen joten seurustelu ruokaa laittaessa on perheen ja vieraiden kanssa helppoa. Olohuoneesta on käynti asunnon omalle pihalle joka antaa multapeukalolle huikean mahdollisuuden toteuttaa itseään. Asunnossa on kolme makuuhuonetta ja päämakuuhuoneesta löytyy vaatehuone. Asunnossa on valoisa kylpyhuone sekä sauna jossa on myös ikkuna tuomassa valoa ja helpottamassa saunan tuulettamista saunomisen jälkeen. Asunnosta löytyy myös erillis wc. helpottamaan perheen arkea. Asunto on vapaa heti. Asunto on tarkoitettu ensisijaisesti asumisoikeusasumiseen ja asuntoa tarjotaan aina ensisijaisesti asumisoikeuden hakijoille (mikäli asuntoon ei ole asumisoikeushakijoita tulemme olemaan erikseen yhteydessä vuokrahakemuksen jättäneisiin). Jätä vuokra- tai asumisoikeushakemus sivuillemme www.asuntosaatio.fi. Hakemus ei ole sitova eikä asuntoa myydä vuokrasopimuksen voimassaolon aikana. Vuokrasopimus on voimassa toistaiseksi eikä sido määräaikaisuuteen (irtisanomisaika vuokralaisella 1 kk) Kiinnostuitko vuokra-/asumisoikeusasumisesta? Lisätietoja jussi.jaakkola@asuntosaatio.fi

Jos haluat saada lisätietoja tästä asunnosta, otathan yhteyttä myyjäämme.

Asunnon tiedot

Asuinkustannukset

  • Vuokra 1070€
  • Vakuusmaksu 250€
  • Vesimaksuennakko/hlö/kk 25€
  • Autopaikkamaksut
    • — Autopaikkamaksu 1 12,00€

Perustiedot asunnosta

  • Talotyyppi Rivitalo
  • Energialuokka D
  • Huoneistotyyppi 4H+K+S
  • Pinta-ala 89.00 m²
  • Kerros 1
  • Oma sauna Kyllä
  • Erillinen wc Kyllä
  • Hissi Ei
  • Vapautuu 01.05.2026
  • Kunto Hyvä
  • Lemmikit Sallittu
  • Laajakaista Elisa

Lisätietoja

Tupakointi asunnoissamme

Kaikki uudet asuinkiinteistömme ovat olleet jo pitkään täysin savuttomia heti valmistumisestaan lähtien. Muutumme vähitellen savuttomiksi kaikkien asuntojemme osalta: uusien asukkaiden sopimukset ovat kieltäneet tupakoinnin huoneistoissa ja parvekkeilla 1.1.2021 alkaen. Kiinteistö ei ole välttämättä savuton muiden huoneistojen osalta, koska niissä voi olla vanhoja sopimuksia, joissa ei ole tupakointikieltoa.

Tehdyt muutostyöt

2016 Kiukaan uusiminen Tila: Kylpyhuone / Sauna (Asoetu) 2016 Lieden uusiminen Tila: Keittiö (Asoetu)

Kohteen esittely

Mansikkalan palveluiden tuntumassa idyllinen rivitalokohde, jossa kaikki asunnot yhdessä tasossa.

Alueella on kouluja ja hyvät ulkoilumahdollisuudet joen varressa, josta löytyy mm. mahdollisuus kalastaa ja harrastaa kulttuuria. Lähellä kauppoja ruokakaupoista auto- ja kodintarvikeliikkeisiin sekä ravintoloita. Juna-asemalle ja keskustaan kumpaankin noin kilometrin matka. Parin kilometrin päässä myös kaksi kylpylää.

Miksi Asuntosäätiö?

Me uskomme, että onnellinen koti ja laadukas asuminen kuuluvat kaikille. Emme tavoittele voittoa, vaan käytämme kaikki vastikkeista ja vuokrista saadut tulot toimintamme kehittämiseen. Jo yli 33 000 suomalaista on valinnut Asuntosäätiön tarjoaman kodin. Tiesithän, että myös lemmikit ovat tervetulleita kaikkiin koteihimme!

Kohteen esittely

Mansikkalan palveluiden tuntumassa idyllinen rivitalokohde, jossa kaikki asunnot yhdessä tasossa. Alueella on kouluja ja hyvät ulkoilumahdollisuudet joen varressa, josta löytyy mm. mahdollisuus kalastaa ja harrastaa kulttuuria. Lähellä kauppoja ruokakaupoista auto- ja kodintarvikeliikkeisiin sekä ravintoloita. Juna-asemalle ja keskustaan kumpaankin noin kilometrin matka. Parin kilometrin päässä myös kaksi kylpylää.

Rakennuksen tiedot

  • Asumismuoto Vuokrakoti
  • Hissit Ei
  • Talosauna Ei
  • Asuntoja 19
  • Asuinrakennuksia 4
  • Valmistumisvuosi 1997

Huoneistot ja pohjakuvat: Myrskykuja 19, Piharakennus, Rivitalo

Hae asuntotyyppiä

Myrskykuja 19 D 17

3h+k+s

, Rivitalo

78.5 m2

Kerros 1/1

Hae asuntotyyppiä

Myrskykuja 19 C 8

4h+k+s

, Rivitalo

89 m2

Kerros 1/1

Vapautuu 01.05.2026