Siirry sisältöön

Peltoniementie 6 A 19, Jyväskylä, KUOKKALA

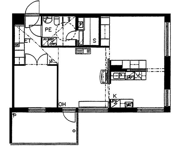
64 m2, 3H+K+S

Asuntomyyjä

Tanja Ollinaho

Hissitalon neljännen kerroksen saunallinen valoisa kulmahuoneisto. Tehokkaasti suunniteltu pohjaratkaisu, sekä iso lasitettu parveke, ilmansuunta etelä. Taloyhtiölaajakaista 50M sisältyy vastikkeeseen. Lemmikit tervetulleita. Kiinnostuitko, tee hakemus asuntosaatio.fi

Asuntoa tarjotaan myös vuokralle. Vuokrahakemukset tulee jättää osoitteessa asuntosaatio.fi. Vuokrasopimukset toistaiseksi voimassa olevia.

Jos haluat saada lisätietoja tästä asunnosta, otathan yhteyttä myyjäämme.

Tervetuloa tulevaisuuden kotiisi!

Hissitalon neljännen kerroksen saunallinen valoisa kulmahuoneisto. Tehokkaasti suunniteltu pohjaratkaisu, sekä iso lasitettu parveke, ilmansuunta etelä. Taloyhtiölaajakaista 50M sisältyy vastikkeeseen. Lemmikit tervetulleita. Kiinnostuitko, tee hakemus asuntosaatio.fi Asuntoa tarjotaan myös vuokralle. Vuokrahakemukset tulee jättää osoitteessa asuntosaatio.fi. Vuokrasopimukset toistaiseksi voimassa olevia.

Jos haluat saada lisätietoja tästä asunnosta, otathan yhteyttä myyjäämme.

Asunnon tiedot

Asuinkustannukset

  • Vuokra 920€
  • Vakuusmaksu 250€
  • Vesimaksuennakko/hlö/kk 25€
  • Autopaikkamaksut
    • — Autopaikka ilman sähköä 5,00€
    • — Autotallimaksut 50,00€
    • — Autopaikkamaksu 1 20,00€
    • — Autokatos 1 35,00€

Perustiedot asunnosta

  • Talotyyppi Kerrostalo
  • Energialuokka E
  • Huoneistotyyppi 3H+K+S
  • Pinta-ala 64.00 m²
  • Kerros 4
  • Parveke 1
  • Oma sauna Kyllä
  • Hissi Kyllä
  • Vapautuu Heti vapaa
  • Kunto Hyvä
  • Lemmikit Sallittu
  • Laajakaista Elisa

Lisätietoja

Tupakointi asunnoissamme

Kaikki uudet asuinkiinteistömme ovat olleet jo pitkään täysin savuttomia heti valmistumisestaan lähtien. Muutumme vähitellen savuttomiksi kaikkien asuntojemme osalta: uusien asukkaiden sopimukset ovat kieltäneet tupakoinnin huoneistoissa ja parvekkeilla 1.1.2021 alkaen. Kiinteistö ei ole välttämättä savuton muiden huoneistojen osalta, koska niissä voi olla vanhoja sopimuksia, joissa ei ole tupakointikieltoa.

Tehdyt muutostyöt

2003 sälekaihtimet 2008 Sälekaihtimet 2014 Keraamisen lieden hankinta, Rosenlew Cooker Ceran 50 cm gri 2014 Työtasot, 1 1/2 altainen ilman laskutasoa. Oras Safira keittiöhana 2014 Keittiön työtason ja hanan asennus 2015 Astianpesukoneen ja suojakaukalon hankinta, Electrolux ESF5510LIW + vuotosuoja

Kohteen esittely

Tyylikäs kerrostalo aivan Jyväsjärven rannassa, rantaraitin varrella, Kuokkalan sillan kupeessa.

Nopea yhteys keskustaan. Kuokkalan palvelut sijaitsevat kävelymatkan päässä Palveluihin kuuluvat muun muassa päivittäistavarakaupat, posti, apteekki, parturi-kampaamoja, kioski, kirkko, pizzeria, grilli. Lähistöllä myös päiväkodit ja koulut.

Miksi Asuntosäätiö?

Me uskomme, että onnellinen koti ja laadukas asuminen kuuluvat kaikille. Emme tavoittele voittoa, vaan käytämme kaikki vastikkeista ja vuokrista saadut tulot toimintamme kehittämiseen. Jo yli 33 000 suomalaista on valinnut Asuntosäätiön tarjoaman kodin. Tiesithän, että myös lemmikit ovat tervetulleita kaikkiin koteihimme!

Kohteen esittely

Tyylikäs kerrostalo aivan Jyväsjärven rannassa, rantaraitin varrella, Kuokkalan sillan kupeessa. Nopea yhteys keskustaan. Kuokkalan palvelut sijaitsevat kävelymatkan päässä Palveluihin kuuluvat muun muassa päivittäistavarakaupat, posti, apteekki, parturi-kampaamoja, kioski, kirkko, pizzeria, grilli. Lähistöllä myös päiväkodit ja koulut.

Rakennuksen tiedot

  • Asumismuoto Vuokrakoti
  • Hissit 1
  • Talosauna Ei
  • Pyykkitupa Kyllä
  • Kuivaushuone Kyllä
  • Asuntoja 38

Huoneistot ja pohjakuvat: Peltoniementie 6, Kerrostalo

Hae asuntotyyppiä

Peltoniementie 6 A 19

3h+k+s

, Kerrostalo

64 m2

Kerros 4/7