Siirry sisältöön

Haapakuja 3 A 11, Vantaa, KOIVUKYLÄ

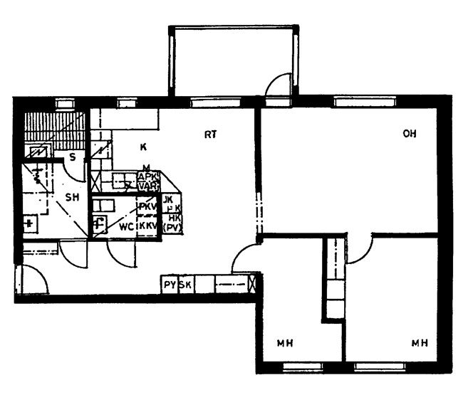
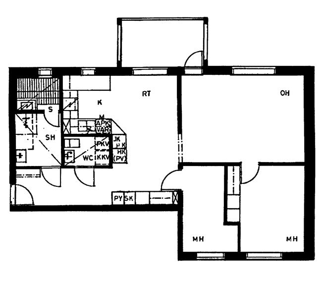
74 m2, 3H+K+S

Siisti saunallinen kolmio vanhassa mutta tykätyssä talossa. Loistava sijainti, rauhallinen alue mutta kuitenkin lähellä Koivukylän palveluja. Tule tutustumaan!

Jos haluat saada lisätietoja tästä asunnosta, otathan yhteyttä myyjäämme.

Tervetuloa tulevaisuuden kotiisi!

Siisti saunallinen kolmio vanhassa mutta tykätyssä talossa. Loistava sijainti, rauhallinen alue mutta kuitenkin lähellä Koivukylän palveluja. Tule tutustumaan!

Jos haluat saada lisätietoja tästä asunnosta, otathan yhteyttä myyjäämme.

Asunnon tiedot

Asuinkustannukset

  • Vuokra 1190€
  • Vakuusmaksu 1190€
  • Vesimaksu/henkilö/kk 25€
  • Autopaikkamaksut
    • — Autopaikkamaksu 1 15,00€

Perustiedot asunnosta

  • Talotyyppi Kerrostalo
  • Energialuokka D
  • Huoneistotyyppi 3H+K+S
  • Pinta-ala 74.00 m²
  • Kerros 4
  • Parveke 1
  • Oma sauna Kyllä
  • Erillinen wc Kyllä
  • Hissi Ei
  • Vapautuu Tarkentuu myöhemmin
  • Kunto Hyvä
  • Lemmikit Sallittu
  • Laajakaista DNA Welho

Lisätietoja

Tupakointi asunnoissamme

Kaikki uudet asuinkiinteistömme ovat olleet jo pitkään täysin savuttomia heti valmistumisestaan lähtien. Muutumme vähitellen savuttomiksi kaikkien asuntojemme osalta: uusien asukkaiden sopimukset ovat kieltäneet tupakoinnin huoneistoissa ja parvekkeilla 1.1.2021 alkaen. Kiinteistö ei ole välttämättä savuton muiden huoneistojen osalta, koska niissä voi olla vanhoja sopimuksia, joissa ei ole tupakointikieltoa.

Tehdyt muutostyöt

2011 Laminaattilattia, KL 32 Tila: Muut tilat (Asoetu) 2012 Astianpesukone 2018 Astianpesukoneen sekä suojakaukalon hankinta

Kohteen esittely

Nelikerroksinen hissitön kerrostalo Koivukylän palveluiden läheisyydessä. Loistavat kulkuyhteydet!

Miksi Asuntosäätiö?

Me uskomme, että onnellinen koti ja laadukas asuminen kuuluvat kaikille. Emme tavoittele voittoa, vaan käytämme kaikki vastikkeista ja vuokrista saadut tulot toimintamme kehittämiseen. Jo yli 33 000 suomalaista on valinnut Asuntosäätiön tarjoaman kodin. Tiesithän, että myös lemmikit ovat tervetulleita kaikkiin koteihimme!

Kohteen esittely

Nelikerroksinen hissitön kerrostalo Koivukylän palveluiden läheisyydessä. Loistavat kulkuyhteydet!

Rakennuksen tiedot

  • Asumismuoto Vuokrakoti
  • Hissit Ei
  • Talosauna Ei
  • Kuivaushuone Kyllä
  • Asuntoja 25
  • Asuinrakennuksia 1

Huoneistot ja pohjakuvat: Haapakuja 3, Kerrostalo, Piharakennus

Hae asuntotyyppiä

Haapakuja 3 A 7

3h+k+s

, Kerrostalo

74 m2

Kerros 3/4

Haapakuja 3 A 11

3h+k+s

, Kerrostalo

74 m2

Kerros 4/4