Siirry sisältöön

Peijaksentie 27 C 40, Vantaa, REKOLA

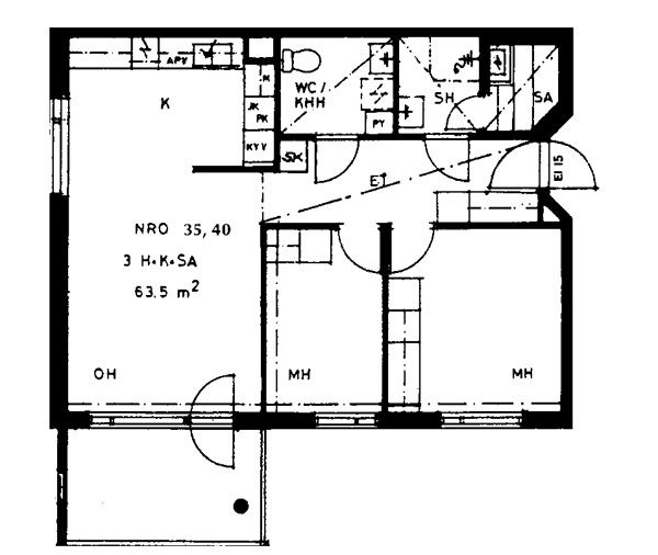
63,5 m2, 3H+K+S

Asuntomyyjä

Marjaana Kurvi

Toisen kerroksen erittäin siisti saunallinen kolmio, asuntoon asennettu keväällä 2024 muuutostyönä laminaatti. Rauhallinen talo, hyvä sijainti joen ja lenkkipolkujen lähellä. Jätä hakemus www.asuntosaatio.fi ja tule tutustumaan!

Jos haluat saada lisätietoja tästä asunnosta, otathan yhteyttä myyjäämme.

Tervetuloa tulevaisuuden kotiisi!

Toisen kerroksen erittäin siisti saunallinen kolmio, asuntoon asennettu keväällä 2024 muuutostyönä laminaatti. Rauhallinen talo, hyvä sijainti joen ja lenkkipolkujen lähellä. Jätä hakemus www.asuntosaatio.fi ja tule tutustumaan!

Jos haluat saada lisätietoja tästä asunnosta, otathan yhteyttä myyjäämme.

Asunnon tiedot

Asuinkustannukset

  • Vuokra 1060€
  • Vakuusmaksu 1060€
  • Vesimaksu/henkilö/kk 25€
  • Autopaikkamaksut
    • — Autopaikkamaksu 1 6,00€

Perustiedot asunnosta

  • Talotyyppi Kerrostalo
  • Energialuokka D
  • Huoneistotyyppi 3H+K+S
  • Pinta-ala 63.50 m²
  • Kerros 2
  • Parveke 1
  • Oma sauna Kyllä
  • Hissi Ei
  • Vapautuu Heti vapaa
  • Kunto Hyvä
  • Lemmikit Sallittu
  • Laajakaista DNA Welho

Lisätietoja

Tupakointi asunnoissamme

Kaikki uudet asuinkiinteistömme ovat olleet jo pitkään täysin savuttomia heti valmistumisestaan lähtien. Muutumme vähitellen savuttomiksi kaikkien asuntojemme osalta: uusien asukkaiden sopimukset ovat kieltäneet tupakoinnin huoneistoissa ja parvekkeilla 1.1.2021 alkaen. Kiinteistö ei ole välttämättä savuton muiden huoneistojen osalta, koska niissä voi olla vanhoja sopimuksia, joissa ei ole tupakointikieltoa.

Tehdyt muutostyöt

2000 sälekaihtimet 2024 Lattiapäällysteen vaihtaminen laminaattilattiaksi

Kohteen esittely

Luonnonläheinen kerrostalokohde, jonka tontti rajoittuu metsään. Valoisa ja vehreä pihapiiri. Kaikissa asunnoissa on oma sauna.

Alueella on päiväkodit ja koulut sekä laajat päivittäistavarakaupat. Hyvät liikenneyhteydet: Bussipysäkki lähes vieressä, juna-asema alle kilometrin päässä.

Miksi Asuntosäätiö?

Me uskomme, että onnellinen koti ja laadukas asuminen kuuluvat kaikille. Emme tavoittele voittoa, vaan käytämme kaikki vastikkeista ja vuokrista saadut tulot toimintamme kehittämiseen. Jo yli 33 000 suomalaista on valinnut Asuntosäätiön tarjoaman kodin. Tiesithän, että myös lemmikit ovat tervetulleita kaikkiin koteihimme!

Kohteen esittely

Luonnonläheinen kerrostalokohde, jonka tontti rajoittuu metsään. Valoisa ja vehreä pihapiiri. Kaikissa asunnoissa on oma sauna. Alueella on päiväkodit ja koulut sekä laajat päivittäistavarakaupat. Hyvät liikenneyhteydet: Bussipysäkki lähes vieressä, juna-asema alle kilometrin päässä.

Rakennuksen tiedot

  • Asumismuoto Vuokrakoti
  • Hissit Ei
  • Talosauna Ei
  • Pyykkitupa Kyllä
  • Kuivaushuone Kyllä
  • Asuntoja 40

Huoneistot ja pohjakuvat: Peijaksentie 27, Kerrostalo, Piharakennus

Hae asuntotyyppiä

Peijaksentie 27 C 40

3h+k+s

, Kerrostalo

63.5 m2

Kerros 2/2