Siirry sisältöön

Ensi parvi 3 B 11, Helsinki, Vuosaari

54,5 m2, 3H+KT

Asuntomyyjä

Laura Jaakkola

Jos haluat saada lisätietoja tästä asunnosta, otathan yhteyttä myyjäämme.

Tervetuloa tulevaisuuden kotiisi!

Jos haluat saada lisätietoja tästä asunnosta, otathan yhteyttä myyjäämme.

Asunnon tiedot

Asuinkustannukset

Hinnat ovat toistaiseksi arvioita.

  • Luovutushinta 38605,59€
    • — Alkuperäinen asumisoikeusmaksu 38605,59€
  • Käyttövastike 941,07€
    • — Perusvastike 801,97€
    • — Hoitovastike 139,1€
  • Vakuusmaksu 250€
  • Vesimaksuennakko/hlö/kk 25€
  • Autopaikkamaksut
    • — Autohallimaksu 1 40,00€
  • Saunamaksu 20,00€

Perustiedot asunnosta

  • Talotyyppi Kerrostalo
  • Energialuokka A2018
  • Huoneistotyyppi 3H+KT
  • Pinta-ala 54.50 m²
  • Kerros 1
  • Oma sauna Ei
  • Hissi Kyllä
  • Arvioitu valmistumisaika 31.05.2027
  • Kunto Erinomainen
  • Lemmikit Sallittu
  • Laajakaista DNA Netti

Lisätietoja

Tupakointi asunnoissamme

Kaikki uudet asuinkiinteistömme ovat olleet jo pitkään täysin savuttomia heti valmistumisestaan lähtien. Muutumme vähitellen savuttomiksi kaikkien asuntojemme osalta: uusien asukkaiden sopimukset ovat kieltäneet tupakoinnin huoneistoissa ja parvekkeilla 1.1.2021 alkaen. Kiinteistö ei ole välttämättä savuton muiden huoneistojen osalta, koska niissä voi olla vanhoja sopimuksia, joissa ei ole tupakointikieltoa.

Kohteen esittely

Ensimmäiset tarjouskierrokset ovat käsittelyssä. Olemme yhteydessä tarjouksen hyväksyneisiin hakijoihin, joille voidaan varata asunto. Tarjouskierrosten käsittelyssä voi kestää useampi viikko. Vapaaksi jääviin asuntoihin on jatkuva haku.

Ensi parven upeat, valoisat kodit tarjoavat rauhallisen asuinympäristön kaupungin kupeessa, arvostettujen luontokohteiden äärellä. Kolmeen 5-6 -kerroksiseen taloon valmistuu yhteensä 115 hyvin suunniteltua asumisoikeuskotia. Huoneistojen koot vaihtelevat 32-neliöisistä yksiöistä lähes sadan neliön viisihuoneisiin perheasuntoihin. Monipuoliset huoneistopohjat ja toimivat pohjaratkaisut inspiroivat sisustajaa – näistä asunnoista jokainen saa luotua juuri omannäköisen kodin. Asunnon materiaalivalintoihin on mahdollista vaikuttaa C-D -rapuissa 10.3.26 asti ja A-B -rapuissa 22.6.26 asti. Huom. Lisähintaisten tuotteiden valintojen eräpäivät erikseen. E-F rapuissa asuntojen materiaalit vaihtelevat kerroksittain. Tutustu valittavissa oleviin materiaaleihin oheisista materiaaliesitteistä!

Lukuisat, suuret ikkunat antavat luonnonvalon virrata kauniisti kaikissa asunnoissa. Kaksioistakin löytyy läpitalon huoneistoja ja isommista päätyhuoneistoista avautuvat näkymät jopa kolmeen ilmansuuntaan. Isoimpien asuntojen keittiöissä on saareke ja kylpyhuoneen lisäksi toinen wc-tila. Yksiöissäkin alkovit tarjoavat rauhallisen makuuhuonetilan ja osa asunnoista on varustettu vaatehuoneilla. Osa huoneistoista on kaksikerroksisia ja niihin on oma sisäänkäynti. Yhteistiloissa olevan irtaimistovaraston lisäksi useissa kodeissa on toinen lämmin varastotila asunnon yhteydessä.

Miksi Asuntosäätiö?

Me uskomme, että onnellinen koti ja laadukas asuminen kuuluvat kaikille. Emme tavoittele voittoa, vaan käytämme kaikki vastikkeista ja vuokrista saadut tulot toimintamme kehittämiseen. Jo yli 33 000 suomalaista on valinnut Asuntosäätiön tarjoaman kodin. Tiesithän, että myös lemmikit ovat tervetulleita kaikkiin koteihimme!

Kohteen esittely

Ensimmäiset tarjouskierrokset ovat käsittelyssä. Olemme yhteydessä tarjouksen hyväksyneisiin hakijoihin, joille voidaan varata asunto. Tarjouskierrosten käsittelyssä voi kestää useampi viikko. Vapaaksi jääviin asuntoihin on jatkuva haku. Ensi parven upeat, valoisat kodit tarjoavat rauhallisen asuinympäristön kaupungin kupeessa, arvostettujen luontokohteiden äärellä. Kolmeen 5-6 -kerroksiseen taloon valmistuu yhteensä 115 hyvin suunniteltua asumisoikeuskotia. Huoneistojen koot vaihtelevat 32-neliöisistä yksiöistä lähes sadan neliön viisihuoneisiin perheasuntoihin. Monipuoliset huoneistopohjat ja toimivat pohjaratkaisut inspiroivat sisustajaa – näistä asunnoista jokainen saa luotua juuri omannäköisen kodin. Asunnon materiaalivalintoihin on mahdollista vaikuttaa C-D -rapuissa 10.3.26 asti ja A-B -rapuissa 22.6.26 asti. Huom. Lisähintaisten tuotteiden valintojen eräpäivät erikseen. E-F rapuissa asuntojen materiaalit vaihtelevat kerroksittain. Tutustu valittavissa oleviin materiaaleihin oheisista materiaaliesitteistä! Lukuisat, suuret ikkunat antavat luonnonvalon virrata kauniisti kaikissa asunnoissa. Kaksioistakin löytyy läpitalon huoneistoja ja isommista päätyhuoneistoista avautuvat näkymät jopa kolmeen ilmansuuntaan. Isoimpien asuntojen keittiöissä on saareke ja kylpyhuoneen lisäksi toinen wc-tila. Yksiöissäkin alkovit tarjoavat rauhallisen makuuhuonetilan ja osa asunnoista on varustettu vaatehuoneilla. Osa huoneistoista on kaksikerroksisia ja niihin on oma sisäänkäynti. Yhteistiloissa olevan irtaimistovaraston lisäksi useissa kodeissa on toinen lämmin varastotila asunnon yhteydessä. Kaikkiin koteihin kuuluu terassi tai lasitettu parveke, joista osa on jopa koko huoneiston levyisiä. Parvekkeille asennetaan viherpeukaloiden iloksi valmiit istutuslaatikot, jotka on suunniteltu siten, että niiden kastelun hoitaa pääosin sadevesi. Poikkeuksellisen rakennustavan ansiosta piha-alueen alkuperäinen kasvillisuus sekä kauniit kalliot säilyvät ja Ensi parven asukkaat pääsevät heti nauttimaan monimuotoisesta, valmiista viherympäristöstä myös ulkosalla. Ensi parven rinnetontilla on paljon luontaisia korkeuseroja, sillä myös kalliota varjellaan kasvien tavoin. Pihalle tulevan ulkohissin ansiosta eri tasoissa pystyy silti liikkumaan esteettömästi. Jokaiseen taloon rakennetaan kattoterassi oleskelualueineen ja viljelylaatikoineen. Niiden yhteydestä löytyy kaksi kerhotilaa sekä kolme talosaunaa, joissa voi nauttia makoisista löylyistä hienojen näkymien ja vilvoitteluterassien kera. Omasta pysäköintihallista on kätevät kulkuyhteydet taloihin, ja yhteiskäyttöautot tekevät arjen liikkumisesta joustavaa. Alle kilometrin säteellä Ensi parvelta löytyvät toimivat lähipalvelut, kaksi päivittäistavarakauppaa sekä useampi päiväkoti. Broändan purolaakson reitit johdattavat meren äärelle Vartiokylän lahdelle ja toiseen suuntaan Mustavuoren upealle luonnonsuojelualueelle.

Rakennuksen tiedot

  • Asumismuoto Asokoti
  • Keskimääräinen asumisoikeusmaksu / jm² 721,6€
  • Hissit 6
  • Talosauna 5
  • Pyykkitupa Kyllä
  • Kuivaushuone Kyllä

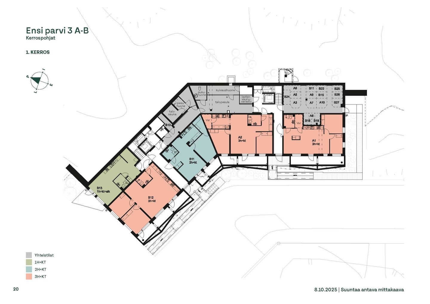
Huoneistot ja pohjakuvat: Ensi parvi 3, Kerrostalo

Lisää hakemukselle kaikki haluamasi asuntotyypit. Mahdollisuutesi asunnon saamiseksi paranevat, kun voimme tarjota sinulle kaikkia valitsemasi asuntotyypin asuntoja, jotka mahdollisesti vapautuvat myöhemmin tästä kohteesta. Olet automaattisesti näiden asuntotyyppien hakuprosessissa.

Hae asuntotyyppiä

Ensi parvi 3 D 47

1h+kt+alk

, Kerrostalo

32 m2

Kerros 2/6

Vapautuu 31.01.2027

Ensi parvi 3 F 96

1h+kt+alk

, Kerrostalo

32 m2

Kerros 2/5

Vapautuu 31.01.2027

Ensi parvi 3 D 62

1h+kt+alk

, Kerrostalo

38.5 m2

Kerros 5/6

Vapautuu 31.01.2027

Ensi parvi 3 D 52

1h+kt+alk

, Kerrostalo

38.5 m2

Kerros 3/6

Vapautuu 31.01.2027

Ensi parvi 3 F 111

1h+kt+alk

, Kerrostalo

38.5 m2

Kerros 5/5

Vapautuu 31.01.2027

Ensi parvi 3 D 57

1h+kt+alk

, Kerrostalo

38.5 m2

Kerros 4/6

Vapautuu 31.01.2027

Ensi parvi 3 F 106

1h+kt+alk

, Kerrostalo

38.5 m2

Kerros 4/5

Vapautuu 31.01.2027

Ensi parvi 3 D 66

1h+kt+alk

, Kerrostalo

38.5 m2

Kerros 6/6

Vapautuu 31.01.2027

Ensi parvi 3 F 101

1h+kt+alk

, Kerrostalo

38.5 m2

Kerros 3/5

Vapautuu 31.01.2027

Ensi parvi 3 B 13

1h+kt+alk

, Kerrostalo

42.5 m2

Kerros 1/5

Vapautuu 31.05.2027
Hae asuntotyyppiä

Ensi parvi 3 E 90

2h+kt

, Kerrostalo

33.5 m2

Kerros 4/5

Vapautuu 31.01.2027

Ensi parvi 3 C 34

2h+kt

, Kerrostalo

33.5 m2

Kerros 2/6

Vapautuu 31.01.2027

Ensi parvi 3 E 77

2h+kt

, Kerrostalo

33.5 m2

Kerros 2/5

Vapautuu 31.01.2027

Ensi parvi 3 F 103

2h+kt

, Kerrostalo

40 m2

Kerros 3/5

Vapautuu 31.01.2027

Ensi parvi 3 F 98

2h+kt

, Kerrostalo

40 m2

Kerros 2/5

Vapautuu 31.01.2027

Ensi parvi 3 C 39

2h+kt

, Kerrostalo

40 m2

Kerros 3/6

Vapautuu 31.01.2027

Ensi parvi 3 F 99

2h+kt

, Kerrostalo

40 m2

Kerros 2/5

Vapautuu 31.01.2027

Ensi parvi 3 D 59

2h+kt

, Kerrostalo

40 m2

Kerros 4/6

Vapautuu 31.01.2027

Ensi parvi 3 F 108

2h+kt

, Kerrostalo

40 m2

Kerros 4/5

Vapautuu 31.01.2027

Ensi parvi 3 D 55

2h+kt

, Kerrostalo

40 m2

Kerros 3/6

Vapautuu 31.01.2027

Ensi parvi 3 D 49

2h+kt

, Kerrostalo

40 m2

Kerros 2/6

Vapautuu 31.01.2027

Ensi parvi 3 D 68

2h+kt

, Kerrostalo

40 m2

Kerros 6/6

Ensi parvi 3 E 83

2h+kt

, Kerrostalo

40 m2

Kerros 3/5

Vapautuu 31.01.2027

Ensi parvi 3 D 64

2h+kt

, Kerrostalo

40 m2

Kerros 5/6

Vapautuu 31.01.2027

Ensi parvi 3 D 69

2h+kt

, Kerrostalo

40 m2

Kerros 6/6

Ensi parvi 3 D 63

2h+kt

, Kerrostalo

40 m2

Kerros 5/6

Vapautuu 31.01.2027

Ensi parvi 3 C 44

2h+kt

, Kerrostalo

40 m2

Kerros 4/6

Vapautuu 31.01.2027

Ensi parvi 3 F 114

2h+kt

, Kerrostalo

40 m2

Kerros 5/5

Vapautuu 31.01.2027

Ensi parvi 3 F 104

2h+kt

, Kerrostalo

40 m2

Kerros 3/5

Vapautuu 31.01.2027

Ensi parvi 3 F 109

2h+kt

, Kerrostalo

40 m2

Kerros 4/5

Vapautuu 31.01.2027

Ensi parvi 3 D 54

2h+kt

, Kerrostalo

40 m2

Kerros 3/6

Vapautuu 31.01.2027

Ensi parvi 3 D 50

2h+kt

, Kerrostalo

40 m2

Kerros 2/6

Vapautuu 31.01.2027

Ensi parvi 3 D 60

2h+kt

, Kerrostalo

40 m2

Kerros 4/6

Vapautuu 31.01.2027

Ensi parvi 3 F 113

2h+kt

, Kerrostalo

40 m2

Kerros 5/5

Vapautuu 31.01.2027

Ensi parvi 3 B 18

2h+kt

, Kerrostalo

42 m2

Kerros 3/5

Vapautuu 31.05.2027

Ensi parvi 3 B 25

2h+kt

, Kerrostalo

42 m2

Kerros 5/5

Vapautuu 31.05.2027

Ensi parvi 3 E 88

2h+kt

, Kerrostalo

43 m2

Kerros 4/5

Ensi parvi 3 E 81

2h+kt

, Kerrostalo

43 m2

Kerros 3/5

Vapautuu 31.01.2027

Ensi parvi 3 C 32

2h+kt

, Kerrostalo

43 m2

Kerros 2/6

Vapautuu 31.01.2027

Ensi parvi 3 E 75

2h+kt

, Kerrostalo

43 m2

Kerros 2/5

Vapautuu 31.01.2027

Ensi parvi 3 E 78

2h+kt

, Kerrostalo

43 m2

Kerros 2/5

Vapautuu 31.01.2027

Ensi parvi 3 C 37

2h+kt

, Kerrostalo

43 m2

Kerros 3/6

Vapautuu 31.01.2027

Ensi parvi 3 C 42

2h+kt

, Kerrostalo

43 m2

Kerros 4/6

Vapautuu 31.01.2027

Ensi parvi 3 E 87

2h+kt

, Kerrostalo

45 m2

Kerros 4/5

Ensi parvi 3 E 74

2h+kt

, Kerrostalo

45 m2

Kerros 2/5

Vapautuu 31.01.2027

Ensi parvi 3 E 80

2h+kt

, Kerrostalo

45 m2

Kerros 3/5

Vapautuu 31.01.2027

Ensi parvi 3 B 22

2h+kt

, Kerrostalo

47.5 m2

Kerros 4/5

Ensi parvi 3 B 19

2h+kt

, Kerrostalo

47.5 m2

Kerros 3/5

Vapautuu 31.05.2027

Ensi parvi 3 B 15

2h+kt

, Kerrostalo

47.5 m2

Kerros 2/5

Vapautuu 31.05.2027

Ensi parvi 3 B 26

2h+kt

, Kerrostalo

47.5 m2

Kerros 5/5

Vapautuu 31.05.2027

Ensi parvi 3 A 9

2h+kt

, Kerrostalo

49 m2

Kerros 3/5

Vapautuu 31.05.2027

Ensi parvi 3 A 5

2h+kt

, Kerrostalo

49 m2

Kerros 2/5

Vapautuu 31.05.2027

Ensi parvi 3 C 36

2h+kt+var

, Kerrostalo

45 m2

Kerros 3/6

Vapautuu 31.01.2027

Ensi parvi 3 C 41

2h+kt+var

, Kerrostalo

45 m2

Kerros 4/6

Vapautuu 31.01.2027

Ensi parvi 3 C 31

2h+kt+var

, Kerrostalo

45 m2

Kerros 2/6

Vapautuu 31.01.2027

Ensi parvi 3 A 4

2h+kt+var

, Kerrostalo

48.5 m2

Kerros 2/5

Vapautuu 31.05.2027

Ensi parvi 3 A 8

2h+kt+var

, Kerrostalo

48.5 m2

Kerros 3/5

Ensi parvi 3 E 91

2h+kt+var

, Kerrostalo

49.5 m2

Kerros 4/5

Vapautuu 31.01.2027
Hae asuntotyyppiä

Ensi parvi 3 B 11

3h+kt

, Kerrostalo

54.5 m2

Kerros 1/5

Vapautuu 31.05.2027

Ensi parvi 3 E 93

3h+kt

, Kerrostalo

60 m2

Kerros 5/5

Ensi parvi 3 E 92

3h+kt

, Kerrostalo

60 m2

Kerros 4/5

Vapautuu 31.01.2027

Ensi parvi 3 B 24

3h+kt

, Kerrostalo

67.5 m2

Kerros 5/5

Vapautuu 31.05.2027

Ensi parvi 3 B 17

3h+kt

, Kerrostalo

67.5 m2

Kerros 3/5

Vapautuu 31.05.2027

Ensi parvi 3 B 20

3h+kt

, Kerrostalo

68 m2

Kerros 3/5

Vapautuu 31.05.2027

Ensi parvi 3 B 27

3h+kt

, Kerrostalo

68 m2

Kerros 5/5

Vapautuu 31.05.2027

Ensi parvi 3 B 16

3h+kt

, Kerrostalo

68 m2

Kerros 2/5

Vapautuu 31.05.2027

Ensi parvi 3 B 23

3h+kt

, Kerrostalo

68 m2

Kerros 4/5

Vapautuu 31.05.2027

Ensi parvi 3 B 21

3h+kt

, Kerrostalo

68 m2

Kerros 4/5

Ensi parvi 3 A 10

3h+kt

, Kerrostalo

71 m2

Kerros 3/5

Vapautuu 31.05.2027

Ensi parvi 3 A 6

3h+kt

, Kerrostalo

71 m2

Kerros 2/5

Vapautuu 31.05.2027

Ensi parvi 3 C 38

3h+kt

, Kerrostalo

71.5 m2

Kerros 3/6

Vapautuu 31.01.2027

Ensi parvi 3 C 33

3h+kt

, Kerrostalo

71.5 m2

Kerros 2/6

Vapautuu 31.01.2027

Ensi parvi 3 F 112

3h+kt

, Kerrostalo

71.5 m2

Kerros 5/5

Vapautuu 31.01.2027

Ensi parvi 3 D 53

3h+kt

, Kerrostalo

71.5 m2

Kerros 3/6

Vapautuu 31.01.2027

Ensi parvi 3 F 102

3h+kt

, Kerrostalo

71.5 m2

Kerros 3/5

Vapautuu 31.01.2027

Ensi parvi 3 D 58

3h+kt

, Kerrostalo

71.5 m2

Kerros 4/6

Vapautuu 31.01.2027

Ensi parvi 3 F 97

3h+kt

, Kerrostalo

71.5 m2

Kerros 2/5

Vapautuu 31.01.2027

Ensi parvi 3 D 67

3h+kt

, Kerrostalo

71.5 m2

Kerros 6/6

Vapautuu 31.01.2027

Ensi parvi 3 F 107

3h+kt

, Kerrostalo

71.5 m2

Kerros 4/5

Vapautuu 31.01.2027

Ensi parvi 3 E 89

3h+kt

, Kerrostalo

71.5 m2

Kerros 4/5

Vapautuu 31.01.2027

Ensi parvi 3 E 82

3h+kt

, Kerrostalo

71.5 m2

Kerros 3/5

Vapautuu 31.01.2027

Ensi parvi 3 D 48

3h+kt

, Kerrostalo

71.5 m2

Kerros 2/6

Vapautuu 31.01.2027

Ensi parvi 3 E 76

3h+kt

, Kerrostalo

71.5 m2

Kerros 2/5

Vapautuu 31.01.2027

Ensi parvi 3 C 43

3h+kt

, Kerrostalo

71.5 m2

Kerros 4/6

Vapautuu 31.01.2027

Ensi parvi 3 B 12

3h+kt

, Kerrostalo

72.5 m2

Kerros 1/5

Vapautuu 31.05.2027

Ensi parvi 3 B 14

3h+kt

, Kerrostalo

84.5 m2

Kerros 2/5

Vapautuu 31.05.2027

Ensi parvi 3 A 1

3h+kt+var

, Kerrostalo

63 m2

Kerros 1/5

Vapautuu 31.05.2027

Ensi parvi 3 E 73

3h+kt+var

, Kerrostalo

68.5 m2

Kerros 2/5

Vapautuu 31.01.2027

Ensi parvi 3 E 79

3h+kt+var

, Kerrostalo

68.5 m2

Kerros 3/5

Vapautuu 31.01.2027

Ensi parvi 3 E 86

3h+kt+var

, Kerrostalo

68.5 m2

Kerros 4/5

Vapautuu 31.01.2027

Ensi parvi 3 A 2

3h+kt+var

, Kerrostalo

73 m2

Kerros 1/5

Vapautuu 31.05.2027
Hae asuntotyyppiä

Ensi parvi 3 F 115

4h+kt

, Kerrostalo

76 m2

Kerros 5/5

Vapautuu 31.01.2027

Ensi parvi 3 D 56

4h+kt

, Kerrostalo

76 m2

Kerros 3/6

Vapautuu 31.01.2027

Ensi parvi 3 F 110

4h+kt

, Kerrostalo

76 m2

Kerros 4/5

Vapautuu 31.01.2027

Ensi parvi 3 F 105

4h+kt

, Kerrostalo

76 m2

Kerros 3/5

Vapautuu 31.01.2027

Ensi parvi 3 F 100

4h+kt

, Kerrostalo

76 m2

Kerros 2/5

Vapautuu 31.01.2027

Ensi parvi 3 D 65

4h+kt

, Kerrostalo

76 m2

Kerros 5/6

Vapautuu 31.01.2027

Ensi parvi 3 D 51

4h+kt

, Kerrostalo

76 m2

Kerros 2/6

Vapautuu 31.01.2027

Ensi parvi 3 C 30

4h+kt

, Kerrostalo

76 m2

Kerros 2/6

Vapautuu 31.01.2027

Ensi parvi 3 D 61

4h+kt

, Kerrostalo

76 m2

Kerros 4/6

Vapautuu 31.01.2027

Ensi parvi 3 C 35

4h+kt

, Kerrostalo

76 m2

Kerros 3/6

Vapautuu 31.01.2027

Ensi parvi 3 C 40

4h+kt

, Kerrostalo

76 m2

Kerros 4/6

Vapautuu 31.01.2027

Ensi parvi 3 D 70

4h+kt

, Kerrostalo

76 m2

Kerros 6/6

Ensi parvi 3 E 71

4h+kt

, Kerrostalo

77 m2

Kerros 1/5

Vapautuu 31.01.2027

Ensi parvi 3 E 85

4h+kt

, Kerrostalo

80.5 m2

Kerros 3-4/5

Vapautuu 31.01.2027

Ensi parvi 3 A 3

4h+kt

, Kerrostalo

80.5 m2

Kerros 2/5

Ensi parvi 3 A 7

4h+kt

, Kerrostalo

80.5 m2

Kerros 3/5

Ensi parvi 3 E 84

4h+kt

, Kerrostalo

81.5 m2

Kerros 3-4/5

Vapautuu 31.01.2027

Ensi parvi 3 D 45

4h+kt+var

, Kerrostalo

77.5 m2

Kerros 1/6

Vapautuu 31.01.2027

Ensi parvi 3 C 28

4h+kt+var

, Kerrostalo

77.5 m2

Kerros 1/6

Vapautuu 31.01.2027

Ensi parvi 3 F 94

4h+kt+var

, Kerrostalo

77.5 m2

Kerros 1/5

Vapautuu 31.01.2027

Ensi parvi 3 C 29

4h+kt+var

, Kerrostalo

80.5 m2

Kerros 1/6

Vapautuu 31.01.2027

Ensi parvi 3 E 72

4h+kt+var

, Kerrostalo

80.5 m2

Kerros 1/5

Vapautuu 31.01.2027
Hae asuntotyyppiä

Ensi parvi 3 D 46

5h+kt+var

, Kerrostalo

98.5 m2

Kerros 1/6

Ensi parvi 3 F 95

5h+kt+var

, Kerrostalo

98.5 m2

Kerros 1/5

Vapautuu 31.01.2027